Wettbewerbe 05.03.25

© Buchner Bründler

Buchner Bründler gewinnen Genossenschaftshaus «Lysi» – wir blicken auf alle Wettbewerbsbeiträge

Die Bahngeleise, die nach Frankreich führen, glänzen sanft in der winterlichen Spätnachmittagssonne. Wir befinden uns in Basels industriellem Norden. Der Ort steht vor einer grundlegenden Transformation: Volta Nord heisst eines der grössten Entwicklungsareale der Stadt. Die drei Genossenschaften Logis Suisse, Homebase und die Wohngenossenschaft Hegenheimerstrasse haben den Zuschlag für das Baufeld 4 erhalten. Letztere hat sich dazu entschlossen für ihr Teilbaufeld 4.2 einen Studienauftrag mit fünf eingeladenen Teams auszuschreiben. Buchner Bründler konnten ihn für sich entscheiden. Wir blicken im heutigen Artikel auf alle Wettbewerbsbeiträge, die eine spannende Grundrissrecherche offenbaren.

Sitruationsplan

Gesucht wurden Lösungsvorschläge für rund 50 Wohnungen in «einem gemeinschaftlich geprägten Neubau». Die Grundrissstruktur sollte dabei «die Möglichkeit bieten, auf veränderte Bedürfnisse, Lebensphasen oder Belegungen eingehen zu können». Die fünf Teams schlugen darauf unterschiedliche Lösungen vor, wobei die Erschliessung ein für alle fünf Beiträge bestimmendes Thema war: Nord Architekten entwickelten ein Haus mit drei innenliegenden Treppenhäusern, die situativ als Zwei- oder Mehrspänner funktionieren. Der Entwurf von Matthias Bill sah zwei Treppenhäuser vor, woran sich jeweils vier Wohnungen anordnen. Was in der Zeile gut funktioniert, stiess an der Gebäudeecke stellenweise an typologische Grenzen.

© Nord Architekten

© Matthias Bill

Abraha Achermann entwickelten eine spannende Hybridlösung: Die Treppenhäuser stossen jeweils hofseitig an kurze Lauben, die ihrerseits zwei Wohnungen erschliessen. An der Gebäudeecke befindet sich eine Clusterwohnung. Gemäss Jury brachte das Projekt «Nachbarschaft und Privatheit als komplementäre Wohnqualitäten sehr stimmig zusammen.»

© Atelier Abraha Achermann

Weyell Zipse setzen – wie das Siegerprojekt – auf einen hofseitigen Laubengang, was eine hohe Serialität der Wohnungen und Struktur und die Reduktion auf lediglich einen Aufzug ermöglichte. Die Jury lobte die «klare Struktur mit einer überraschenden Rasterverschiebung in der Mitte», die sowohl räumlich als auch konstruktiv überzeuge. «Die innere Korridorzone ist im Hinblick auf die Festlegung und Anpassung des Wohnungsschlüssels effizient, führt aber bei den grossen Wohnungen zu einem relativ hohen Korridoranteil, der den Zimmern verloren geht.»

© Weyell Zipse

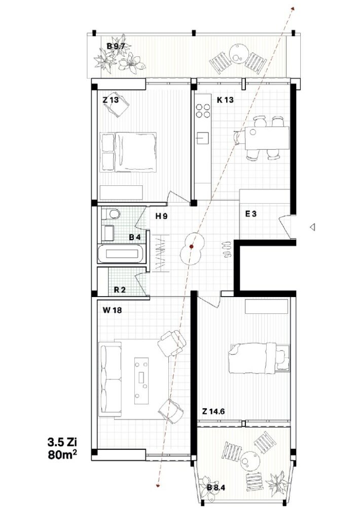
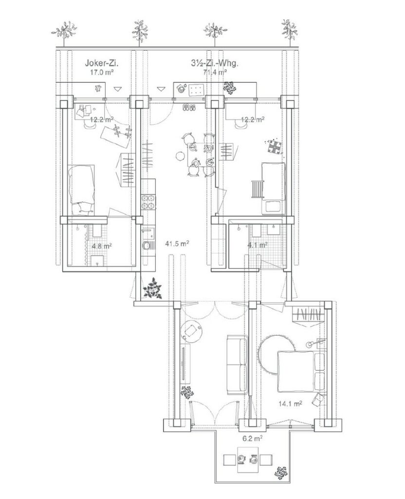
Gewonnen hat der Laubengang: Buchner Bründler verbanden die aussenliegende Erschliessung mit einer grosszügigen Treppenhalle am Kopf, die der beengten Ecksituation erfolgreich räumliche Grosszügigkeit verleiht. Die mehrheitlich durchgesteckten Wohnungen sind effizient geschnitten. Eine 3.5-Zimmer-Wohnungen gibt es ab 72 Quadratmeter, wobei die Schlafzimmer mit 11 respektive 12 Quadratmetern entsprechend klein sind. Für die Jury ist «die Kombination von Jokerzimmern zum Laubengang und Schaltzimmern zur Gartengasse, was eine hohe Planungs- und auch Nutzungsflexibilität erzeugt». Sie lobt: «Im Grundriss bestechen vor allem die erweiterten und gut möblierbaren Gemeinschaftsräume in der Mitte der Wohnungen.»

© Buchner Bründler

Gerne werfen wir einen ausführlichen Blick auf alle fünf Wettbewerbsbeiträge. Die nachfolgenden Projektbeschriebe stammen aus dem Jurybericht.

1. Rang 🏆 Buchner Bründler, Basel

© Buchner Bründler

Eine detaillierte Analyse der städtebaulichen Entwicklung im Norden Basels dient als Ausgangspunkt für das Projekt «Lysi». Mit seiner prägnanten Lage an der Lothringerstrasse und seiner sieben- bis achtgeschossigen Ausbildung bildet das Eckgebäude sowohl den Übergang zum neuen Quartier Volta Nord als auch eine neue Massstäblichkeit. Besonders überzeugend ist dabei die horizontale Gliederung des Baukörpers in Sockel-, Mittel- und Dachzone, die sich am typologischen Vorbild des Baumgartnerhauses orientiert. In Kombination mit den charakteristischen vertikalen Fassadenelementen entsteht ein städtisches Haus, das ebenso selbstverständlich wie vertraut wirkt.

© Buchner Bründler

Die Ausrichtung der Sockelzone mit unterschiedlichen Eingängen zur Lothringerstrasse und zur Gartengasse entspricht der im Regelwerk vorgesehenen Adressierung. Durch die Überhöhung und die grosszügige Verglasung wird ein Erdgeschoss mit angemessener Ausstrahlung geschaffen. Auch die Platzierung des öffentlichen Quartiercafés an der Ecke zum Lysbüchelpark und die zentrale Anordnung der genossenschaftlichen Gemeinschaftsräume sind stimmig. Leicht geneigte Rampen überwinden geschickt die natürliche Topographie des Strassenverlaufs und ermöglichen so eine barrierefreie Verbindung zum hofseitigen Erschliessungsbereich. Dieser als Dorfplatz bezeichnete Aussenraum wird als zentraler Begegnungsraum zwischen den Bewohnenden der Genossenschaft und der Quartierbevölkerung verstanden. Seine differenzierten Bespiel- und Aneignungspotenziale werden von der Jury gewürdigt, die vorgesehene Durchlässigkeit hingegen kontrovers diskutiert.

© Buchner Bründler

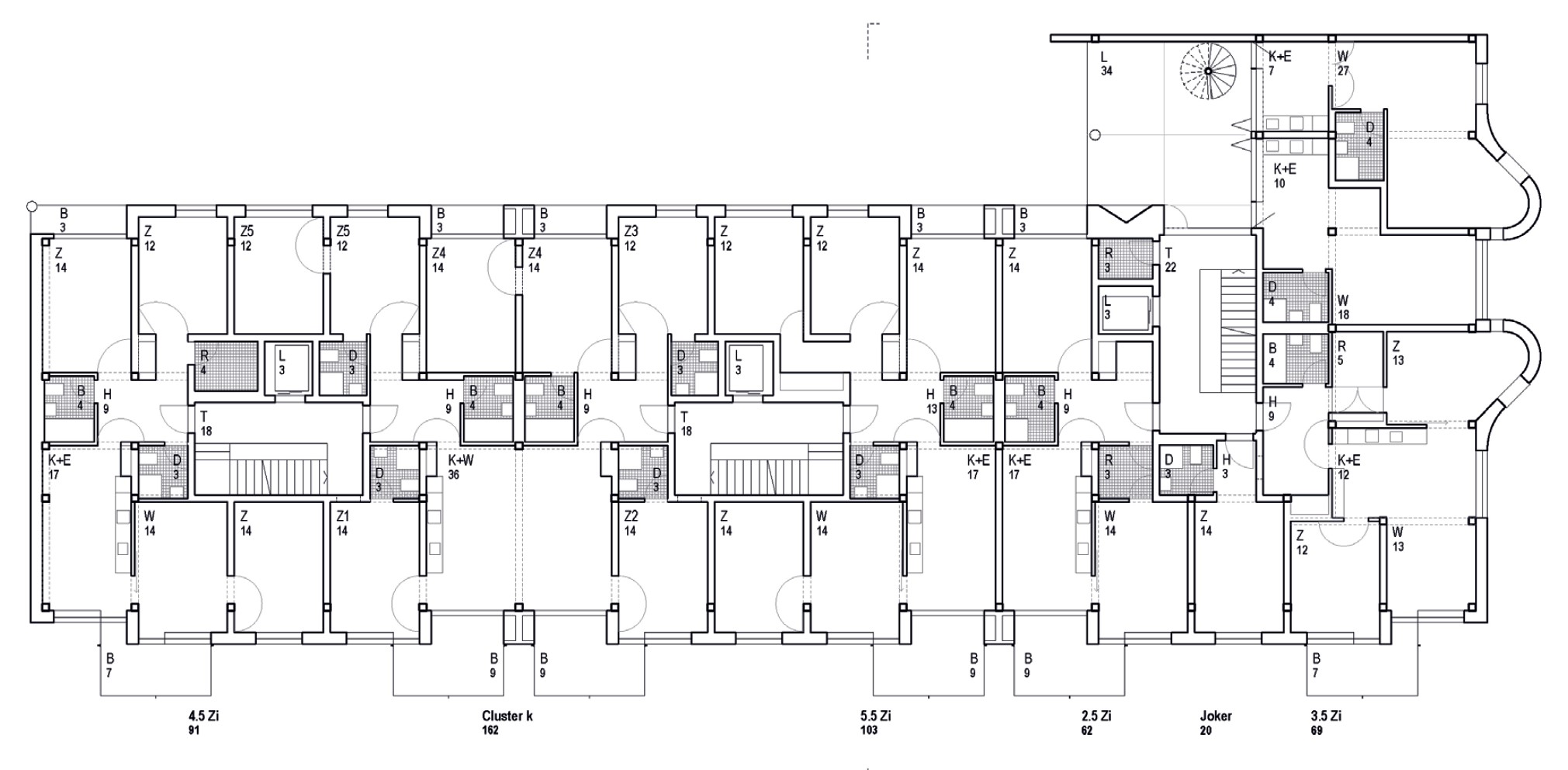
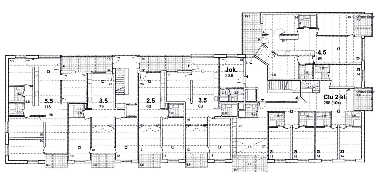
Für die Wohnungen werden grundsätzlich drei verschiedene Typologien angeboten. Im Erdgeschoss versprechen ebenerdige, zweigeschossige und hintereinander angeordnete Ateliers eine hohe Arbeits- und Wohnqualität. Bei sechs Einheiten besteht zudem die Möglichkeit, eine Gemeinschaft zu bilden. Die Wohnungen in den oberen Geschossen sind ebenfalls sorgfältig organisiert. Speziell hervorzuheben ist die Kombination von Jokerzimmern zum Laubengang und Schaltzimmern zur Gartengasse, was eine hohe Planungs- und auch Nutzungsflexibilität erzeugt. Im Grundriss bestechen vor allem die erweiterten und gut möblierbaren Gemeinschaftsräume in der Mitte der Wohnungen. Sehr geschätzt werden auch die angrenzenden Baumgartnerzimmer mit ihren identitätsstiftenden Glastrennwänden und den vielfältigen Nutzungsmöglichkeiten. Die Gruppierung im Attikageschoss ist entscheidend für die allgemeine Attraktivität der Clusterwohnungen. Intelligent ist auch, dass der Laubengang zum gemeinsamen Aussenraum und die zurückversetzte Strassenfront zum privaten Aussenbereich der Individualräume wird. Von der attraktiven Lage und der damit verbundenen Aussicht profitiert auch die gemeinschaftliche Terrasse auf dem Dach.

© Buchner Bründler

© Buchner Bründler

Die bewusste Differenzierung in Strassen- und Hofseite ist im architektonischen Ausdruck des Gebäudes klar erkennbar. Die beiden strassenseitigen Fassaden erhalten mit der vorgeschlagenen Materialisierung aus weiss gestrichenem Lehmstein einen urbanen, muralen und gleichzeitig zurückhaltenden Charakter. Zum rückwärtigen Hof haben die Fassaden ein deutlich leichteres Erscheinungsbild, das von begrünten Elementen am Laubengang und an der Stirnfassade geprägt wird. Durch die grünliche Farbgebung der Balkon- und Fensterbrüstungen entsteht schliesslich eine subtile und zugleich erfrischende Verwandtschaft in der äusseren Erscheinung.

© Buchner Bründler

Das Tragwerkskonzept ist sehr klar, gut durchdacht und nahezu einwandfrei umsetzbar. Die bewusst vorgenommene Differenzierung der Materialisierung und der Bauweise ist im Hinblick auf die Tragfähigkeit (Abfangrost EG), die Dauerhaftigkeit (Exposition/Bewitterung Laubengang und Balkone) und die bau physikalischen Aspekte (Schall-, Wärme- und Feuchteschutz) sehr sinnvoll und auch im Detail gut ausformuliert. Die nahezu reine Holzbauweise in den Regel- geschossen unterstützt trotz des Einsatzes von Holzwerkstoffen die hohen Anforderungen an die ökologische Nachhaltigkeit. Die hohe Serialität und die Verwendung von vorgefertigten Elementen ab dem Regelgeschoss erlauben eine kurze Bauzeit und eine hohe Wirtschaftlichkeit. Die Art und Weise der Fügungen – insbesondere die des Holzbaus, der Laubengänge und der Balkone ermöglichen einen weitgehenden Rückbau im Sinne des «Design for Disassembly». Inwieweit bzw. mit welchen Massnahmen sich der angedachte Lehmbaustein (Terrabloc) in der direkt bewitterten Fassade, trotz des zementösen Binde- mittels, umsetzen lässt, ist in der Projektierung vertieft zu überprüfen.

© Buchner Bründler

Von allen Projekten liefert «Lysi» die überzeugendsten Antworten auf die gestellte Aufgabe. Das Projekt beweist eindrücklich, dass das Regelwerk Volta- Nord robust und gut umsetzbar ist. Die grösste Faszination des Beitrags liegt aber in der präzisen und atmosphärischen Ausarbeitung des Konzepts, das als zeitgenössische Variante des Baumgartnerhauses interpretiert werden kann.  

2. Rang Abraha Achermann, Zürich

© Atelier Abraha Achermann

Das vorgeschlagene Projekt entwickelt seine Eigenständigkeit aus der Verknüpfung der städtebaulichen Ziele des Regelwerks mit den sozial-räumlichen Bedürfnissen der Genossenschaft. Die Interpretation des grundlegenden Gegensatzes zwischen gereihten, autonomen Stadthäusern und einem grossen, gemeinschaftlich bewohnten Haus führt zu einer charakteristischen Erschliessungslogik mit zwei Treppenhäusern und drei Hauseingängen sowie auf den Wohngeschossen hofseitig jeweils zu kurzen, ‘entspannten Vorstufen zum Laubengang’.

© Atelier Abraha Achermann

Im Erdgeschoss bildet der Hauseingang vom Lysbüchelplatz den sinnfälligen Auftakt zu einem Cluster von gemeinschaftlich genutzten Räumen. Dabei liegt der liebevoll inszenierte Waschsalon in der Innenecke zum Hof als Schnittpunkt aller Wege an neuralgischer Stelle. Als Ort des informellen Treffens hat er grosses Potential, allerdings scheint die Verknüpfung mit den beiden Hauseingängen an der Gartengasse noch zu ungleichwertig. Die Anbindung des westlichen Treppenhauses über die Hoflaube stellt die dort situierten Atelierwohnungen in Frage.

© Atelier Abraha Achermann

Gleichzeitig wirkt die Eingangshalle zur Gartengasse, auch im Vergleich zum östlich gelegenen Eingang, für einen siebengeschossigen Vierspänner zu knapp dimensioniert. Der Versuch, das Sockelgeschosses des klassischen Blockrands sehr dosiert zu Gunsten einer gemeinschaftlichen Durchlässigkeit zu öffnen, wird positiv gewürdigt. Auch angesichts der Grösse des Hauses wünschte man sich aber, dass die eher kleinmassstäblich zugeschnittene Wegeführung mehr Atem und Grosszügigkeit entfalten könnte.

© Atelier Abraha Achermann

© Atelier Abraha Achermann

Auf den Wohngeschossen bringt die Erschliessungstypologie der kurzen Lauben Nachbarschaft und Privatheit als komplementäre Wohnqualitäten sehr stimmig zusammen. Ebenso leben die sorgfältig entwickelten Wohnungen von fein justierten Raumbeziehungen. Die überraschenderweise in den Raumachsen platzierten Stützen werfen statische Fragen auf, deren räumliche Wirksamkeit allerdings ist im Sinne von minimal abgesteckten Schwellenräumen am Wohnungseingang oder als Gliederung der tiefen Privaträume mit dem Blick ins Arbeitsmodell so charmant wie überzeugend dargestellt. Die durchgehende ‘Sollbruchschicht’ der privaten Zimmer zur Gartengasse schafft strategische Potentiale, insbesondere die Abtrennbarkeit des Wohnzimmers als Separatzimmer. Für die Schaltbarkeit werden insbesondere die von der Laube erschlossenen Jokerzimmer als sehr wertvoll, weil flexibel und vergleichsweise kurzfristig zuschaltbar, bewertet. Das Ecktreppenhaus in der ‘Kehle’ scheint etwas beengt, auch wenn das Kehlzimmer eine originelle Lösung für die tiefen Eckgrundrisse darstellt. Besonders hervorzuheben sind die gestapelten, kompakten Clusterwohnungen, welche raffiniert in der Ecklage zum Platz organisiert sind und von kollektiven Zonen mit doppelgeschossigen Lufträumen profitieren. Die Übersetzung des Prinzips der ablesbaren Hauseinheit aus dem Regelwerk in einzelne Felder gleicher Öffnungslogik, die damit die entsprechenden Wohnungstypen abbilden, ist als Ansatz für die Gliederung des grossen Hauses interessant und konsequent, auch wenn der collagehafte Charakter der vertikalen Fassadensegmente stellenweise etwas forciert wirkt. Insbesondere deutet die geschlossene Wandscheibe zum Platz eine Seitenfassade an und relativiert damit die Präsenz als Eckhaus. Die ambitionierte Materialisierung in Holz- rahmenbauweise, Lehmdecken sowie Lehmziegelsteinen für die Strassen- und Platzfassaden verbindet klug die Vorteile einer nachhaltigen Bauweise mit der Qualität einer behaglichen Wohnatmosphäre sowie mit den im Regelwerk formulierten Ansprüchen an den Charakter des städtischen Raums.

© Atelier Abraha Achermann

Das vorgeschlagene Tragwerk beinhaltet hinsichtlich seiner Deckenkonstruktion einen interessanten Vorschlag einer Holz-Lehm-Hybriddecke, die mittels vorgefertigter Gewölbesteine, einen bereits industriellen Charakter ausstrahlt (System Terrabloc). Jedoch weist nicht nur dieser gezeigte Deckenaufbau, sondern auch das dargestellte Tragwerksraster als Ganzes Schwächen auf, die für einen Holz- oder Holzhybridbau suboptimal sind und dessen Effizienz in der Umsetzung deutlich verschlechtern würden. Es wird vermutet, dass Anpassungen, die zur Verbesserung der Klarheit und Einfachheit des Tragwerks vorzunehmen wären, nicht unerhebliche Auswirkungen auf das gezeigte Konzept der Wohnungsgrundrisse hätten. Die als prägendes gestalterisches Element und zur Unterteilung der Wohnungen eingesetzten Stützen haben keinerlei positiven Effekt auf das Tragwerk – im Gegenteil: Die Anordnung dieser Stützen entbehrt jeglicher tragwerksplanerischen Logik, weswegen die Stützen – sollten diese an Ort und Stelle verbleiben müssen - zwingend nicht-tragend auszubilden wären. Das Auf- hängen der Balkone an Seilen an eine leichte Holzkonstruktion (Attika) würde wie dargestellt nicht funktionieren - liesse sich im Rahmen einer Projektierung aber sicherlich lösen. Es handelt sich um ein sorgfältig ausgearbeitetes Projekt, welches insbesondere auf den Wohngeschossen und der raffinierten Anordnung der Clustereinheiten besticht. Die Erdgeschossituation, die collagiert wirkende Fassade sowie die Konstruktionsweise vermögen jedoch nicht restlos zu überzeugen.  

Matthias Bill, Basel

© Matthias Bill

Das Projekt schlägt einen sorgfältig gegliederten Stadtbaustein vor, der im 7. Obergeschoss rückspringt, um zum Massstab der niedrigeren Nachbargebäude an der Gartengasse zu vermitteln. Der grosszügig ausformulierte Eingang auf der Südseite schafft eine zentrale Adressierung und einen gemeinschaftlichen Ankunftsort für die Bewohnenden der Genossenschaft. Damit widerspricht der Projektvorschlag jedoch dem städtebaulichen Ziel des Regelwerks, das klein- massstäbliche Baukörper mit separaten Eingängen vorsieht. Über die Fassadengestaltung wird durch unterschiedliche vertikale Elemente (Balkonloggien, geschlossene Fassadenpaneele) und eine horizontale Vierteilung (Sockel, 1.-4. Obergeschoss, 5.-6. Obergeschoss, Attikageschoss) eine Kleinteiligkeit angestrebt, die sich an lokalen Referenzen orientiert. Dennoch, und ins- besondere aufgrund des Hauptzugangs, wird das Gebäude als Einheit im urbanen Gefüge gelesen. In Bezug auf die Forderung des Regelwerks nach einer mineralischen Fassade bleibt das Projekt, jenseits des beschriebenen Holzbaus mit grossformatigen Lärchenplatten, vage.

© Matthias Bill

In der Sockelzone befinden sich zwei Hochparterrewohnungen sowie eine eben- erdige Atelierwohnung zum Hinterhof. Zwei Eingänge, die Café und Atelier erschliessen, orientieren sich zum Lysbüchelplatz. Der zentrale Eingang der Genossenschaft ist auf der Seite der Gartengasse gelegen und verbindet die Vorderseite über eine Lobby und Gartenhalle mit dem Innenhof. Die symmetrische Anordnung der Erschliessung überrascht an diesem Ort und im L-förmigen Fussabdruck des Gebäudes. Die daraus resultierende Erschliessungsfigur führt über zwei seitlich gelegene und separat funktionierende Treppenhäuser in die Obergeschosse und findet erst auf der gemeinschaftlich genutzten Dachterrasse wieder zusammen.

© Matthias Bill

Die Gartenhalle im EG gelegen überzeugt mit guter Aufenthaltsqualität. Die Lobby dagegen lässt in Bezug auf die Möblierungsmöglichkeiten sowie Brandabschnittsbildung Fragen offen und wirkt im Vergleich zur Gartenhalle über- dimensioniert. Der Ansatz, die kollektiven Räume ohne Zwang nutzbar zu machen, ist nachvollziehbar, jedoch würden Treppenhäuser mit höheren Aufenthaltsqualitäten dazu beitragen, auch informellere Begegnungen in kleineren Gruppen zu fördern. Dies wäre besonders wünschenswert bei der interessanten Diversifizierung des Wohnungsangebots und der hohen Erschliessungsdichte (3-4 Wohnungen sowie allfällige Jokerzimmer pro Geschoss und Treppenhaus). Die sorgfältig zonierten Wohnungen orientieren sich wenn möglich in zwei Richtungen. Die Erschliessung durch die Treppenkerne ist effizient und ermöglicht grosse Geschossflächen, führt jedoch an einigen Stellen dazu, dass die Erschliessung kompliziert ist und einige Wohnungen einseitig orientiert sind. Die strategisch gut platzierten Jokerzimmer bieten hohe Flexibilität, da sie je nach Bedarf an die Wohnungen angegliedert oder abgetrennt werden könnten. Ein Zimmer mit 14m² fehlt in der Mehrzahl der Wohnungen. Die neun Vollgeschosse im Bereich Co-Working/Atelier sind nicht zulässig. Die Nutzung im Untergeschoss müsste entfallen oder weiter in den Boden eingelassen werden, was die ohnehin bereits eingeschränkte Belichtung und räumliche Qualität der Nutzungen weiter beeinträchtigen würde.

© Matthias Bill

In Bezug auf die Aspekte der ökologischen Nachhaltigkeit beinhaltet das vor- geschlagene Tragwerkskonzept mit einem reinen Holzbau ohne jeglichen Einsatz von Beton - konzeptionell gesehen - sehr interessante Lösungsansätze. Zwar wären die vorgeschlagenen und das Gebäude aussteifenden Erschliessungs- kerne bezüglich der zu erfüllenden Brandschutzanforderungen mit einer Kapselung umsetzbar. Jedoch wird in Frage gestellt, ob die Anschlussdetails mit den grossen Kräften, die im Erdbebenfall zwischen Decken und Kernwänden zu über tragen wären, auf diese Art sinnvoll, wirtschaftlich und am Ende so nachhaltig wie suggeriert umgesetzt werden können. Auch das Beplanken der Brettstapel- decken mit Diagonalschalungen als ökologisch nachhaltige Methode zur Effizienzsteigerung des Systems und zur Scheibenausbildung der Decken, ist - qualitativ bewertet - ein sinnvoller und interessanter Ansatz. Ob und inwiefern dieses Konzept jedoch im Rahmen einer Quantifizierung unter den gegebenen Rahmenbedingungen und in dieser Ausformulierung mit dem Ergebnis einer überragenden ökologischen Nachhaltigkeit standhalten kann wird bezweifelt.

© Matthias Bill

Insgesamt bietet das Projekt eine effiziente Erschliessung und eine interessante Raumaufteilung, die die Diskussion innerhalb des Beurteilungsgremiums zum Thema gemeinschaftliches Wohnen bereichert hat. Die Ausformulierung und Dimensionierung von Zugang und vertikaler Erschliessungstypologie vermag im Kontext der Aufgabe jedoch nicht zu überzeugen.  

Weyell Zipse, Basel

© Weyell Zipse

Die Verfassenden konzipierten ihr Gebäude als repetitives Gerüst, mit dem Ziel maximaler Flexibilität im Wohnungsmix und im Hinblick auf zukünftige Veränderungen. Im städtebaulichen Kontext wirkt dieses «nachhaltige Wohnregal» entlang der Weinlagerstrasse mit seiner Fuge zum Nachbargebäude am Lysbüchelplatz wie ein Zeilenbau, dem die Umlenkung über Eck zur Blockrandfigur gemäss Regelwerk VoltaNord nur bedingt gelingt.

© Weyell Zipse

Das Haus hat einen Zugang über eine durchgesteckte Lobby zwischen Lysbüchelpatz und Hof sowie einen zweiten, räumlich weniger interessanten Zugang an der Weinlagerstrasse. Dazwischen befindet sich in der Gebäudeecke ein Café. Weitere Gemeinschaftsräume mit Waschsalon sind in der inneren, zum Hof orientierten Gebäudeecke angeordnet. Der Genossenschaftsgedanke wird mit einer kommunikationsfördernden Laubengangerschliessung und grosszügigen gemeinschaftlichen Aussenräumen, u.a. zweigeschossige Gemeinschaftsterrassen in der Fuge, umgesetzt. Bei diesen Gemeinschaftsterrassen überrascht die Ausrichtung auf den öffentlichen Lysbüchelplatz, wo es über das Erdgeschoss hinaus keine weitere Aktivierung in der Vertikalen nötig wäre, während hofseitig mehr spürbare Interaktion mit dem Gemeinschaftsgarten der drei Genossenschaften willkommen wäre. Auf eine begehbare Dachterrasse wurde zugunsten der Biodiversität verzichtet, mit der Konsequenz, dass das Gebäude keine wirklich grosse Fläche für eine genossenschaftliche Veranstaltung bietet.

© Weyell Zipse

Die innere Organisation zeichnet sich durch eine sehr klare Struktur mit einer überraschenden Rasterverschiebung in der Mitte aus, die sowohl räumlich als auch konstruktiv überzeugt. Die innere Korridorzone ist im Hinblick auf die Festlegung und Anpassung des Wohnungsschlüssels effizient, führt aber bei den grossen Wohnungen zu einem relativ hohen Korridoranteil, der den Zimmern verloren geht. Im Erdgeschoss, das durch die leichte Neigung immer höher wird, liegen Wohnateliers mit direktem Zugang von der Weinlagerstrasse. Die drei Clusterwohnungen im 1. und 5. Obergeschoss versprechen durch ihre verteilte Anordnung eine Belebung des gesamten Hauses. Die abgesonderte Kleinwohnung je Regelgeschoss stellen eine interessante Diversifizierung des Wohnungsangebotes dar, sind aber durch die unmittelbare Nähe zur Gemeinschaftsterrasse auch exponiert. Der Lärmschutz wurde bei diesem Projekt elegant gelöst, indem alle Schlaf- räume auf die Weinlagerstrasse bzw. die Einzimmerwohnungen auf den Hof orientiert sind.

© Weyell Zipse

Der architektonische Ausdruck konnte das Beurteilungsgremium noch nicht überzeugen. Die Forderung des Regelwerks nach mineralischen Fassaden wird zwar mit Faserzementplatten erfüllt, deren Anordnung in einer Ebene führt jedoch zu einer sehr flachen Fassade, die weder durch unterschiedliche Farbgebung noch durch breitere Platten im Sockelbereich ausreichend gegliedert wird. Die vorgehängten Balkone in Leichtbauweise aus feuerverzinktem Blech erscheinen wenig geeignet, der Blockrandaussenseite die notwendige Robustheit zu verleihen. Auch die Materialisierung des Wetterschutzes der Gemeinschaftsbalkone zum Lysbüchelplatz in Polycarbonat wird für ein Stadthaus an einem öffentlichen Platz als unangemessen erachtet.

© Weyell Zipse

Das vorgeschlagene Tragwerkskonzept ist sehr schlüssig und gut durchdacht. Die Idee, die in den Achsen alternierenden Träger als gering auskragende Einfeldsysteme auszubilden, führt zu einer statisch sinnvollen Querschnittsausnutzung und damit zu einer hohen Wirtschaftlichkeit. Die komplett vor- fabrizierten, quer zu den Trägern gespannten dünnen Betonplatten sind optimal auf die statischen und bauphysikalischen Anforderungen abgestimmt bzw. in ihrer Spannweite auf das bauphysikalisch notwendige Minimum für den Schallschutz ausgelegt. In Summe resultiert ein Tragwerk, welches die Materialien entsprechend ihren Eigenschaften sehr sinnvoll einsetzt. Die ökologische Nachhaltigkeit in der Erstellung ist zwar durch die Verwendung von Beton etwas schlechter als bei einer reinen Holzbauweise, jedoch erhöht die thermische Masse des Betons als passives System über die Nachtauskühlung die Behaglichkeit der Wohnungen im Sommer.

© Weyell Zipse

Der Beitrag hat klare Stärken in der Auseinandersetzung, wie Struktur, Flexibilität und Konstruktion innovativ zueinander finden und einen gestalterischen und wirtschaftlichen Mehrwert schaffen. Weniger überzeugend sind die städtebauliche Antwort, der architektonische Ausdruck und die innere Organisation zur Unterstützung der genossenschaftlichen Gemeinschaft.  

Nord Architekten, Basel

© Nord Architekten

Das Projekt ist sehr sorgfältig und mit grosser Rücksichtnahme auf das Regel- werk VoltaNord entworfen. Mit der geschlossenen, durch Erker ausgezeichneten Platzfassade, dem lockereren Auftritt zur Gartengasse, den drei Eingängen und der mineralischen Materialisierung gliedert sich das Haus gut in die vor- gesehenen Gestaltungsprinzipien des Handbuchs ein. Auch der freiwillige Rücksprung des obersten Geschosses zur Vermittlung zu den niedrigeren Nachbarhäusern ist wohltuend. Es entsteht ein in der Gesamtwirkung gelungener Stadtbaustein. Die Überraschung des Entwurfs wartet im Erdgeschoss auf. Dort befindet sich das «Herz des Hauses», der gemeinschaftliche Gartensaal – ein informeller Ort, welcher der gesamten Hausgemeinschaft zur Verfügung steht und den Zugang zum Hof für alle ermöglicht. Ergänzt wird der Gartensaal durch den gut platzier- ten Gemeinschaftsraum, welcher den Übergang zwischen Lysbüchel-Platz und Hof bildet und einer schönen, zonierten Dachterrasse. Die doppelgeschossigen Loggien am ersten Treppenhaus wirken einladend, sind aber lediglich den Kleinwohnungen vorbehalten. Da es sich um einen Fluchtweg handelt, sind sie auch nicht offiziell möblierbar. Das erste Treppenhaus wird über diese Loggien mit Tageslicht versorgt, was dieses zusätzlich aufwertet. Die anderen beiden Treppenhäuser fallen dagegen etwas ab.

© Nord Architekten

Die Idee des Gartensaals besticht. Ihre Funktionalität wird aber aus verschiedenen Gründen in Frage gestellt. Sie ist, zumal nicht Programmbestandteil, sehr gross und im Zusammenspiel mit den Waschküchen schwierig unterteilbar. Die Raumhöhe als auch die Zugänge sind für ihre Nutzung und Ausdehnung zu klein dimensioniert. Auch ist sie als informeller aneigenbarer Ort in dieser Dimension schwer vorstellbar und bräuchte vermutlich ein Betriebskonzept. Generell ist das Erdgeschoss des Hauses zu kleinräumig und die Wohnungszugänge über die Gartenhalle schwierig.

© Nord Architekten

Die gekammerten Grundrisse sind pragmatisch und qualitätsvoll entworfen. Alle Wohnungen sind zweiseitig organisiert, gut gegliedert und proportioniert und weisen eine kleine, aber angemessene Eingangshalle auf. Es gibt einige Jokerzimmer, welche vom Treppenhaus zugänglich sind, oder geschickt einer Wohnung zugeschaltet werden können. Leider ist bei den grösseren Wohnungen meist ein Zimmer nur en Enfilade zugänglich. Dies macht es schwierig, die Wohnungen mit dem Schlüssel «Zimmer = Anzahl Personen» zu belegen, was die Genossenschaft beabsichtigt. Sehr gut gelöst sind die Cluster-Wohnungen. Die Anordnung der Nasszellen bleibt gegenüber den regulären Wohnungen bestehen. Das Haus ist zum Hof hin neungeschossig und somit regelwidrig. Müsste man das Mezzanin im Erdgeschoss weglassen, würden die EG-Wohnungen kleiner und einseitig orientiert. Die Konstruktion ist so einfach wie sinnvoll konzipiert. Neben aussteifenden Betonkernen ist das restliche Tragwerk als reiner Holzbau angedacht. Die Fassade wiederum besteht aus selbsttragendem Einsteinmauerwerk. Der vertikale Lastabtrag erfolgt, bis auf kleinste Ausnahmen, konsequent.

© Nord Architekten

Es handelt sich um ein gekonnt ausformuliertes und weitgehend pragmatisch entworfenes Projekt, welches einen guten Umgang mit dem Regelwerk Volta Nord findet und einige Besonderheiten aufweist. Dabei sind vor allem die gemeinschaftlichen Elemente zu erwähnen. Bei genauerer Betrachtung haben diese aber leider ihre Schwächen. Auch die gut erarbeiteten, relativ klassischen Grundrisse, sind, da teils en Enfilade, für die Wünsche der Bauherrschaft nicht ideal.