Hofbebauung Hegenheimerstrasse © Architektur Basel
Lieber Hinterhof, wieviel Ausnützung kannst du mir geben?
Im Iselin Quartier wird – wie überall in der Stadt – fleissig nachverdichtet Damit wird auch dort die Luft für Gewerbetreibende dünner. Wo einst ein fleissiger Schmied seinen Hammer schwang, knatternde Camions betankt wurden und sich zigarrenrauchende Handwerker mit Arbeitsmaterialien eindeckten, schaut nun der Rohbau eines fünfgeschossigen Mehrfamilienhauses gwundrig aus der Lücke im Blockrand. Wir haben die Baustelle besucht.
Hofbebauung Hegenheimerstrasse, Situation Neubau © Itten+Brechbühl
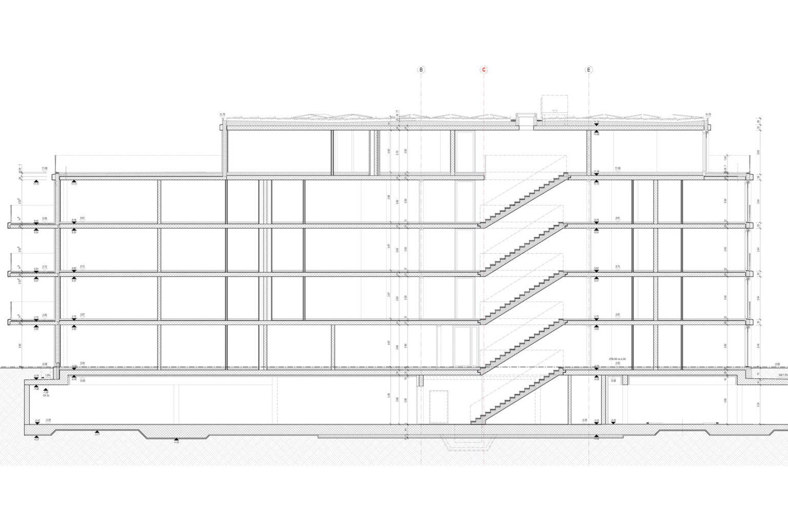
Wir stehen an der Ecke Hegenheimerstrasse / Türkheimerstrasse in Basel. Akkurat bildet das Gebäudevolumen den minimalen Abstand zu den Nachbarsparzellen ab. Die Parzelle kann so mit einem Neubau maximal ausgenutzt werden. Mit dem Schliessen des Blockrandes hätte man diesselbe Ausnutzung nur über ein zweites Volumen erreichen können. Die Aussenräume der Nachbarn profitieren vor allem in den unteren Geschossen durch den verdoppelten Abstand zwischen den Gebäuden und den neuerdings zusammenhängenden Innenhof; denn die Bestandesgebäude standen zuvor auf der Parzellengrenze und bildeten einen hermetisch geschlossenen Werkhof.
Hofbebauung Hegenheimerstrasse © Architektur Basel
Bereits 1984 hatte Roger Diener an einer volumetrisch ähnlichen Lösung gearbeitet, wie ein generelles Baubegehren aus demselben Jahr beweist. Sein Konzept mit einem Erschliessungskern und relativ geschlossener Fassade im Norden, sowie gerichteten Wohnungen mit Blick über die Einfamilien-Reihenhäuser im Süden scheint wesentlich rationeller, jedoch für die volumetrische Integration in den allseitig umgebenden Hofraum weniger gut geeignet.
Hofbebauung Hegenheimerstrasse, Projektidee von 1984 © Diener & Diener Architekten
Fast 40 Jahre später wird die Parzelle nun tatsächlich bebaut. Der neue Entwurf stammt jedoch nicht von Diener & Diener sondern aus der Feder von Itten+Brechbühl, dem Architektur- und Generalplanerbüro dessen Ursprung auf die Zusammenarbeit mit Otto Rudolf Salvisberg und bis in die 1920er-Jahre zurückgeht.
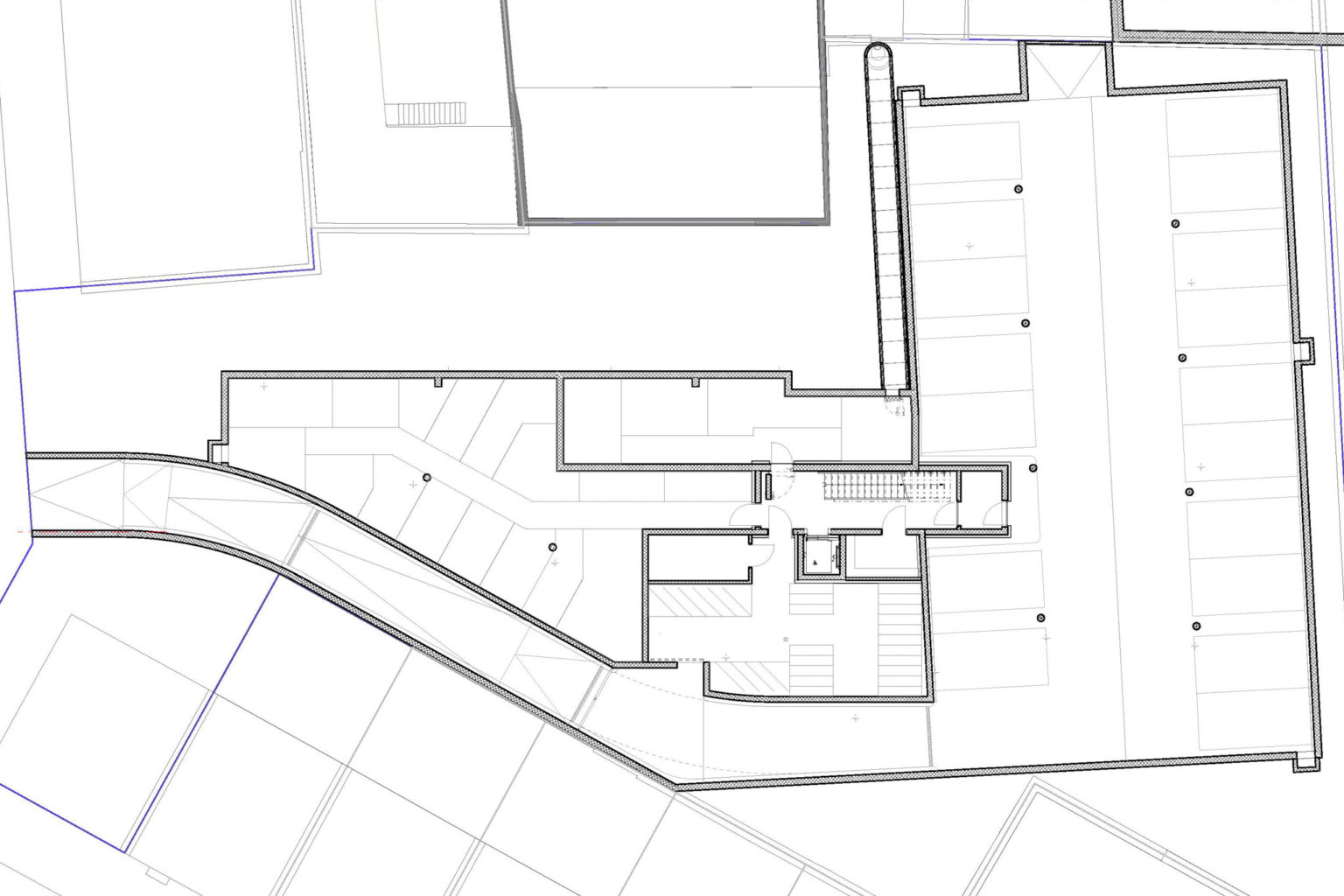
Hofbebauung Hegenheimerstrasse, Erdgeschoss © Itten+Brechbühl
Auf der Baustelle dominiert derzeit der graue Beton des Erschliessungskerns, der Deckenplatten und einzelner Stützen. Das Mockup der Fassade mit den grün lasierten Well-Eternit-Platten und den hellen Faserbetonbändern sucht die Stimmung der Hofbauten und grenzt sich deutlich von den Gebäuden des umgebenden Blockrands ab.
Hofbebauung Hegenheimerstrasse © Architektur Basel
Von der Attikawohnung eröffnet sich ein für Hofbebauungen ungewohnter Weitblick. Hier erblickt man die grosse Viefalt der regionalen Bautkultur. Von Einfamilienreihenhäusern über den Turm des Ökolampads, das Biozentrums bis weit ins Baselbiet, nach Solothurn, ins Sundgau und den Schwarzwald hinein.
Hofbebauung Hegenheimerstrasse © Architektur Basel
Lieber Hinterhof, wieviel Ausnützung kannst du mir geben?
Wie sich das Haus am Ende in den Hofraum einfügt, ob die polygonalen Aussenräume den konstruktiven Aufwand wert sind und wie die Stimmung in den nicht rechtwinkligen Innenräume sein wird, werden wir in ein paar Monaten nochmals vor Ort überprüfen – und an dieser Stelle darüber berichten.
Text und Bild: Armin Schärer / Architektur Basel