Baukultur
20.08.25
Wohn- und Geschäftshaus Schwitter Herzog & de Meuron, 1987-1988 © Giorgio Azzariti
Architekturstadt Basel: Die 1980er als Wendepunkt
Sie war die entscheidende Dekade. Die 1980er-Jahre machten Basel zur bedeutenden Architekturstadt – die sie bis heute ist. Carl Fingerhuth setzte als Kantonsbaumeister wichtige Impulse. Mit dem Architekturmuseum AM schuf man 1984 den institutionellen Rahmen. Diener & Diener, Michael Alder und Herzog & de Meuron betraten die Bühne. Im retrospektiven Blick entlang der «Auszeichnung guter Bauten» würdigt unser Redaktor Lukas Gruntz die für die Architekturstadt Basel entscheidende Epoche.
© Steib + Steib
Sein Blick war etwas ratlos. Im Gespräch, das ich vergangenen Dezember mit Peter Zumthor führen durfte, fiel ihm auf meine Frage, welche Basler Architektur der Nachkriegsmoderne ihn besonders interessiert hätte, spontan keine Antwort ein. Spannend wurde es für ihn erst später. Der Wendepunkt kam 1980, könnte man sagen. Damals fand erstmals die «Auszeichnung für gute Bauten» statt. Prämiert wurden Bauten, «die nicht nur von hoher Qualität, sondern auch geeignet sind, das Anliegen der heutigen Architektur breiten Kreisen verständlich zu machen.» Die Bewertungskriterien umfassten die «Einordnung in das Stadtbild», die «Erreichung eines starken architektonischen Ausdrucks unter bewusster Beschränkung der angewandten Mittel» sowie die «Klarheit der formalen und inhaltlichen Aussage». Ausgezeichnet wurden ausschliesslich Bauten, die in den ausgehenden 1970er-Jahren entstanden waren. Der Geist der Nachkriegsmoderne ist noch stark spürbar. Die Überbauung «Im Sesselacker» von Walter Wurster erzählt vom rationellen Bauen und dem Glauben an technologischen Fortschritt. «Es handelt sich um ein Beispiel einer abgerundeten Wohnsiedlung, die verschiedenen Ansprüchen in idealer Weise gerecht wird», lautet die spröde Würdigung der Jury. Eine neue Architektur kündigte hingegen das 1980 erbaute Museum für Gegenwartskunst von Wilfrid und Katharina Steib an. Es schaffe «eine geglückte Verbindung von historischer Bausubstanz und moderner Architektur unter Einbezug eines Altbaus in das Museumskonzept.» Wichtige Grundthemen für die folgenden Jahre wurden hier gesetzt: die Lektüre des Kontexts, das Aufnehmen historischer Spuren, typologische Weiterentwicklung. «Bauen wird damit zu einem Dialog mit vorhandener Baustruktur und mit einem gegebenen Stadtbild», schreibt Carl Fingerhuth.
© Steib + Steib
Fünf Jahre später fand die zweite «Auszeichnung guter Bauten» statt. «Der Anteil der Umbauten an der Gesamtzahl der gemeldeten Bauten und ihre beachtliche Qualität sind auffällig. Dies zeigt, dass der taktvolle und behutsame Umgang mit der vorhandenen Bausubstanz zum Anliegen der meisten Architekten geworden ist», liest man in der Einleitung. 1985 betraten zwei wichtige Akteure die Bühne: Diener & Diener und Michael Alder. «Hammer 1» ist mit der inzwischen kultigen Fotomontage aus erhöhter Perspektive und prägnantem Wolkenhimmel abgebildet. «Das Verhältnis der einzelnen Baukörper und -teile zueinander ist sehr ausgewogen. Hohe Flexibilität zeichnet die grosszügigen Grundrisse der Wohnungen aus», lobt die Jury etwas hölzern. Diener & Diener wurden mit der Kantonalbank an der Ecke Missionsstrasse/St. Johanns-Ring gleich doppelt ausgezeichnet. Das Eckhaus mit der leicht gebogenen Mauer setzt sich mit der «Architektursprache der 30er» auseinander. «Die zurückgesetzte Führung der Strassen- und Baulinie an dieser Stelle ist durch die im genauen Verlauf der Baulinie frei stehende, leicht eingebogene Mauer ironisch interpretiert.»
© Diener & Diener
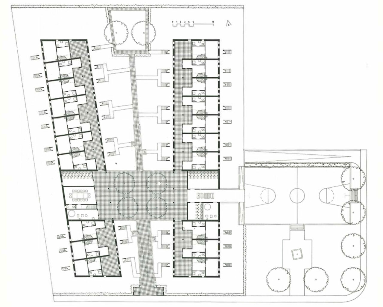
Ein paar Seiten später folgt der Auftritt von Michael Alder, der als Mitgründer der Architekturschule in Muttenz für den lokalen Architekturdiskurs eine wichtige Rolle spielte, mit den Häusern für die Wohngenossenschaft Bündten in Riehen. Reihenhäuser formieren sich um einen zentralen Platz, der das gemeinschaftliche Leben fördert. Die Jury lobt die «Nüchternheit» und die «Betonung des Gemeinsamen vor dem Einzelnen».
© Michael Alder
Wir biegen in die 1990er-Jahre ein. Es dauerte sieben Jahre, bis 1992 die nächste «Auszeichnung guter Bauten» stattfand – neuerdings war auch das Baselland mit von der Partie. Es folgt: der fulminante Auftritt von Herzog & de Meuron. Mit dem Wohn- und Bürohaus Schwitter und dem «Wohnhaus entlang einer Brandmauer» an der Hebelstrasse erreichen sie die doppelte Auszeichnung. Beide Bauten zählen heute zu den unbestrittenen Basler Architekturikonen. Ersteres entstand im Auftrag der «Zentralstelle für staatlichen Liegenschaftsverkehr». Es ist bemerkenswert, dass eine spröde, staatliche Dienststelle derart grossartige Architektur ermöglichte. «In der Art eines Möbelstücks ist das schmale Haus an die Hofmauer eines innerstädtischen Grundstücks gelegt, eine ebenso beispielhafte wie singuläre Lösung von hohem architektonischem Rang», lautet die Würdigung der Jury.
© Auszeichnung Gute Bauten 1992
Der Bau an der Allschwilerstrasse wird für seine «raffinierten Überlagerungen in der Grundrissgeometrie» ausgezeichnet. Das feine Betonraster der Fassade bilde «den architektonischen Reiz der Ecklösung» ab. Gleich vierfach ausgezeichnet werden Diener & Diener – mit den Häusern am St. Albanrheinweg, dem Geschäftshaus Steinentorberg an der Heuwaage und dem Bürohaus an der Hochstrasse, die bis heute einen hohen Stellenwert und Relevanz haben. Nicht unerwähnt sollte die Wohnsiedlung Davidsboden von Erny, Gramelsbacher, Schneider bleiben. Sie war ein wegweisender Beitrag für den kollektiven Wohnungsbau in Basel. Man darf die These wagen: 1992 war wahrscheinlich der stärkste Jahrgang der «Auszeichnung guter Bauten» aller Zeiten.
© Herzog & de Meuron
Neben den Broschüren zu den Auszeichnungen fasst eine Publikation die entscheidende Dekade zusammen. Sie heisst «Bauten für Basel 1979–1988». In der Einleitung bekennt sich der damalige Regierungsrat Eugen Keller zur Architekturstadt: «Wir müssen erreichen, dass in der Stadt ein politisches Klima entsteht, in dem gute Architektur als kulturelle Verpflichtung selbstverständlich wird und schlechte Architektur stigmatisiert wird.» Er zählt auch konkrete Massnahmen auf. Die vermittelnde Öffentlichkeitsarbeit war damals ein wichtiges Ziel. Am 21. und 22. September 1983 fand im Kollegienhaus beispielsweise eine Tagung zum Thema «Gute Architektur?» statt. Zwei Jahre später war das Fragezeichen gewichen – und man widmete sich optimistisch dem «Plan zur Wirklichkeit». Es ist bemerkenswert, dass die Architekturvermittlung in den 1980er-Jahren im Hochbauamt höchste Priorität genoss.
© BVD
Aus den Tagungen wurden konkrete Forderungen abgeleitet. Besonders interessant: «Die Auswahl der Architekten erfolgt, wenn immer möglich, über Wettbewerbe.» Und: «Das Hochbauamt unterstützt private Bauherren bei der Durchführung von Wettbewerben.» Dazu gibt es ein gutes Beispiel: Die Colmarer Park AG konnte man überzeugen, für ihren Neubau an der Allschwilerstrasse einen Wettbewerb durchzuführen. Mit dem Siegerprojekt von Herzog & de Meuron entstand eine Architekturikone. Der Rest ist Geschichte. Fingerhuth fasst die Haltung pointiert zusammen: «Es müsste deshalb das Ziel einer staatlichen Architekturpolitik sein, auch die Privaten zu motivieren, die Auswahl ihrer Architekten nach dem Leistungs- und nicht nach dem Beziehungsprinzip zu treffen.» Ein Anspruch, der bis heute nachhallt.
Text: Lukas Gruntz / Architektur Basel
Quellen:
Quellen:
- Fingerhuth, Carl: Bauten für Basel. 1979-1988, Verlag Wepf, Basel, 1988.
- Online-Archiv Auszeichnung Gutes Bauen
© BVD