Baukultur 01.10.25

Familienwohnungen am Rheinufer zur Entstehungszeit © Wohnen

Rhypark zurück auf Feld 1: Denkmalpflegerische Sanierung oder Wettbewerb!

Zurzeit läuft das Baubewilligungsverfahren für die Transformation der Wohnüberbauung Rhypark aus dem Jahr 1986 des BSA-Architekten Walter Wurster. Das siebengeschossige Wohnhaus mit über hundert Wohnungen wurde zur Förderung des sozialen Wohnungsbaus auf dem Areal des ehemaligen städtischen Schlachthofs erbaut. Die prominente Lage am Rhein sowie die Verbindung von Altersheim, Wohnbauten und Saalbau zum St. Johanns-Park gelten als beeindruckende städtebauliche und architektonische Transformationsleistung der 1980er-Jahre. Die Schutzwürdigkeit des Areals konnte wegen fehlender Ressourcen seitens der Denkmalpflege bislang nicht geprüft werden. Dabei hätte sowohl der Stadt – die im Besitz des Baugrunds ist – als auch der Baurechtnehmerin Wohnbau-Genossenschaftsverband Nordwest (WGN) klar sein müssen, dass der Umgang mit diesem bedeutenden Zeitzeugen eine besondere Sensibilität erfordert. Beide Parteien hätten entweder auf eine rein denkmalpflegerische Sanierung oder zumindest auf ein qualitätssicherndes Wettbewerbsverfahren mit Einsitz einer kompetenten Fachjury sowie der Denkmalpflege setzen müssen. Der Direktauftrag, der zur vorliegenden Baueingabe geführt hat, ist das falsche Vorgehen, schreibt unsere Redaktorin Christina Leibundgut in ihrem Kommentar.

Zur Geschichte des Ortes Das durch die Verlegung des städtischen Schlachthofs freigewordene Areal von über 40'000 Quadratmetern sollte zu einem wesentlichen Teil für den sozialen Wohnungsbau genutzt werden. Das Projekt von Walter Wurster ging aus einem Wettbewerbsverfahren hervor, in dessen Rahmen neben 450 Wohnungen auch ein Saalbau für das Quartier, ein Jugendhaus, Kindergärten und ein Hallenbad geplant wurden. Für die Parkfläche blieben rund 8'500 Quadratmeter übrig. Aufgrund der Rezession und des erhöhten Leerwohnungsbestands wurde politisch ein Überdenken des Bebauungsplans verlangt. Die Überarbeitung führte zum heutigen Ensemble aus Park, Wohnanlage und Altersheim.

730.150

Statt der ursprünglich vorgesehenen drei Wohnblöcke mit 319 Wohnungen wurden 102 Wohnungen – vorwiegend für Familien – in dem siebengeschossigen Wohnblock entlang der Mülhauserstrasse sowie 26 Maisonettewohnungen im dreigeschossigen Bau am Rhein realisiert. Ein Grossteil des Areals wurde als Park- und Grünzone ausgeschieden. Damit eine reine Parknutzung, wie wir sie heute kennen, möglich wurde, musste auch die alte Stadtgärtnerei weichen.

Gründung der WGN durch den Rhypark Im Beschluss des Grossen Rates wurde damals festgehalten, dass bei der geplanten Wohnüberbauung vor allem der genossenschaftliche Wohnungsbau zu berücksichtigen sei. Die bestehenden Wohngenossenschaften konnten sich jedoch nicht zum Abschluss von Baurechtsverträgen entschliessen, da das Risiko zu gross schien. Nachdem bereits zuvor ein grosses genossenschaftliches Projekt aus diesen Gründen nicht realisiert werden konnte, ergab sich ein wichtiger Anstoss: Innert kurzer Zeit wurde von 26 Mitgliedsgenossenschaften der Wohnbau-Genossenschaftsverband Nordwest (WGN) gegründet. Der Bau des Rhyparks war somit Gründungsursprung für die WGN – und es entstand ihr erstes Haus. Entsprechend sollte auch seitens der WGN eine besondere Sensibilität vorhanden sein.

Die Wohnungen zeichnen sich aus durch eine hohe Wohnqualität © Privat

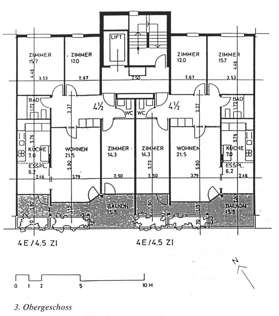
Architektonische Qualität des Bestandes Der 1986 erbaute «Rhypark» ist laut Dorothee Huber, Architekturhistorikerin und Verfasserin des Architekturführer Basel, ein gutes Beispiel für ein «Grand Ensemble», das vom ungebrochenen Planungsoptimismus der Nachkriegsmoderne zeugt. Zweifach geknickt erhebt sich der siebengeschossige Wohnbau auf abgeschrägten Betonpfeilern, den sogenannten Pilotis, wie man sie von Le Corbusier kennt. An einer Stelle öffnet sich das Erdgeschoss und verbindet die zwei Seiten des Gebäudes. Die Promenade am Rhein reicht bis an die zurückversetzten Hauseingänge heran. Das eingezogene Erdgeschoss bietet grosszügige, gedeckte Aussenbereiche, die für das Zusammenleben im Haus von grosser Bedeutung sind. Das Vorbild ist unverkennbar: Le Corbusiers «Unité d'Habitation». Es gelang Wurster zwar nicht, diese in gleicher Radikalität umzusetzen. Dennoch gilt es beim Überführen in eine neue Zeit, im Geiste des Hauses zu denken.

© Architektur Basel

Das Haus verfügt über besonders gute Wohnungsgrundrisse, die sparsam und effizient sind und dennoch über eine hohe Wohnqualität verfügen. Die Wohnungen werden jeweils über eine zentrale Halle betreten, die genügend Platz bietet zum Ankommen und gleichzeitig Erschliessungsraum ist für die beidseitig ausgerichteten Zimmer. Ein besonderes Element ist die Verglasung zum Wohnen, die Tageslicht in die Eingangshalle bringt. Eine grosszügige Balkonschicht mit Auskragungen, Verglasungen und Pflanztrögen  bildet eine lebhafte Schicht und erweitert die Wohnungen nach draussen zum Rhein. Die Wohnungen in den Wohngeschossen (über dem Sockel) geniessen alle eine wunderbare Aussicht. Die Farbigkeit und Lebendigkeit der Balkone, die auch das soziale Leben sichtbar machen, tragen massgeblich zum Charakter des Hauses bei, weswegen es auch liebevoll Favelahaus genannt wird.

© Wohnen

Polemik von Christ-& Gantenbein Im Jahr 2018 gab es eine prominente Wortmeldung zum Rhypark: Die beiden Basler Architekten Emanuel Christ und Christoph Gantenbein äusserten sich in einem Interview mit der NZZ und schlugen radikal dessen Abbruch vor. Der Boden in Basel sei zu knapp, um ihn an dieser privilegierten Lage für locker gebauten, günstigen Wohnraum zu verschwenden. «Deshalb sprechen wir uns dafür aus, die bestehenden Wohnbauten abzubrechen und unerschrocken optimistisch eine neue Zukunft zu planen – so wie unsere Vorgänger in den Siebzigerjahren.» Heute denken wir – schon allein aus ökologischen Gründen – ganz anders über den Bestand nach. Alles Gebaute hat an Wert gewonnen, und es ist fraglich, ob die beiden im heutigen Zeitgeist noch gleich polemisch den Abriss fordern würden. Die Wortmeldung von renommierter Seite hat dem Ansehen des Baus jedoch nicht geholfen – und möglicherweise dazu geführt, dass ihn die Bauherrschaft grundsätzlich unterschätzt.

Massive Überformung im Erdgeschoss Das vorliegende Bauprojekt sieht neben den zwingend nötigen technischen Sanierungen auch volumetrische Erweiterungen vor: Die heute offene Struktur, die sich durch die corbusianischen Pilotis auszeichnet, soll weitgehend geschlossen werden. Damit wird die Fassadenflucht durch den kompletten Ausbau des Erdgeschosses grundlegend verändert. Ein zusätzlicher Wermutstropfen ist das Schliessen der Durchwegung, die bereits bei Wurster verhältnismässig klein ausfiel. Natürlich kann man diesen Sockel und auch das in die Jahre gekommene Haus aufwerten, die Frage ist, ob der Ansatz mit den Atelierwohnungen im Erdgeschoss den gewünschten Effekt haben wird. Ebenso fraglich scheint, dass die Pilotis, die grundsätzlich frei stehen sollten, einfach eingehaust werden. Gerne hätten wir dazu eine Fachjury gehört.

Denkmalpflege im Verzug – Forderung an die Stadtbildkomission Von seiner architektonischen und städtebaulichen Qualität her sollte das Objekt mindestens im Inventar schützenswerter Bauten der Kantonalen Denkmalpflege Basel-Stadt aufgeführt sein. Die Schutzwürdigkeit ist gemäss Heimatschutz unbestritten und wurde bislang einzig aus Gründen mangelnder Ressourcen nicht inventarisiert. Die Stadtbildkommission ist gefordert, darauf zu bestehen, dass bei einem solchen Eingriff zwingend ein qualitätssicherndes Verfahren vorliegen muss und die Bauherrschaft daher zurück auf Feld 1 geschickt wird. Zudem ist die Denkmalpflege gefordert, Ressourcen zu schaffen, um die Schutzwürdigkeit zu bestätigen oder zu widerlegen. Reine Kapazitätsengpässe dürfen nicht zu irreversiblen Eingriffen an potenziellen Baudenkmälern führen.

Artikel: Christina Leibundgut / Architektur Basel

Über den Architekten: Walter Wurster

von Dorothee Huber

Siedlung Sesselacker auf dem Bruderholz © Bruno Thüring

Der Architekt Walter Wurster (1927-2000) arbeitete nach der Ausbildung im Büro von Le Corbusier in Paris. Zurück in Basel, betrieb er sein Architekturbüro zum Teil in Partnerschaft mit Hans-Ulrich Huggel und baute in den Jahren des wirtschaftlichen Aufschwungs in Basel und Umgebung eine Reihe bemerkenswerter Ein- und Mehrfamilienhäuser. Unter den öffentlichen Bauten beispielhaft sind die Friedhofanlage in Allschwil (1950-1956), die Reformierte Kirche in Bottmingen (1958/1959), die Gemeindeverwaltung in Therwil (1959), die Friedhofanlage Blözen in Pratteln (1962), die Siedlung Sesselacker auf dem Bruderholz (1966-1971), das Schulhaus St. Alban an der Engelgasse (1969) und die Rennbahnklinik in Muttenz (1979-1984). Wurster fühlte sich zeitlebens der Moderne, allen voran Lehre und Werk von Le Corbusier verpflichtetet

Quellen: Matter Emil, Familienwohnungen am Rheinufer, Wohnen, Heft 2, 62 (1987).