Baustellenbesuch 19.04.20
Ein wunderbarer Eingangsraum bildet das Zentrum der Wohnung © Simon Heiniger / Architektur Basel

Ein wunderbarer Eingangsraum bildet das Zentrum der Wohnung © Simon Heiniger / Architektur Basel

Auf den Spuren des Nobelpreisträgers: im Spittelerhaus gibts neue Wohnungen

Im April vor einem Jahr feierte Liestal Carl Spitteler. Der gebürtige Liestaler wurde 1919 – also genau vor hundert Jahren mit dem Nobelpreis für Literatur ausgezeichnet. Der eigens für die Feier nach Liestal gereiste Bundesrat Alain Berset würdigte insbesondere Spittelers politisches Engagement rund um den Ersten Weltkrieg. Geboren wurde Spitteler noch im vorletzten Jahrhundert, aufgewachsen ist er ab 1845 im Haus an der Kasernenstrasse 22. Das Gebäude wurde nun neu organisiert und zu Wohnungen umgebaut. Wir haben die Baustelle mit Architektin Heidi Rieder besichtigt.

Spittelerhaus, Liestal (bearbeitet), Grundlagen Luftbild © Bundesamt für Landestopografie swisstopo

Spittelerhaus, Liestal (bearbeitet), Grundlagen Luftbild © Bundesamt für Landestopografie swisstopo

Der von aussen als langgezogener Solitär wirkende Bau besteht aus drei Gebäudeteilen. Alle drei sind eigenständig, verfügen über einen eigenen Eingang und je ein Treppenhaus. Die Fassade des rechten Gebäudeteils folgt leicht abgeknickt der Strasse; die Dachtraufe läuft durch. Der Name des Restaurants im rechten Teil erinnert an die ehemalige Brauerei Brodbeck. Diese nutzte den rückseitigen Hofbereich zum späteren «Spittelerhof» von 1983 aus dem Hause Otto + Partner. «Der Restaurantteil bleibt bestehen,» sagt Heidi Rieder, «das restliche Gebäude wird zu Wohnungen umgebaut.»

zur alten Brauerei Brodbeck», im April 1944, STABL_PA_6292_01.377, Fotosammlung Seiler Arnold und Junior, Liestal, Staatsarchiv Basel-Landschaft

Das «Restaurant zur alten Brauerei Brodbeck», im April 1944, STABL_PA_6292_01.377, Fotosammlung Seiler Arnold und Junior, Liestal, Staatsarchiv Basel-Landschaft

«Dass jedes Haus seine eigene Erschliessung hat, ist ein Glücksfall,» sagt sie, so haben wir, ohne gross in die Struktur und Grundrissorganisation einzugreifen zu müssen, einen neuen Aufzug integrieren können. Alle sechs neuen Wohnungen und das Büro im Erdgeschoss sind nun über das eine Treppenhaus erschlossen.» Sie fügt an: «Die Effizienz des neuen Grundrisses ist schlussendlich auch für die Denkmalpflege wichtig gewesen. Schliesslich sei es das Ziel, möglichst viele alte Gebäude einer sinnvollen Nutzung zuzufügen.»

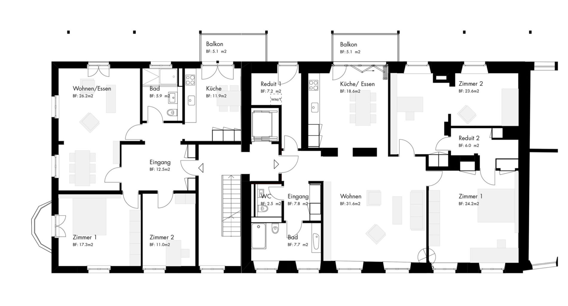
Je zwei Wohnungen pro Geschoss © Rosenmund + Rieder Architekten BSA SIA AG

Je zwei Wohnungen pro Geschoss © Rosenmund + Rieder Architekten BSA SIA AG

Das rechte Treppenhaus wurde zugunsten eines Aufzugs eliminiert © Rosenmund + Rieder Architekten BSA SIA AG

Das rechte Treppenhaus wurde zugunsten eines Aufzugs eliminiert © Rosenmund + Rieder Architekten BSA SIA AG

Wir betreten die Baustelle. Auf jedem Geschoss gibts zwei Wohnungen. «Die Bausubstanz ist trotz des hohen Alters gut, die Oberflächen sind mit einem neuen Anstrich auch weiterhin nutzbar. Hie und da wird eine Tür eingefügt oder Wandöffnungen geschlossen,» sagt Rieder. Die eine Wohnung wartet mit zwei anständig grossen Schlafzimmern, einem zweiseitig belichteten Wohn/-Essbereich, einem Bad und einer Küche auf. Letztere hat einen direkten Ausgang auf den neuen Balkon zum Hof. Highlight dürfte der Eingangsraum sein. Mit seinen fast zwölf Quadratmetern Bodenfläche lässt er sich als zentraler Verteiler sehr gut nutzen; einen tatsächlichen Gang, der nur der Erschliessung dient, findet sich somit nicht.

Ein wunderbarer Eingangsraum bildet das Zentrum der Wohnung © Simon Heiniger / Architektur Basel

Ein wunderbarer Eingangsraum bildet das Zentrum der Wohnung © Simon Heiniger / Architektur Basel

Grössere Eingriffe sind meist nur aus statischen Gründen nötig © Simon Heiniger / Architektur Basel

Grössere Eingriffe sind meist nur aus statischen Gründen nötig © Simon Heiniger / Architektur Basel

Die andere Wohnung ist ungleich grösser. Die regelmässige Befensterung hätte wohl den Einbau eines weiteren Zimmers möglich gemacht, womit der Effekt des grosszügigen Durchwohnens von der Strasse zum Hof aber verloren gegangen wäre. Eine klare Erschliessung im Inneren gibt es nicht. Das Wohnzimmer dient neben dem Ess- und Kochbereich als zentraler Raum. Über ihn werden die beiden Zimmer mit zwischengeschaltetem Reduit erschlossen. Gänzlich neu ist hier das Bad im ehemaligen Treppenhaus. Hinter dem Lift gibt es ein zweites Reduit. Aufgrund des Bestands ergeben sich auf allen Geschossen etwas andere Grundrisse. Über alles betrachtet, verbraucht die grössere Wohnung – durch die, bezogen auf den Umbau, sehr ungünstig liegenden, statisch aber wichtigen Bestandeswände – sehr viel Fläche für vergleichsweise wenig Räume.

Hofbereich, Spittelerhaus und Spittelerhof © Simon Heiniger / Architektur Basel

Hofbereich, Spittelerhaus und Spittelerhof © Simon Heiniger / Architektur Basel

Aus einer nachhaltigen Betrachtung macht diese Planung aber durchaus Sinn. Die Substanz ist gut und lässt sich verwenden. Die grössten Eingriffe sind denn auch hauptsächlich statischer Natur; einerseits um bestehendes Holzwerk zu unterstützen, andererseits bei Anpassungen – aber nur, wenn dadurch wirklich ein Mehrwert für den Raum entsteht. Das Haus hat tatsächlich schon einiges hinter sich. Die ursprüngliche Wohnnutzung wich 1970 teilweise den Räumlichkeiten des Liestaler Architekturbüros Otto + Partner. Seit dem Wegzug steht ein grosser Teil leer, was eine Gesamtsanierung erst möglich machte. Nun wird wieder gewohnt. Carl Spitteler hat das Haus an der Kasernenstrasse 22 in Texten zu seiner Kindheit offenbar sehr bildhaft beschrieben. Ob ihm die neuen Wohnungen wohl auch gefallen würden?

Text: Simon Heiniger / Architektur Basel


Spittelerhaus, Liestal
Adresse: Kasernenstrasse 22, 4410 Liestal
Architektur: Rosenmund + Rieder Architekten BSA SIA AG
Baujahr: 1750
Umbau: 2019/20
Funktion: Wohnen + Büro


Quellen:
- Fotos: Simon Heiniger / Architektur Basel
- Pläne: © Rosenmund + Rieder Architekten BSA SIA AG
Karten/Luftbild:
- Bundesamt für Landestopografie swisstopo