Projekte 06.08.25

© Kostas Maros Zwingerstrasse 29 Basel, Umbau.

«Das Leben einer WG spielt sich in der Küche ab.»

Mit der "WG29" ist im Herzen des Gundelis ein Wohnprojekt entstanden, das viele Themen vereint: der Umgang mit dem Bestand, zirkuläres Bauen, soziale Verantwortung und gestalterische Präzision. Anlässlich der Fertigstellung des Umbaus vom ehemaligen Wohnheim für Lernende und Studierende haben wir mit der Architektin Fabienne Maritz über das Projekt gesprochen. Sie erzählt von der Arbeit mit dem Bestand, den Möglichkeiten von Re-Use und davon, wie Sinnlichkeit zur Nachhaltigkeit beiträgt.

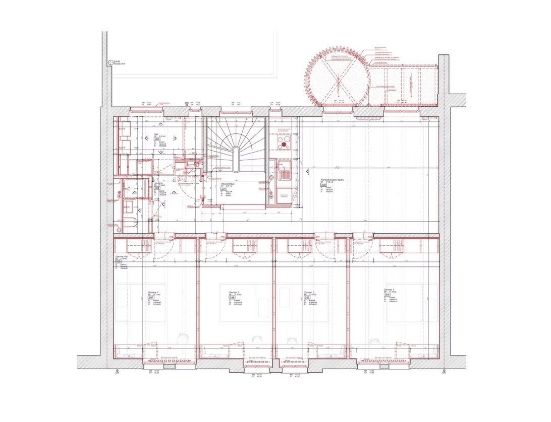
Grundriss WG29 © fmunlimited

Architektur Basel: Die WG29 könnte ein Prototyp für zukunftsfähiges Bauen sein: zirkulär gedacht, sozial motiviert und gestalterisch präzise umgesetzt. Wie bist du an diese Aufgabe herangegangen? Fabienne Maritz: "Meine Projekte sind meist Umbauten bestehender Gebäude, so auch WG29. Folglich starte ich bereits mit einem gegebenen Kontext. Das Arbeiten mit dem Bestand, sozusagen das Herausarbeiten seiner Essenz und das präzise Einarbeiten von wiederverwendeten Bauteilen sind Themen, die uns in allen unseren Projekten interessieren. An der Zwingerstrasse stellte sich die Frage, was sich aus dem bestehenden Haus machen lässt. In der Diskussion innerhalb des Teams entwickelte sich schnell die Idee, dass es toll wäre, an dieser zentralen Lage in der Stadt bezahlbaren Wohnraum für Lernende und Studierende zu realisieren. Wir waren alle einmal in der Lehre oder im Studium und wissen, wie schwierig es ist, ein gutes, bezahlbares WG-Zimmer zu finden. Damit aus dieser ersten Idee das realisierte Projekt werden konnte, war es wesentlich, die richtigen Leute zusammenzubringen, die Interesse und vor allem Lust hatten, sich dieser Aufgabe zu stellen. Dazu gehört in erster Linie die Bauherrschaft, dann die Planer und letztlich vor allem die Handwerker und ausführenden Unternehmer. Bauen mit wiederverwendeten Materialien und Bauteilen bedeutet immer ein gewisses Risiko. Alle am Projekt Beteiligten müssen bereit sein, dieses Risiko mitzutragen und sich auf einen dynamischeren Prozess einzulassen, als man ihn vom klassischen Bauen kennt."

© Kostas Maros

Das klingt nach einem nachvollziehbaren Prozess. Der Umbau basiert mitunter auf Re-Use. Einige Materialien stammen aus der Bauteilbörse oder aus alten Beständen. Wie sehr hat dich das im Entwurf beeinflusst?

"WG29 ist nicht das erste Projekt, in dem wir auf Re-Use setzen. Mit jedem Projekt lernt man dazu. Am Anfang macht man Fehler. Aus diesen Fehlern lernt man. Letztlich ist es also ein Prozess, in den man sich erst hineindenken - vor allem aber einarbeiten muss. Wichtig ist, dass man früh im Planungsprozess mit der Auswahl der Materialien und Bauteilen beginnt. Ich empfinde das für den Entwurfsprozess als positiv, weil es hilft, früh mit ganz konkreten, teilweise auch unerwarteten Materialien und Objekten zu entwerfen. Diese Art des Arbeitens verlangt aber auch Flexibilität, den Entwurf dem Verfügbaren anzupassen."

© Kostas Maros

Also ein hohes Mass an lernender Planung, spannend! Offen und persönlich gefragt: Was bedeutet Re-Use für dich? Ist es für dich eher eine pragmatische Strategie oder eine gestalterische Haltung?

"Es ist beides. Die gestalterische Haltung entwickelt sich gewissermassen aus der pragmatischen Strategie. Wenn man mit Re-Use arbeitet, dann wird der Entwurf noch viel stärker zu einem Prozess, der lange offen bleibt und sich oft erst mit dem konkreten Material oder dem gefundenen Objekt konkretisiert. Dieser Prozess erfordert Spontanität, schnell und unverkrampft auf neue Gegebenheiten zu reagieren. Mich reizt aber auch die gestalterische Herausforderung. Man arbeitet mit dem, was man findet und das ist teilweise nicht das „Schönste“. Beispielsweise stammen die Plättli in den Badezimmern und der Küche aus Lagerbeständen und waren für die Mulde bestimmt. Die Plättli sind eher langweilig weiss. Um sie aufzuwerten und ihnen gestalterisch einen Twist zu geben, haben wir farbige Fugen verwendet."

© Kostas Maros

Die Gerüstdielen, die heute Tische, Küchen und Regale bilden, stammen aus einer Zusammenarbeit mit dem Bürgerspital. Wie ist diese Kooperation entstanden – und was war besonders daran?

"Zum einen startete die Idee mit einem spontanen Input von einem der am Bau beteiligten Unternehmern. Zum anderen kannte ich die Werkstatt des Bürgerspitals aus einer früheren Besichtigung, wo mir im Kopf geblieben ist, dass die Menschen in der Werkstatt gerne mit einfachen, repetitiven Prozessen arbeiten. Die grosse Herausforderung bei der Nutzung der Gerüstdielen war nämlich die aufwändige Aufbereitung. Man muss sich vorstellen, diese Dielen haben bereits ein Leben hinter sich, in dem sie widriger Witterung ausgesetzt waren, sie sind voller Nägel, Metallteilen und Verunreinigungen. Vor allem das Entfernen der Nägel ist aufwändig und muss von Hand gemacht werden. Hier erwies sich die Zusammenarbeit mit dem Bürgerspital als ideal. Als wir auf das Bürgerspital zugegangen sind, haben sie sich über das Projekt gefreut und es gerne angenommen. Zu erwähnen ist aber auch hier der Faktor Zeit. Der Prozess muss früh geplant werden, weil die Bearbeitung sich nach dem Takt des Bürgerspitals richtet."

© Kostas Maros

Lehmwände, Lehmputz, geölter Altparkett: Die Materialien wirken nicht nur nachhaltig, sondern auch sinnlich. War das für dich ein zentrales Anliegen im Projekt?

"Ich bin überzeugt, dass nachhaltiges Bauen auch schön und sinnlich sein muss. Zu Dingen und Bauten, die schön sind und einem auf diese Weise ans Herz wachsen, trägt man mehr Sorge, pflegt sie und nutzt sie länger. So gesehen ist Schönheit und Sinnlichkeit ein wesentlicher Aspekt von Nachhaltigkeit. Vielleicht lässt sich Sinnlichkeit konkret auch als Wertigkeit der Materialien ausdrücken. Mir ist es ein grosses Anliegen, dass die Materialien, die wir einsetzen eine hohe Wertigkeit haben und so zur Atmosphäre eines Raumes beitragen."

© Kostas Maros

Das Projekt richtet sich an Lernende und Studierende mit kleinem Budget. Wie schafft man es, unter diesen Voraussetzungen qualitätsvolle Räume zu gestalten?

"Hier ist sicherlich die Bauherrschaft der wichtigste Faktor. Ein Re-Use Projekt mit dieser Nutzung zu realisieren heisst, auf eine marktübliche Rendite zu verzichten."

© Kostas Maros

Wie stark hat euch die Wohnform – vier Einzelzimmer mit Gemeinschaftsbereich – architektonisch gelenkt?

"Das Leben einer WG spielt sich nicht in den Einzelzimmern ab, sondern in der Küche. Hier treffen sich alle, hier wird gemeinsam gegessen, gefeiert und geredet. Aus diesem Grund haben wir den Raum der Küche mit dem Wohnzimmer so offen und grosszügig als möglich gestaltet und durch den erweiterten Balkon auch im Aussenraum erweitert. Dieser offene Raum bildet das Herzstück der Wohnungen. Die vier Einzelzimmer sind einfach gehalten und sollen neben dem privaten Rückzugsort auch Raum zum Studium am eingebauten Arbeitstisch am Fenster bieten."

© Kostas Maros Zwingerstrasse 29 Basel, Umbau.

Die Leuchten aus Myzelium sind ein besonderes Detail. Warum war es dir wichtig, auch in der Gestaltung solche Zeichen zu setzen?

"Myzelium ist ein Projekt, das ich parallel zur Architektur gemeinsam mit Freunden unter dem Namen EMO Objects betreibe. Uns interessiert das Material, seine radikale Nachhaltigkeit und die gestalterischen Möglichkeiten, die sich eröffnen. In Bezug auf WG29 war es mir ein Anliegen, die Wohnungen, die möbliert vermietet werden, mit den wesentlichen Möbeln und Objekten auszustatten. Auf diese Weise werden die Lernenden und Studierenden davon entlasten, die Möbel selber kaufen zu müssen. Darüber hinaus war es mich wichtig, mit den Einbaumöbeln aus Gerüstdielen oder den Leuchten aus Myzelium gestalterisch klare Akzente zu setzen, die den Wohnungen einen spezifischen Charakter verleihen. Der klassische Wohnungsmarkt ist geprägt von einer weitestgehenden Nüchternheit und Reduktion, die nicht zuletzt in einer Optimierung der Baukosten begründet liegt. Hier möchten wir dagegenhalten. Robuste Einbaumöbel haben eine grosse Qualität. Sie optimieren den nutzbaren Wohnraum, sind nachhaltig durch ihre lange Nutzungszeit und prägen die architektonische Atmosphäre eines Raumes."

© Kostas Maros Zwingerstrasse 29 Basel, Umbau.

Zum Schluss: Was nimmst du aus der "WG29" mit für kommende Projekte? Wo liegt für dich das grösste Potenzial von Re-Use im Architekturschaffen heute?

"Um Re-Use Projekte umsetzen zu können, muss man zum einen als Architektin über praktische Bauerfahrung verfügen, um in diesem dynamischen Prozess richtig planen und entscheiden zu können. Zum anderen ist man auf Handwerker angewiesen, die bereit sind, den damit verbundenen Prozess mitzugehen. Das grösste Potenzial von Re-Use im Architekturschaffen sehe ich neben der Ressourcenthematik darin, dass es dich als Gestalterin auf unerwartet neue Lösungen bringt und dich zwingt, früh im Planungsprozess konkret an den Materialien und Bauteilen zu entwerfen."

Herzlichen Dank Fabienne für das spannende Gespräch. Interview: Laurence Ziegler / Architektur Basel