Projekte
02.05.23
Die Südfassade © Kathrin Schulthess für TEC21
Die Umnutzung des Felix Platter-Spitals
Die aufmerksamen Stadtbewohner*innen mögen zum Ende der dunklen Jahreszeit bemerkt haben, dass im ehemaligen Felix Platter-Spital wieder Licht brennt. Denn die Wohnungen, die im Zuge der Umnutzung entstanden sind, konnten Anfang des Jahres bezogen werden. Folgend möchten wir das Projekt vorstellen, über das sich sowohl die Bekämpfer*innen des sich verschärfenden Problems der Wohnungsknappheit, als auch die Klimaaktivist*innen, die sich für eine klimaneutrale Baubranche einsetzen, freuen dürften - nicht zuletzt natürlich die neuen Bewohner*innen selbst.
Auch wenn wir bereits mehrmals über den Kontext der Umnutzung berichtet haben, möchten wir der Vollständigkeit halber mit der Fertigstellung des, von Fritz Rickenbacher und Walter Baumann geplanten, Spitalneubaus im Jahre 1967 beginnen. Entstanden war ein hoher Riegelbau, umgeben von flächigen Erdgeschossbauten. Die Patientenzimmer waren gen Süden ausgerichtet und durch einen langen Korridor zwischen den Raumschichten erschlossen. Wer das Spital nicht als Patient*in, Besucher*in oder Mitarbeiter*in von innen gesehen hat, kennt zumindest die einprägsamen Fassaden. Seinerzeit galt das Felix Platter-Spital als modernstes der Schweiz, gehört mit seinen städtebaulichen, typologischen und gestalterischen Qualitäten zu den besten Bauten der Nachkriegsmoderne und war im Inventar schützenswerter Bauten eingetragen.
Das Felix Platter-Spital nach Fertigstellung im Jahr 1967
Nicht einmal 50 Jahre später, entsprach es trotz Sanierungsmassnahmen nicht mehr den baulichen und betrieblichen Anforderungen eines zeitgemässen Spitalbaus und die Kosten für eine Totalsanierung standen für die Leitung des Spitals in keinem Verhältnis zu den Investitions- und Betriebskosten eines Neubaus. Das Felix Platter-Spital hatte ausgedient und im Norden des Areals entstand der Neubau. Der Regierungsrat sprach sich 2015 gegen den Erhalt des Gebäudes aus und es wurde aus dem Inventar schützenswerter Bauten entlassen.
Mit seiner signifikanten Gestalt und robusten Erscheinung artikulierte das Gebäude jedoch förmlich nicht weichen zu wollen. Dem Westfeld stiftet es Identität und Charakter, stellt einen wichtigen Orientierungspunkt für das umliegende Quartier dar und ist im öffentlichen Bewusstsein verankert. Deshalb setzten sich unter anderen der Bund Schweizer Architekten, der Basler Heimatschutz und die Freiwillige Basler Denkmalpflege für den Erhalt ein. Nach diversen Untersuchungen und Studien, und mit Vorlage eines Umnutzungskonzeptes, gelang es der Baugenossenschaft wohnen&mehr schliesslich, den Abriss zu verhindern.
Grundriss Abbruch 5. Obergeschoss © ARGE Müller Sigrist, Rapp Architekten
Die 2015 gegründete Baugenossenschaft wohnen&mehr erhielt das gesamte Gelände des Westfelds, inklusive dem Felix Platter-Spital, und lancierte 2017 einen Studienauftrag. Sechs Teams wurden ausgewählt und Fachpersonen aus den Bereichen Architektur, Baumanagement, Bauingenieurwesen und Nachhaltigkeit erarbeiteten Entwürfe zur Umnutzung. Auf das Konzept zu Tragwerk und Erdbebenertüchtigung, sowie eine innovative Idee für die horizontale und vertikale Erschliessung des Gebäudes, legte die Wettbewerbsjury besonderen Wert und befand den der ARGE Müller Sigrist / Rapp Architekten als besten Entwurf. Die Tragwerksplanung entwickelte die ARGE mit Dr. Lüchinger+Meyer Bauingenieure und beantwortete Nachhaltigkeits- und Energiefragen zusammen mit Durable Planung und Beratung.
Perspektivschnitt © ARGE Müller Sigrist, Rapp Architekten
„Entstehen sollte ein genossenschaftliches ,Miteinanderhaus’ - ein ,vertical village’.“
Der Umbau des Felix Platter-Spitals war in Basel einer der grössten Umbauten der letzten Jahre. Mit diesem konnten die äusseren Qualitäten des Spitalbaus gewahrt und im Inneren Wohnraum mit neuen spezifischen Qualitäten geschaffen werden. Allem voran konnten mit dem Umbau Ressourcen geschont werden! Der architektonische Rundgang durch den Umbau beginnt in der Eingangshalle: Da hier ein zweigeschossiges Entrée geschaffen werden sollte, das die Hegenheimerstrasse im Süden mit dem Quartierplatz im Norden verbindet, wurde hier mit am stärksten in die Bausubstanz eingegriffen. Hier gelangt man auf die Rue Intérieure, die die Erdgeschossnutzungen, wie Kinderbetreuungsangebote, Quartierläden und Bistro, erschliesst. Ausserdem nimmt hier die Kaskadentreppe ihren Anfang, die sich von der Eingangshalle, über alle neun Geschosse, bis nach oben auf das Dach entwickelt. Als innere Erschliessung bildet sie das Zentrum des Gebäudes und verbindet die langen Korridore zu den Wohnungen, und so das ganze Haus und die Bewohner*innen, miteinander.
Die Kaskadentreppe © Ariel Huber Photography
Wie bereits formuliert, sollte die besondere Gestalt des Gebäudes gewahrt bleiben, weshalb bei der Sanierung der differenzierten Fassaden je spezifisch vorgegangen wurde. Die charakteristische Betonfertigteilfassade auf der Nordseite wurde gereinigt, wo nötig instand gesetzt, und die Holzrahmenfenster aus energetischen Gründen ersetzt. Zwar ist die Rahmenfläche verhältnismässig gross, scheint aufgrund der weissen Farbe aber hell und rahmt die Aussicht auf die Stadt und die trinationale Umgebung auf ganz besondere Art und Weise. Eine energetische Sanierung der Südfassade wäre durch einen Ersatz möglich gewesen, die finanzielle Leistung für eine Genossenschaft jedoch unmöglich. Deshalb wurde eine zweite Schicht eingezogen, wodurch die denkmalgeschützte Fassade maximal erhalten werden konnte. Durch die gegenläufige Faltung der inneren Fassade entstehen individuell geformte Zwischenräume, die als Klimazonen und Loggien, auch Jahreszeitenzimmer genannt, dienen. Leider kommen nur die Bewohner*innen der durchgesteckten Wohnungen in den Genuss beider Fassadensituationen.
Die Südfassade © Kathrin Schulthess für TEC21
Die Nordfassade © Kathrin Schulthess für TEC21
Da erhebliche Aufwendungen zur Erdbebenertüchtigung vorgenommen werden mussten, beschränkt sich der Eingriff in die bestehende Substanz nicht auf die Verdopplung der Geschossigkeit der Eingangshalle. Um die Erdbebenlasten effizient abzutragen, wurden zwei neue Treppenhäuser eingebaut, die zugleich die Anforderungen an die Fluchtwege erfüllen. Zur Aussteifung des Gebäudes wurde in der Mittelachse eine neue Betonwand eingezogen, die gleichzeitig als Wohnungstrennwand fungiert.
Für die Aussteifung des Gebäudes wurden zwei neue Treppenhäuser eingefügt, die die Erdbebenlasten effizient abtragen © Müller Sigrist Architekten AG
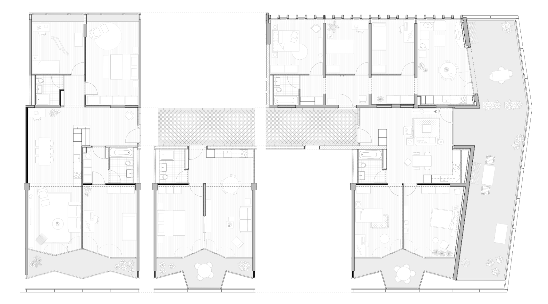
Mit der Umnutzung sind 130 neue Wohnungen entstanden. Die Variabilität der Wohnungstypen ist gross: Von Ein-Zimmer-Budgetwohnungen, über Maisonette-Wohnungen, bis hin zu 12-Zimmer-Cluster-Wohnungen. Je weiter oben die Wohnung, desto schöner die Aussicht - das versteht sich von selbst. Weiter oben bedeutet jedoch zudem, umso teurer. Denn der Mietpreis für die Wohnungen in den oberen Geschossen wird künstlich verteuert, um Wohnungen in den unteren Geschossen günstiger anbieten zu können. Durch die ,Quersubventionierung’ findet eine soziale Durchmischung der Bewohnenden statt und die Chance steigt, dass sich die Hoffnung auf Synergien in eine Tatsache umwandelt.
Die Grundrisse der Wohnungen © ARGE Müller Sigrist, Rapp Architekten
Und die Chancen stehen tatsächlich gut, denn eine grosse Vielfalt an Bewohnenden war bereits kurz nach Bezug erkennbar. Jüngere und ältere Alleinstehende, Familien mit wenigen und vielen Kindern und pensionierte Alleinstehende oder Paare - aus allen Gesellschaftsschichten. Neben den vielfältigen Mieter*innen hat sich auch das Bürgerspital Basel für gemeinschaftliches Wohnen im Alter eingemietet, wie auch der Verein Wohnen+ Basel, der aus älteren Expats besteht, die im Ruhestand in Basel bleiben möchten.
Die Wohnungen erfüllen die Grundbedürfnisse, zusätzliche Ausstattung wird gemeinschaftlich genutzt. So beispielsweise die Jokerzimmer, die von allen Bewohner*innen als Gästezimmer temporär gemietet werden können. Auch der Gemeinschaftsraum mit Dachterrasse steht allen Genossenschafter*innen zur Verfügung. Das Quartierzentrum Iselin bespielt den kleinen und grossen Saal im Erdgeschoss, die ebenfalls für Anlässe aller Art gemietet werden können.
Was die Organisation und Kommunikation betrifft, ist die Genossenschaft längst in diesem Jahrhundert angekommen. Kommuniziert wird über eine App, über die News verbreitet, Fragen in die Runde gestellt und Veloanhänger ausgeliehen werden.
Der Kleine Saal © Armin Schärer : Architektur Basel
Die Dachterrasse © Ariel Huber Photography
Die Umnutzung des Felix Platter-Spitals
Aus Nachhaltigkeitsgründen ist der Ausbaustandard hochwertig. Auch wären die Wohnungen wohl kleiner und weniger hoch, hätte man statt der Umnutzung einen Neubau errichtet. Doch all diese Thesen sind schnell aufgestellt, weniger schnell begründet. Deshalb wollten wir wissen, wie es sich nun im ehemaligen Felix Platter-Spital lebt. Wie - das erfahren wir im zweiten Artikel zur Umnutzung des Felix Platter-Spitals, der am kommenden Dienstag erscheint.
Text: Johanna Bindas / Architektur Basel
Quellen: - Gespräch mit Andreas Courvoisier (Co-Initiant von wohnen&mehr) und Führung mit Andrea Machura (Projektleiterin Nutzung & Kommunikation wohnen&mehr) - www.wohnen-mehr.ch - www.muellersigrist.ch - TEC 21 - Schweizerische Bauzeitung, Publikation 26/2022: Wohnmaschine Spital, espazium - Der Verlag für Baukultur, Zürich - www.bsb.ch - www.wohnenplusbasel.ch
Wessen Neugier jetzt geweckt ist, der darf sich auf kommendes Wochenende freuen. Denn dann kann das , Schiff’, wie das umgenutzte Felix Platter-Spital jetzt genannt wird, im Rahmen der Veranstaltung Open House Basel besucht werden.
Quellen: - Gespräch mit Andreas Courvoisier (Co-Initiant von wohnen&mehr) und Führung mit Andrea Machura (Projektleiterin Nutzung & Kommunikation wohnen&mehr) - www.wohnen-mehr.ch - www.muellersigrist.ch - TEC 21 - Schweizerische Bauzeitung, Publikation 26/2022: Wohnmaschine Spital, espazium - Der Verlag für Baukultur, Zürich - www.bsb.ch - www.wohnenplusbasel.ch