Interviews 30.09.20

Wettbewerb Hochbergerstrasse 158: Siegeprojekt „Promenadendeck“ © Kooperative E45

Kooperative E45: "Geschichte und Gegenwart werden überlagert"

Sie haben für die Wettbewerbsüberraschung des Jahres gesorgt. Die Rede ist vom jungen Basler Architekturbüro der Kooperative E45. Mit dem Gewinn des offenen Wettbewerbs für die Transformation des Amts für Umwelt und Energie an der Hochbergerstrasse haben sie ein Ausrufezeichen gesetzt. Sie haben sich dabei gegen 120 Konkurrenten, darunter etablierte Namen wie Harry Gugger, Salathé Architekten, Karamuk Kuo oder Aita Flury. Man wird sich ihren Namen merken müssen. Wir haben dem Trio zu ihrem siegreichen Projekt „Promenadendeck“ ein paar Fragen gestellt. 

Wettbewerb Hochbergerstrasse 158: Siegeprojekt „Promenadendeck“ © Kooperative E45, Bettina Satzl

Lukas Gruntz (Architektur Basel): Der Wettbewerb setzte auf die Transformation eines bestehenden, unspektakulären Bürogebäudes. Welche Qualitäten habt ihr in der vorgefundenen Struktur entdeckt?
Kooperative E45: "Besonders interessant ist für uns der Standort des Gebäudes und sein Kontext. Das Strassenleben entlang der Hochbergerstraße und der Wiese im Süden bildet einen harten Kontrast zu der Hafenindustrie auf der anderen Seite des Gebäudes. Es war eine spannende Herausforderung, die verschiedenen Identitäten der Umgebung in einem Gebäude zu verbinden, und daraus eine eigenständige Qualität für das Gebäude zu entwickeln. Darüber hinaus war die regelmäßige Struktur des Bürotypus hilfreich, um ein modulares Layout für kompakte Wohnungen zu realisieren. Auch die Proportionen der bestehenden Struktur erlaubten eine interessante Neuinterpretation der Fassade."

"Uns war es wichtig, den Vorschlag zu machen, auch das Trottoir vor dem Haus zu verbreitern, um die Beziehung des Hauses zur Stadt zu stärken, obwohl es nicht Bestandteil der eigentlichen Aufgabe war."

Wettbewerb Hochbergerstrasse 158: Siegeprojekt „Promenadendeck“ © Kooperative E45

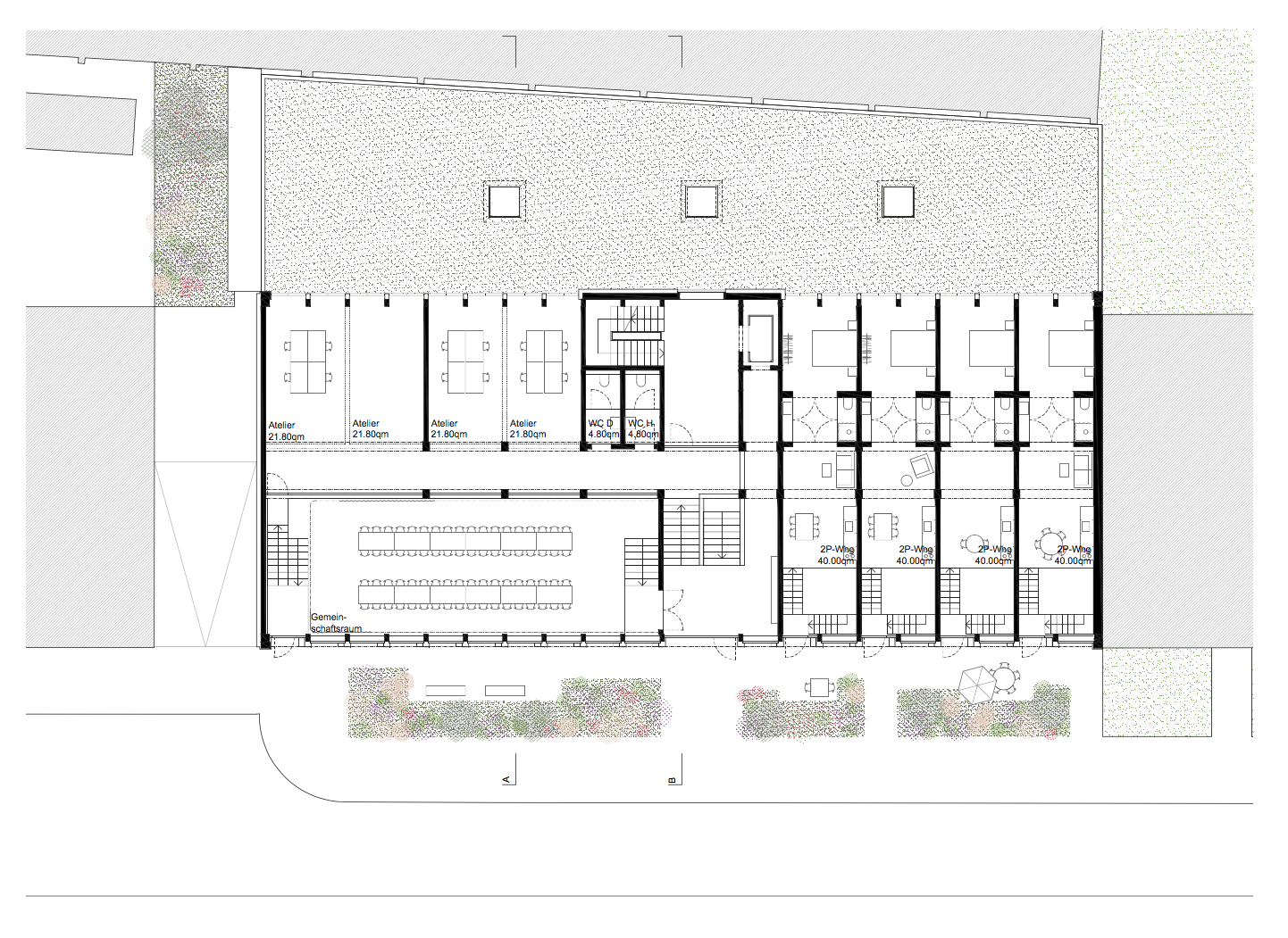
Eine entscheidende Frage betraf die Zugänglichkeit des Erdgeschosses, welches im Bestand als Hochparterre funktioniert. Bei eurem Projekt wird das Sockelgeschoss leicht abgesenkt und gewinnt dadurch die zweigeschossige Raumhöhe. Welche Form der Öffentlichkeit soll im Erdgeschoss stattfinden und wie verknüpft sich diese mit dem Quartier?
"Es war für uns ein wesentlicher Schritt, das Erdgeschoss zur Strasse hin zu aktivieren, um einerseits dem neuen Programm des Hauses gerecht zu werden, aber auch um auf die längerfristige Entwicklung des Hafenareals zu reagieren, bei der die Hochbergerstrasse durch die geplante neue Brücke zu einem lebendigen Ort und einer wichtigen Verbindung zwischen Basel und St. Louis wird. Die wenigen Einschnitte in die bestehende Struktur wurden deshalb darauf konzentriert, diese Beziehung zu realisieren und sowohl den Wohnateliers als auch dem Gemeinschaftsraum einen Bezug über das Gebäude hinaus, zur Stadt, zu geben. Der Gemeinschaftsraum im Erdgeschoss kann ein Ort sein, an dem die Bewohner des Hauses und des Quartiers durch öffentliche Vorträge, Veranstaltungen, Filmvorführungen oder z. B. Kursangebote jeglicher Art zusammenkommen. Zudem war es uns wichtig, den Vorschlag zu machen, auch das Trottoir vor dem Haus zu verbreitern, um die Beziehung des Hauses zur Stadt zu stärken, obwohl es nicht Bestandteil der eigentlichen Aufgabe war."

Wettbewerb Hochbergerstrasse 158: Siegeprojekt „Promenadendeck“ © Kooperative E45

Ein wichtiges typologisches Element eures Entwurfs ist die grosszügige Südlaube, das "Promenadendeck". Welche Bedeutung kommt ihm zu?
"Die Qualitäten der Südseite waren außergewöhnlich hoch, vielseitig und erschienen auf den ersten Blick vielleicht sogar konträr. Zum einen bieten die Ausrichtung nach Süden und der Naturraum der Wiese ideale Voraussetzungen für attraktive private Außenräume. Darüber hinaus bergen aber die Ausrichtung zur Stadt und zur Hochbergerstrasse als urbane Verbindungsachse das Potenzial, Bewohner und Stadt in einen engen Dialog zu bringen. An diesem Ort erschien uns daher die Vorstellung eines Laubengangs, der zeitgleich auch privater Außenraum ist, sehr bereichernd. Das daraus entwickelte „Promenadendeck" kombiniert die interne Erschliessung mit attraktiven Freiräumen, die zum Aufenthalt und Austausch unter den Bewohnern einladen. Gleichzeitig kann der Innenhof mit den nach Norden ausgerichteten Schlafräumen als Zone höchster Privatheit erhalten werden."

Wettbewerb Hochbergerstrasse 158: Siegeprojekt „Promenadendeck“ © Kooperative E45

Die vorgeschlagenen Kleinwohnungen sind äusserst effizient. Für zwei Personen genügen 42 Quadratmeter. Das bedingt eine gewisse Reduktion aufs Wesentliche. Welche Wohnqualitäten sind für euch dabei entscheidend?
"Durch eine Minimierung der Verkehrsfläche und einem leichten Versatz der Wohnungstrennwände zum bestehenden Stützenraster, entsteht eine räumliche Vielfalt, die es ermöglicht, die Wohnung je nach persönlicher Lebenssituation flexibel zu nutzen. Sehr wichtig war uns, dass die Bewohner den Übergang von öffentlich zu privat bewusst und graduell nach ihren Bedürfnissen steuern können. So kann der Laubengang durch großzügig offenbare Elemente als zuschaltbarer Raum für die Wohnung genutzt werden. Die kleineren privaten Wohnflächen werden durch ein Angebot an vielen, verschieden nutzbaren Gemeinschaftsflächen im Haus kompensiert."

"Für uns ist es eine spannende Aufgabe, die räumlichen und materiellen Qualitäten eines alten Gebäudes aufzuspüren, sie zu nutzen oder in einen neuen Kontext zu setzen und dem Gebäude dadurch ein neues Leben zu geben."

Zum Schluss eine allgemeine Frage: Welche Strategien beim Bauen im Bestand, im Umgang mit bestehender Bausubstanz interessieren euch?
"Neue Vorschläge zum Bauen im Bestand haben in der heutigen Zeit eine hohe Relevanz, insbesondere für Gebäude aus den 60er- und 70er-Jahren, die sonst häufig in der Schweiz rückgebaut und durch Neubauten ersetzt werden. Für uns ist es eine spannende Aufgabe, die räumlichen und materiellen Qualitäten eines alten Gebäudes aufzuspüren, sie zu nutzen oder in einen neuen Kontext zu setzen und dem Gebäude dadurch ein neues Leben zu geben, indem Geschichte und Gegenwart überlagert werden. Dabei ist es auf der einen Seite unser Ziel, möglichst viel Bausubstanz zu erhalten und andererseits durch einen gezielten grundlegenden Eingriff dem Gebäude zu einem neuen Mehrwert zu verhelfen. Wir freuen uns, die Gelegenheit zu haben, im Sinne der Nachhaltigkeit auf eine bewusstere Nutzung von Boden und Ressourcen hinzuarbeiten."

Interview: Lukas Gruntz / Architektur Basel


Wettbewerb Hochbergerstrasse 158: Siegerprojekt „Promenadendeck“ © Kooperative E45

Kooperative E45 ist ein Architekturbüro in Basel, das von Bettina Satzl, Daniele Sciarretta und Mikael Stenström im Jahr 2020 gegründet wurde.

Bettina Satzl studierte Architektur an der TU München und schloss 2009 ihr Studium ab. Bis 2012 war sie freischaffend in München tätig und unterrichtete von 2010 bis 2012 als Korrekturassistentin am Lehrstuhl für Entwerfen und Konstruieren an der TU München. Von 2012 bis 2017 arbeitete sie bei Diener & Diener Architekten in Basel. Seit 2017 ist sie als selbstständige Architektin und als wissenschaftliche Assistentin für Architektur an der Fachhochschule Nordwestschweiz tätig.

Daniele Sciarretta studierte Literatur und später Architektur an der Universität Roma Tre, wo er 2018 seinen Abschluss machte. Er arbeitete für eine Reihe von Büros in Italien, bevor er die Gelegenheit hatte, bei Diener & Diener Architekten in Basel zu arbeiten, wo er von 2018 bis 2020 als Architekt tätig war.

Mikael Stenström studierte Architektur an der Technische Hochschule in Lund, Schweden und an der Royal Academy of Fine Arts in Kopenhagen, Dänemark und schloss 2014 sein Studium ab. Er sammelte Berufserfahrung in Dänemark und Schweden bevor er in die Schweiz kam, wo er von 2015 bis 2020 bei Diener & Diener Architekten in Basel als Architekt tätig war.

www.k-e45.com