Projekte
09.10.17
Diener & Diener: Maison Davidoff in Basel
Architektur Basel konnte einen ersten Blick in das neue Davidoff Gebäude an der Nauenstrasse werfen. Noch sind nicht alle Bauarbeiten abgeschlossen, aber im Gebäude wurde der Bürobetrieb bereits vor 3 Wochen aufgenommen.
Das Maison Davidoff von Diener & Diener verbindet traditionelle und formale Elemente miteinander. Die Anspielung der Stützen an eine Zigarre lässt sie etwas zu formal und vielleicht auch unproportioniert wirken. Zyniker erkennen hier beinahe einen Marketinggag von der Oetlinger Davidoff Group. Der braun lasierte Beton wirkt sehr elegant und edel. Auf die klassische Ausbildung eines Sockelgeschosses gegen die Strasse hin wurde verzichtet.
Schade ist das Weglassen einer grosszügigeren Eingangssituation. Die viel befahrene Strasse wirkt hier erdrückend. Der hohe Glasanteil der Fassade wird durch die Bänder und die Stützenreihe auf eine elegante Weise gefiltert. Die Farbe der Stützen setzt sich in den Innenräumen nahtlos fort. So sind auch das Treppenhaus in Beton, die Möblierung, die Abhangdecken oder auch die hölzernen Türen in einem braunen Farbton gehalten. Hier stellt sich natürlich die Frage nach der Zeitlosigkeit der Farbkonzeptes: Ist das Gebäude nicht gar viel dem Farbton des eigenen Produkts der Zigarre angepasst?
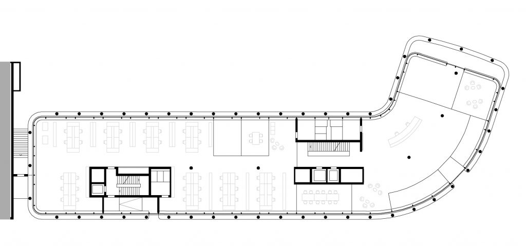
Typologisch ist das Gebäude keine Revolution: Es wird durch ein Haupt- und ein Nebentreppenhaus erschlossen. Grosse Brandschutztüren aus Holz erlauben den visuellen Sichtkontakt durch das Treppenhaus. Im Innern wechseln sich Grossraumbüros mit geschlossenen Besprechungsräumen ab. Die Räume wirken äusserst grosszügig und die Einbauten fügen sich auch grundrisstechnisch gut ein.
Das neue Maison Davidoff ist ein solider Bau: Ein Beitrag für das sich wandelnde Gebiet rund um den Bahnhof SBB.