Wettbewerbe 17.08.20

Wettbewerb Hochbergerstrasse 158: Siegeprojekt „Promenadendeck“ © Kooperative E45

Spiel mir das Lied von der Ausnahme und Regel

Eigentlich ist es ein gänzlich unspektakuläres Gebäude, das an der Hochbergerstrasse 158 im Jahre 1965 für die Verwaltung der Schweizerischen Rheinhäfen gebaut wurde. Wer hätte damals ahnen können, dass sich 55 Jahre später 121 ArchitektInnen an diesem Zweckbau den Kopf zerbrechen würden. Wohl niemand. Noch vor Kurzem wäre ein solches Gebäude sang- und klanglos einem Ersatzneubau gewichen. Doch der Wettbewerb zur Umnutzung zu “Wohnen und Arbeiten” beweist, dass sich die Zeiten ändern.

Amt für Umwelt und Energie, Hochbergerstrasse 158 im September 2019

Heute stehen vor dem Hintergrund der drohenden Klimakrise ökologische Fragen, insbesondere bezüglich dem Lebenszyklus von Bauteilen und grauer Energie, stärker im Fokus. Es ist dem Hochbauamt und Immobilien Basel-Stadt hoch anzurechnen, dass sie sich die Mühe gemacht haben, in der bestehenden Struktur Qualitäten zu suchen. Im Rahmen einer Machbarkeitsstudie von Buchner Bründler Architekten wurden diese auch tatsächlich gefunden. Dass auf dieser Basis ein offener Wettbewerb ausgelobt wurde, kann mit Blick auf die Wettbewerbskultur in Basel als mutigen, aber klugen Schritt bezeichnet werden. ArchitektInnen laufen oftmals unter erschwerten Bedingungen und vielen normativen Vorgaben zu Hochform auf. So geschah es auch an der Hochbergerstrasse. Dass dabei ein junges, unbekanntes Basler Architekturbüro den Sieg erringen konnte, ist umso erfreulicher. Am Rheinknie muss man sich offensichtlich keine Nachwuchssorgen machen.

Ausstellung Projektwettbewerb Umbau Hochbergerstrasse 158 © Architektur Basel

Wir wollen ein Schlaglicht auf die sechs rangierten Projekte werfen. Wer sich die volle Dosis Architektur geben möchte, dem sei der Gang in die Ausstellung mis sämtlichen Wettbewerbseingaben (noch bis am 21. August 2020 jeweils 17 bis 20 h) an der Uferstrasse 90 wärmstens ans Herz gelegt. Dank der grossen Varianz der gewählten Ansätze kommen vielfältige unterschiedliche Qualitäten zum Vorschein. Die bestehende Struktur setzt dabei den verbindlichen Rahmen. Ansonsten heisst es: Spiel mir das Lied von der Ausnahme und Regel!

Ausstellung Projektwettbewerb Umbau Hochbergerstrasse 158 © Architektur Basel

Zugang und Erdgeschoss
Der Bestand wartet mit einem Hochparterre auf, das der Öffentlichkeit des Strassenraums eher zurückhaltend begegnet. Eine grosse Frage des Wettbewerbs bestand darin, den gemeinschaftlichen Nutzungen im Sockelgeschoss einen angemessenen Bezug zum öffentlichen Raum zu verschaffen. Den konsequentesten Ansatz verfolgen dabei die fünftplatzierten ARGE Lemmen Mazzei Architekten + BRH Architekten mit einer strassenseitig konsequent auf Strassenniveau abgesenkten Mehrzweckhalle. Die Zugänge zu den Wohnungen wurden an die Stirnseiten verlegt.

Projektwettbewerb Umbau Hochbergerstrasse 158 © ARGE Lemmen Mazzei Architekten + BRH Architekten

Projektwettbewerb Umbau Hochbergerstrasse 158 © Salathé Architekten Basel

Eine Zwischenlösung schlagen die drittplatzierten Salathé Architekten vor: Rechts vom bestehenden zentralen Eingang wird das Erdgeschoss auf Strassenniveau abgesenkt. Es entsteht ein vielfältig nutzbarer öffentlicher Raum mit rückseitiger Tribüne. „Durch diese auch gegen aussen ablesbare Öffnung erhält das Gebäude auch eine gut erkennbare Adressierung“, lobt die Jury die gewählten Lösung. Das Siegerprojekt der Kooperative E45 sucht eine anderen Ansatz: Der überhohe Gemeinschaftsraum wird um ein halbes Geschoss gegenüber dem Strassenniveau abgesenkt und über zwei Zugänge von der Strasse her erschlossen. Dazu gesellen sich vier Atelier-Maisonettewohnungen mit direktem Eingang vom Trottoir her. Ausserdem wird die Vergrösserung des Trottoirs und bepflanzte Rabatten vorgeschlagen. Das war im Wettbewerbsprogramm so nicht vorgesehen: „Die Jury nimmt die Anregung einer Umgestaltung der Allmendflächen auf, weist aber darauf hin, dass diese nicht Teil der Wettbewerbsaufgabe war.“ Man darf auf eine Umsetzung der Anregung hoffen.

Projektwettbewerb Umbau Hochbergerstrasse 158 © ARGE Atelier Aggeler GmbH mit Julian Fischer Architekten

Umgang mit der Struktur im Regelgeschoss
Das bestehende Tragwerk der Obergeschosse besteht aus Stützen im Bereich der Längsfassaden, sowie zwei mittigen Stützenreihen. Das zweitplatzierte Projekt der ARGE Atelier Aggeler GmbH mit Julian Fischer Architekten schreibt die Kleinwohnungen besonders gekonnt in die bestehende Struktur ein. Ein nördlicher Laubengang erschliesst die bis auf den Quadratzentimeter optimierten sieben Wohnungen pro Geschoss. Die Jury zeigt sich – zu Recht – begeistert: „Es gelingt den Projektverfassenden bravourös, bei eingeschränkten Ressourcen den knappen Raum möglichst gross wirken zu lassen – die Kiste also doch «etwas grösser» zu machen.“

Projektwettbewerb Umbau Hochbergerstrasse 158 © ARGE e.GO

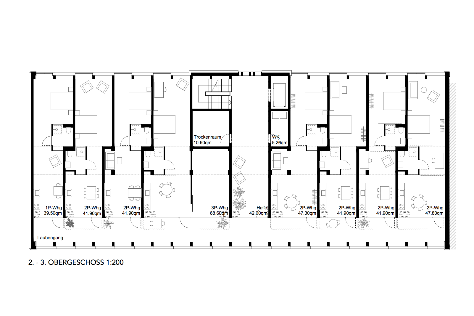
Das viertplatzierte Projekt „Kamila“ der ARGE e.GO interpretiert die Struktur eher im corbusianischen Sinne eines „plan libre“. Stützen werden freigestellt, kreisrunde Essbereiche eingeführt. Dies wirkt in Anbetracht des Programms mit kleinteiligen Wohnungen etwas angestrengt formal. Von der Jury wird bemängelt, „dass die Variabilität im Vergleich eher eingeschränkt“ sei. Das Siegerprojekt schafft als horizontale Erschliessung einen Laubengang auf der Südseite, das „Promenadendeck“. Fraglich bleibt dabei einzig die tatsächliche Nutz- und Möblierbarkeit aufgrund der Brandschutzanforderungen an den Fluchtweg. Die Wohnungen selbst bestehen aus zwei Raumzonen: Dem Wohn- und Essraum zur Laube hin, sowie dem Schlafbereich auf der Nordseite. „Die Aufteilung der Wohnungen nimmt präzise Bezug auf die vorhandene Tragstruktur. Durch Verschiebungen der Wohnungstrennwände zu den Gebäudeachsen werden in den Wohnungen vorhandene Betonpfeiler und -unterzüge sichtbar. Sie zonieren auf natürliche Weise die Räume“, fasst die Jury die typologischen Qualitäten zusammen.

Wettbewerb Hochbergerstrasse 158: Siegeprojekt „Promenadendeck“ © Kooperative E45

Fassade als Filter
Ein wichtiger Teil der Fragestellung bestand in der Neuinterpretation der Fassade. Gefordert wurde eine „hervorragende Gestaltung“, die einen „Akzent im Kontext des sich wandelnden Quartiers“ zu setzen vermag.

Projektwettbewerb Umbau Hochbergerstrasse 158 © Härtel Lovis Steinbach Architekten SIA

Eher von industrieller Zurückhaltung als vom Drang, einen Akzent zu setzen, ist die Fassade des sechstplatzierten Projekts „Neonsonne“ von Härtel Lovis Steinbach Architekten geprägt. Wo die einen gähnen mögen, fand die Jury Gefallen an der „unaufgeregt soliden“ Fassade, „die einen ruhigen, angemessenen Ausdruck“ ausstrahle. Stehende französische Fenster mit Stoffmarkisen prägen den Ausdruck des Beitrags der ARGE Lemmen Mazzei Architekten + BRH Architekten. Die fein gegliederte Fassade aus rezyklierten Metallblechen wirkt elegant. Die Jury lobt die Analogie zur „Stimmung des benachbarten Hafenareals“.

Projektwettbewerb Umbau Hochbergerstrasse 158 © ARGE Lemmen Mazzei Architekten + BRH Architekten

 

Projektwettbewerb Umbau Hochbergerstrasse 158 © ARGE e.GO

Vorhänge prägen die Fassade des Beitrags „Kamila“. Ein feines Grid aus grünen Stahlprofilen steht im Kontrast zu den leichten, im Winde wehenden Textilflächen. Die Jury stand der vorgeschlagenen Fassade ambivalent gegenüber: Ihr gefalle "die evozierte Stimmung des leichten und lebendigen Gebäudeausdrucks, auch wenn etwa der Vorhang bezüglich Robustheit, Funktionalität und Brandschutz noch Fragen offen lässt. Kontrovers diskutiert wird der Umstand, ob das elegante Bild von Teilen der Öffentlichkeit nicht als Ausdruck einer forcierten Gentrifizierung missinterpretiert werden könnte.“ Die drittplatzierten Salathé Architekten setzten hingegen auf eine stromproduzierende Fassade mit Photovoltaikelementen als Brüstungsverkleidung. „Neue Holzfenster in Verbindung mit dem segelartigen Sonnenschutz sollen Bilder aus der im Hafengebiet typischen nautischen Welt evozieren“, schreibt die Jury. Beim Siegerprojekt ist das „Promenadendeck“ der Südlaube auch massgebend für die Gliederung der Fassad. „Entlang der Hochbergerstrasse bilden die freigelegten, abstrakt wirkenden Stützen und Platten eine als viergeschossige Arkade interpretierte Fassadenkonstruktion.“ Die Jury sieht jedoch noch Potential in der Frage der Materialisierung. Es solle eine „ausgeprägtere Direktheit und Sichtbarkeit der Konstruktion“ angestrebt werden.

Lang lebe der offene Wettbewerb! 
Das Resultat des Wettbewerbs zeigt exemplarisch, dass trotz enger Vorgaben und vieler Regeln eine unglaubliche Vielfalt an Lösungen möglich ist. Den Siegern der Kooperative E45 ist es gelungen, ein in sich stimmiges und kluges Projekt zu entwickeln. Es ist das intelligente Zusammenspiel verschiedener Lösungen, sei es punkto Typologie, Erschliessung, Nutzungsverteilung oder Fassadengestaltung, welches dabei besonders überzeugend ist. Das dabei lediglich vier A1-Plakate ausgereicht haben, um die Jury zu überzeugen – wo die meisten anderen Abgaben sechs benötigten – zeugt ebenfalls von der inhaltlichen Stringenz.

Ausstellung Projektwettbewerb Umbau Hochbergerstrasse 158 © Architektur Basel

 


«PROMENADENDECK»
1. Rang
Kooperative E45

Wettbewerb Hochbergerstrasse 158: Siegerprojekt „Promenadendeck“ © Kooperative E45

"Die Projektverfassenden beschreiben das städtebauliche Umfeld des heutigen Verwaltungsgebäudes als fragmentiertes, kontrastreiches urbanes Muster zwischen industrieller Hafenanlage und malerischem Dorfkern. Sie schlagen vor, das durch Bandfenster und Betonbrüstungen charakterisierte Gebäude in eine räumliche Struktur zu transformieren, welche die Kontraste des urbanen Umfeldes widerspiegelt und sich dem Quartier öffnet. Das Gebäude wird bis auf das Betonskelett zurückgebaut. Entlang der Hochbergerstrasse bilden die freigelegten, abstrakt wirkenden Stützen und Platten eine als viergeschossige Arkade interpretierte Fassadenkonstruktion. Die Verglasung des Erdgeschosses rückt bis an die Baulinie vor und signalisiert so die Öffentlichkeit der darin enthaltenen Nutzungen. In den oberen Geschossen öffnet sich die Fassade zu einer Raumschicht, metaphorisch als Promenadendeck beschrieben, die gleichzeitig als Laubengang zur Erschliessung der Wohnungen und als gemeinschaftlicher, südorientierter Aufenthaltsraum der Bewohnerinnen und Bewohner genutzt wird."

Wettbewerb Hochbergerstrasse 158: Siegeprojekt „Promenadendeck“ © Kooperative E45

"Durch den Erhalt des Treppenhauses weist der Entwurf eine moderate Eingriffstiefe auf. Die grössten Eingriffe in die Tragstruktur sind an der Südfassade und im Erdgeschoss zugunsten der Öffnung des Hauses zum Strassenraum und zur Installation einer attraktiven Gemeinschaftsnutzung statt. Die Nachhaltigkeit des Projektes wurde als genügend bewertet. Der vorgelagerte Laubengang schützt die Wohnungen vor übermässigen Schallimmissionen von der Strasse und im Sommer vor Überhitzung. Die Schlafzimmer liegen am ruhigeren und kühleren Innenhof. Eine Querlüftung ist möglich. Die Konstruktionsaufbauten, wie zum Beispiel die Geschossdecken oder die Fassadenbekleidung, weisen ausreichend Potenzial zur Suffzienz und Ressourcenschonung auf." 

Wettbewerb Hochbergerstrasse 158: Siegeprojekt „Promenadendeck“ © Kooperative E45

"Die herausragende Leistung des Entwurfes ist die Schaffung räumlicher Schichten mit unterschiedlichen Atmosphären: Im Erdgeschoss der Bezug zum Strassenraum, das Promenadendeck mit Blick auf den Fluss, die am schattigen, ruhigen Innenhof gelegenen Wohnräume und der Gemeinschaftsraum mit Fernblick auf dem Dach. Der Entwurf verbindet die Abfolge räumlicher Sequenzen vom öffentlichen Erdgeschoss über gemeinschaftliche Flächen bis in die privaten Bereiche der Wohnungen. Dabei zeigt er eine hohe Sensibilität für Schwellen und Übergänge und schafft damit bewusst die Voraussetzungen für soziale Kommunikation und Interaktion. Den Bewohnerinnen und Bewohnern ermöglicht er somit den Rückzug ins Private, fördert die Kommunikation unter Nachbarn, macht Angebote für die Entstehung einer Hausgemeinschaft und schafft die Voraussetzungen durch das Teilhaben am öffentlichen Leben im Quartier."

«ACH HUGO, MACH DIE KISTE DOCH EINFACH EIN BISSCHEN GRÖSSER!»
2. Rang
ARGE Atelier Aggeler GmbH mit Julian C. Fischer Architekt, Zürich

Projektwettbewerb Umbau Hochbergerstrasse 158 © ARGE Atelier Aggeler GmbH mit Julian Fischer Architekten

"Die Projektverfassenden entwickeln ihren Entwurf stark aus der inneren Organisation heraus. Die Strassenfassade präsentiert sich als Abbild der baulichen Struktur des Bestandes. Raumhohe, alufarbene Holzmetallfenster werden an die bestehenden Deckenstirnen angeschlagen. Die Storenkästen und -führungen, sowie die Brüstungsgitter sind feuerverzinkt ausgeführt und in pragmatischer Weise auf die Fassade appliziert. Dieser sehr gewerbliche Grundcharakter wird durch farbige Markisenstoffe relativiert, was die Verfasser als oszillierendes Gesamtbild bezeichnen. Auf der Nordseite wird die ehemalige Treppenhauswand abgebrochen und durch Brüstungen ersetzt, was aus architektonischer Sicht verständlich ist. Mit diesem Ausdruck entsteht der Eindruck, dass der Entwurf weniger eine kontextuelle Verflechtung mit der Umgebung sucht, sondern vielmehr eine gestalterische Unabhängigkeit verfolgt. Dieser Charakter von Härte und Rohheit wird kontrovers diskutiert und kann von der Jury nicht nachvollzogen werden. Der Eingriff bei der Treppenhauswand im Norden gefährdet baurechtlich den Bestandsschutz."

Projektwettbewerb Umbau Hochbergerstrasse 158 © ARGE Atelier Aggeler GmbH mit Julian Fischer Architekten

 

Projektwettbewerb Umbau Hochbergerstrasse 158 © ARGE Atelier Aggeler GmbH mit Julian Fischer Architekten

"Die hohe Eingriffstiefe in die bestehende Struktur lässt eher hohe Baukosten erwarten. Die Glasfassade wird als aufwendig beurteilt und ist im Kontext der geforderten Ressourcenschonung nicht optimal. Ebenso stösst die Materialität in verzinktem Stahlblech aus Nachhaltigkeitsüberlegungen auf Ablehnung. Bemängelt wird weiter, dass die Querlüftung der Wohnungen nur bei den Wohnungen am Ende des Laubenganges möglich ist. Das Schachtkonzept hingegen ist schlüssig und effizient. Das Projekt stellt insbesondere mit den sehr sorgfältig ausgearbeiteten Grundrissen einen wichtigen Beitrag zur gestellten Aufgabe dar und hat die Diskussionen in der Jury dahingehend bereichert. Fragen ergaben sich bezüglich der Robustheit der Eingriffe in den Wohnungen (übergrosse Türflügel) und der damit entstehenden Unterhaltsintensität. Das für dieses Quartier wichtige Gemeinschaftliche kommt bedauerlicherweise zu wenig zum Tragen. Die explizit inszenierte architektonische Autonomie des Entwurfes beurteilt die Jury für das Quartier als fraglich. Das konsequent durchgearbeitete Projekt vermag schlussendlich in seiner Gesamtheit nicht vollends zu überzeugen."

«LE VENT NOUS PORTERA»
3. Rang
Salathé Architekten, Basel

Projektwettbewerb Umbau Hochbergerstrasse 158 © Salathé Architekten Basel

"Die Projektverfassenden erläutern ihren Entwurfsansatz mit der Absicht, mit möglichst wenigen Eingriffen und aus der Logik des Bestandes das geforderte Raumprogramm zu entwickeln. Folgerichtig wird unter Verwendung der bestehenden Haupterschliessungsstruktur das Gebäude organisiert. Das Erdgeschoss, bzw. das Hochparterre, weist den geforderten Gemeinschaftsraum auf, der sich zur Südseite hin mit einer Treppenanlage, die auch als Zuschauertribüne dienen kann, geöffnet und damit räumlich gut proportioniert wird. Durch Absenken der Bodenplatte in diesem Bereich wird der Gemeinschaftsraum direkt von der Hochbergerstrasse her zugänglich. Durch diese auch gegen aussen ablesbare Öffnung erhält das Gebäude auch eine gut erkennbare Adressierung. Bereits im Erdgeschoss sind auch Wohnungen eingeführt. Wie auch in den Regelgeschossen sind diese einseitig nach Süden orientiert und über einen, von der Westseite aus belichteten, Gang erschlossen. Zur Nordseite wird eine Raumschicht eingeführt, in welcher flexibel teilbare und zumietbare Räume angeordnet sind. Die Wohnungen im Dachgeschoss sind über einen offenen Laubengang erschlossen. Auf dem obersten Dachgeschoss wird ein gemeinschaftlicher Aussenbereich für die Bewohnerinnen und Bewohner angeboten. Ebenso wird im Hof die Decke über der Einstellhalle zur Nutzung mit einem gemeinschaftlichen Aussenbereich aktiviert."

Projektwettbewerb Umbau Hochbergerstrasse 158 © Salathé Architekten Basel

"Die Projektverfassenden schaffen es, mit wenigen Eingriffen «so viel wie nötig, so wenig wie möglich» innerhalb der bestehenden Struktur das geforderte Programm abzubilden und dazu mit viel Sensibilität einiges an differenzierten Qualitäten zu generieren. Das Gebäude erscheint insgesamt in seiner Nutzung und Aufteilung in öffentliche und private Bereiche klar organisiert. Die Absicht des Wettbewerbs, neben preisgünstigem Wohnen auch gut nutzbare quartierdienliche Programmteile anzubieten, wird somit gut erfüllt. Insgesamt stellt das Projekt «le vent nous portera» somit einen sehr interessanten und gelungenen Beitrag dar, der mit beabsichtigter grosser Genügsamkeit im Umgang mit der bestehenden Gebäudestruktur ein Maximum an Programmerfüllung bieten kann. Aufgrund der genannten Defizite, insbesondere der einseitig orientierten Wohnungen, der Qualität der internen Gangerschliessung, sowie einem architektonischen Ausdruck, der in der Beurteilung noch einige Fragen offen liess, konnte sich der Entwurf dann aber doch nicht ganz an die Spitze des Bewerberfeldes durchsetzen."

«KAMILA»
4. Rang
ARGE e.GO, Wädenswil

Projektwettbewerb Umbau Hochbergerstrasse 158 © ARGE e.GO

"Das Projekt Kamila zeichnet sich durch eine klare Handschrift aus. Das bestehende Bürogebäude wird in seinem Ausdruck in eine neue, deutlich wahrnehmbare Ära überführt. Dabei schlagen die Projektverfassenden einen kompletten Rückbau der Südfassade mit den bestehenden Bandfenstern vor. Ersetzt wird die Fassade durch eine eigentliche Curtain Wall. Ein filigranes, grün gehaltenes Raster aus Metallprofilen übernimmt den Rhythmus der Tragstruktur. Auch die Nordfassade mit Ausnahme der Wandscheibe im Bereich der vertikalen Erschliessung, wird intensiv begrünt vorgeschlagen. Die südliche grossformatige Glasfassade wird ergänzt durch horizontale Stege mit zurückversetzt angelagerten Pflanzkörben und einem markanten, aussenliegenden Sonnenschutz in Form eines aus recycelten LKW-Planen gefertigten Vorhangs. Das heute ausnehmend spröde Erscheinungsbild wird abgelöst durch ein differenziertes und heiteres Bild. Der Jury gefällt die evozierte Stimmung des leichten und lebendigen Gebäudeausdrucks, auch wenn etwa der Vorhang bezüglich Robustheit, Funktionalität und Brandschutz noch Fragen offen lässt. Kontrovers diskutiert wird der Umstand, ob das elegante Bild von Teilen der Öffentlichkeit nicht als Ausdruck einer forcierten Gentrifizierung missinterpretiert werden könnte."

Projektwettbewerb Umbau Hochbergerstrasse 158 © ARGE e.GO

"Die Wohnungen erstrecken sich über sämtliche Obergeschosse, inklusive das Attikageschoss. Der geforderte Wohnungsspiegel wird in seiner Vielfalt und Anzahl eingehalten. Alle 30 Wohnungen sind durch den nach innen gerückten, neu erstellten Treppenkern und einen an der Nordfassade gelegenen Laubengang erschlossen. Dieser dem Innenklima zugeschlagene Laubengang soll gemäss den Projektverfassenden als Austausch- und Begegnungsort innerhalb der Wohngeschosse fungieren. Ob sich dieser Erschliessungsraum tatsächlich als sozialer Raum des Teilens etablieren wird, bleibt dahingestellt. Aus Gründen des Brandschutzes darf der Laubengang nämlich nicht als Aufenthaltszone möbliert werden. Unabhängig davon dürfte die soziale Interaktion in Anbetracht der Nordausrichtung und der räumlich knappen Verhältnisse deutlich beschränkt sein. Glaubhaft vermittelt wird hingegen ein robustes Grundrisskonzept der einzelnen Wohnungen. Eine doppelt gekurvte Wand sticht als charakteristisches Element in der Grundrisskonfiguration hervor. Die zeichenhaften Aufweitungen innerhalb der räumlichen Ordnung schaffen eine Spannung von sich öffnenden und verengenden Raumsequenzen. Es entstehen gleichzeitig sowohl intime wie auch räumlich grosszügige Essnischen gegenüber den Küchen und alternierend in der benachbarten Wohnung eine korridorartige Verengung im Übergang zu den Nebenräumen. Angeregt diskutiert wird, ob diese architektonisch-räumliche Erfindung als Projektidee tragend ist. Gewiss ist zu konstatieren, dass die Wohnungen über viel Privatsphäre verfügen und im Grundsatz eine gute Wohnlichkeit aufweisen. Bemängelt wird, dass die Variabilität im Vergleich eher eingeschränkt ist, zumal auch die Wohnungen im Attikageschoss im Wesentlichen derselben Typologie folgen, mit Ausnahme, dass diese als einzige über das Privileg von privaten Aussenräumen verfügen."

Projektwettbewerb Umbau Hochbergerstrasse 158 © ARGE e.GO

"Insgesamt ist den Projektverfassenden ein für die Aufgabenstellung sehr wertvoller Beitrag gelungen. Der robuste Projektvorschlag vermittelt einen positiven Ausdruck. Der Entwurf steht für einen zeichenhaften, ja kühnen Aufbruch, ohne exklamatorisch zu wirken. Im Gegenteil, es wird ein elegantes Bild evoziert, verbunden mit der Einladung an die Quartierbevölkerung, sich das Haus anzueignen. Gezwungenermassen ist die vorgeschlagene Eingriffstiefe hoch. Die einzelnen Wohnungen bestechen aber durch eine allgemein hohe Wohnqualität. Der «Kunstgriff» der doppeltgekurvten Wand erlaubt eine gute Möblierung, auch wenn eine gewisse Determinierung des Grundrisses nicht von der Hand zu weisen ist."

«BASEL-ROTTERDAM»
5. Rang
ARGE Lemmen Mazzei Architekten + BRH Architekten, Basel

Projektwettbewerb Umbau Hochbergerstrasse 158 © ARGE Lemmen Mazzei Architekten + BRH Architekten

"Die Projektverfassenden sehen den Standort an der Hochbergstrasse im Spannungsfeld zwischen dem kleinmassstäblichen Dorfkern von Kleinhüningen und dem grossmassstäblichen Container-Hafenareal. Sie sind davon überzeugt, dass sich hier der grosse Massstab durchsetzen wird. Aus dieser Feststellung werden zwei überraschende Setzungen abgeleitet, die das Projekt Basel-Rotterdam bestimmen. Das gesamte Erd- und Dachgeschoss werden für gemeinschaftliche Nutzungen freigeräumt. Zwischen diese beiden Geschossen wird eine komplett neue Erschliessung mit drei Treppen und Liften gespannt."

Projektwettbewerb Umbau Hochbergerstrasse 158 © ARGE Lemmen Mazzei Architekten + BRH Architekten

"Eine einfache Fassadenkonstruktion kompensiert zum Teil den aufwendigen Eingriff in den Rohbau für die drei neuen Treppenhauskerne. So schafft die konsequente Lage des Wärmedämmperimeters an den Aussenkanten des Gebäudes eine minimale Abwicklung der Gebäudehülle ohne Wärmebrücken. Eine fein gegliederte Fassade aus rezyklierten Metallblechen bezieht sich auf die Stimmung des benachbarten Hafenareals."

Projektwettbewerb Umbau Hochbergerstrasse 158 © ARGE Lemmen Mazzei Architekten + BRH Architekten

"Grundsätzlich wirkt der Versuch sympathisch ein dem gemeinschaftlichen Zusammenleben gewidmetes Haus zu entwickeln. Aus dem grosszügigen gemeinschaftlichen Angeboten im Erd- und Dachgeschoss resultiert aber eine unterdurchschnittliche Wohnfläche, welche nur mit höheren Mietzinsen finanziert werden kann. Diese kleine Wohnfläche vermag wiederum das opulente Angebot an gemeinschaftlichen Flächen nicht vollständig zu beleben. Insgesamt fehlt dem Vorschlag ein Gleichgewicht zwischen privater und gemeinschaftlicher Nutzfläche."

«NEONSONNE»
6. Rang
Härtel Lovis Steinbach Architekten, Zürich

Projektwettbewerb Umbau Hochbergerstrasse 158 © Härtel Lovis Steinbach Architekten SIA

"Die Projektverfassenden des Projektes NEONSONNE beschreiben ihre konzeptuelle Absicht prägnant mit dem Ausdruck «as found». Dieser Absichtserklärung bleibt das Projekt treu, indem es den bestehenden Rohbau als einen für den Entwurf gegebenen Parameter respektiert und diesen mit präzisen architektonischen Massnahmen akkurat ergänzt. Der Entwurf transformiert die Büroliegenschaft aus den 60er-Jahren auf eine eindrücklich direkte Weise in ein Wohnhaus mit hoher architektonischer Qualität. Der Charakter der vorhandenen Rohbaustruktur wird freigelegt und als gestalterisches Element inszeniert."

Projektwettbewerb Umbau Hochbergerstrasse 158 © Härtel Lovis Steinbach Architekten SIA

"Die Mehrheit der Wohnungen sind über die nordseitigen Laubengänge erreichbar und erstrecken sich bis an die Strassenfassade auf der Südseite. Das eng gewählte Raster der Wohnungstrennwände führt zu einer erheblichen Dichte von Kleinwohnungen. Die Ausnahme bietet jeweils eine grössere Wohnung am Treppenhaus. Im Zentrum der Wohnungen, im Bereich der Stützen und Unterzüge, wird eine geschickt ausformulierte Nasszelle vorgeschlagen. Mit geschosshohen Drehtüren im Bereich des Bades, lässt sich der Grundriss in einen lebhafteren und einen introvertierteren Wohnbereich zonieren."

"Die Projektverfassenden beschreiben die Wohnungstypologie als anpassbar, indem wohnungsübergreifend Zwischenwandbereiche flexibel ausgeführt werden können. Aufgrund der hohen Dichte von Kleiwohnungen ist dieser Ansatz, mit dem Ziel eines vielfältigeren Wohnungsangebotes, nachvollziehbar. Diese Absicht und die zu erwartende Qualität ist jedoch aufgrund der reduzierten Darstellungsweise in den Zeichnungen nicht schlüssig nachvollziehbar. Bei der Konstruktion und der Materialwahl der Wohnungsausbauten bleiben sich die Projektverfassenden dem Konzept der Reduktion auf das Wesentliche treu. Die Rohheit der vorhandenen Struktur, in Kombination mit einfachen Materialien wie Holz, ergänzen sich auf selbstverständliche Art und bieten atmosphärische und räumliche Wohnqualitäten."

Projektwettbewerb Umbau Hochbergerstrasse 158 © Härtel Lovis Steinbach Architekten SIA

"Das Erhalten von strukturellen Bauteilen und die pragmatische Anwendung von ergänzenden Materialien zeigt sich auch positiv in der Kosten- und Nachhaltigkeitsanalyse. Insbesondere sticht das Projekt bei der Beurteilung der Nachhaltigkeit aufgrund der Suffzienz hervor und weist eine sehr gute Gesamtbilanz auf. Insgesamt handelt es sich um einen architektonisch und räumlich sehr anregenden und inspirierenden Beitrag, welcher seine Schwächen bezüglich der öffentlich dienlichen Qualitäten nicht verbergen kann."

Sämtliche Zitate stammen aus dem Jurybericht.
Artikel: Lukas Gruntz / Architektur Basel


AUSSTELLUNG
Die Wettbewerbsbeiträge können vom 11. bis 21. August 2020 an der Uferstrasse 90 (Eingang Süd, 1. Obergeschoss) besichtigt werden. Öffnungszeiten der Ausstellung: Montag bis Freitag von 17 bis 20 Uhr.

JURYBERICHT
Download > PDF des Juryberichts