Basler Grundrisse
07.03.20
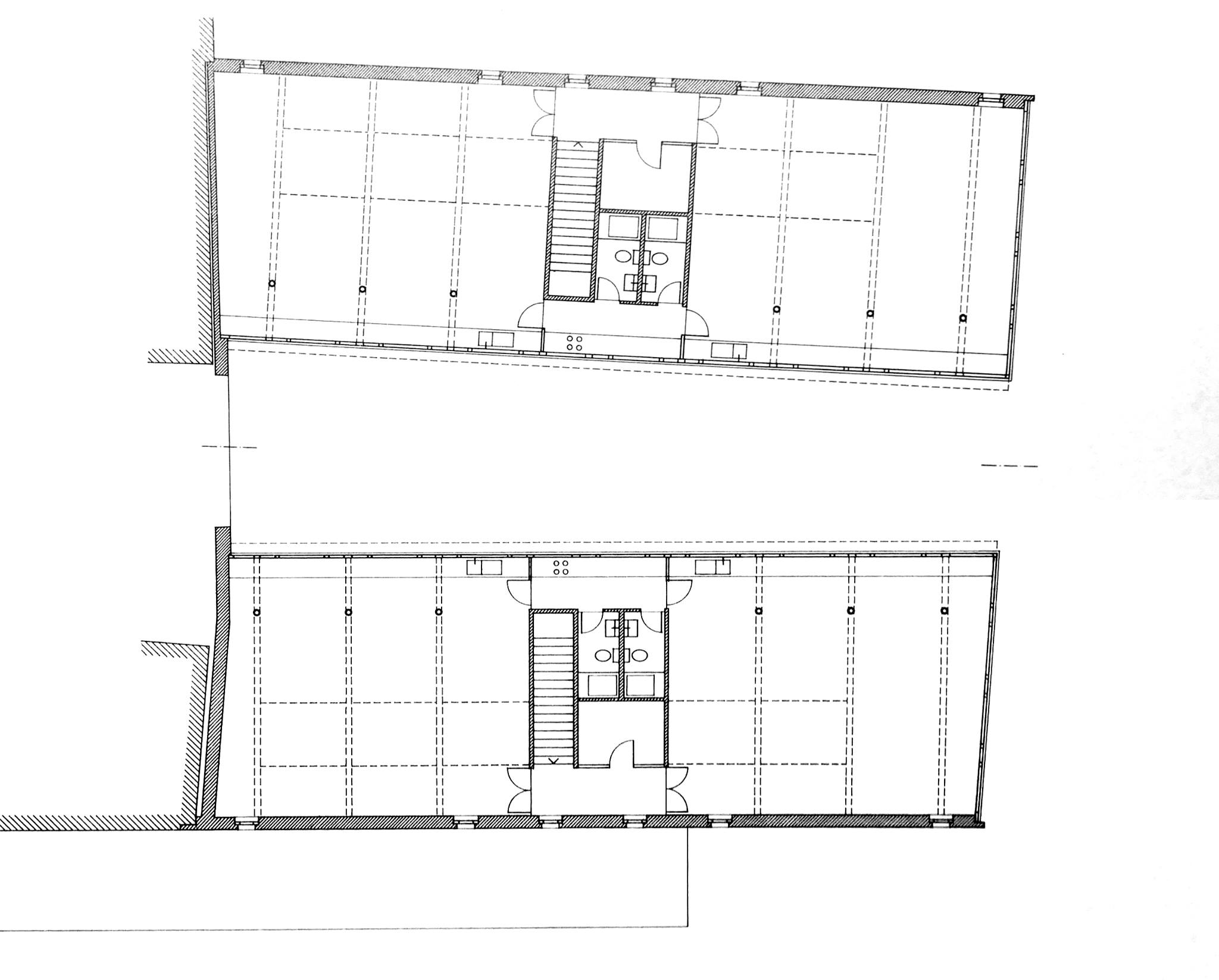
CMS Ateliers St. Alban-Tal von Michael Alder, 1987
CMS Ateliers St. Alban-Tal von Michael Alder, 1987
Name: Einfamilienhaus Moosweg
Architekten: Michael Alder
Adresse: St. Alban-Tal 40A, 4052 Basel
Baujahr: 1987
Funktion: Büro