Wettbewerbe 22.08.22

© Nightnurse Images

Felippi Wyssen bis Nord: Alle Wettbewerbsbeiträge für die zweite Bauetappe auf dem Westfeld

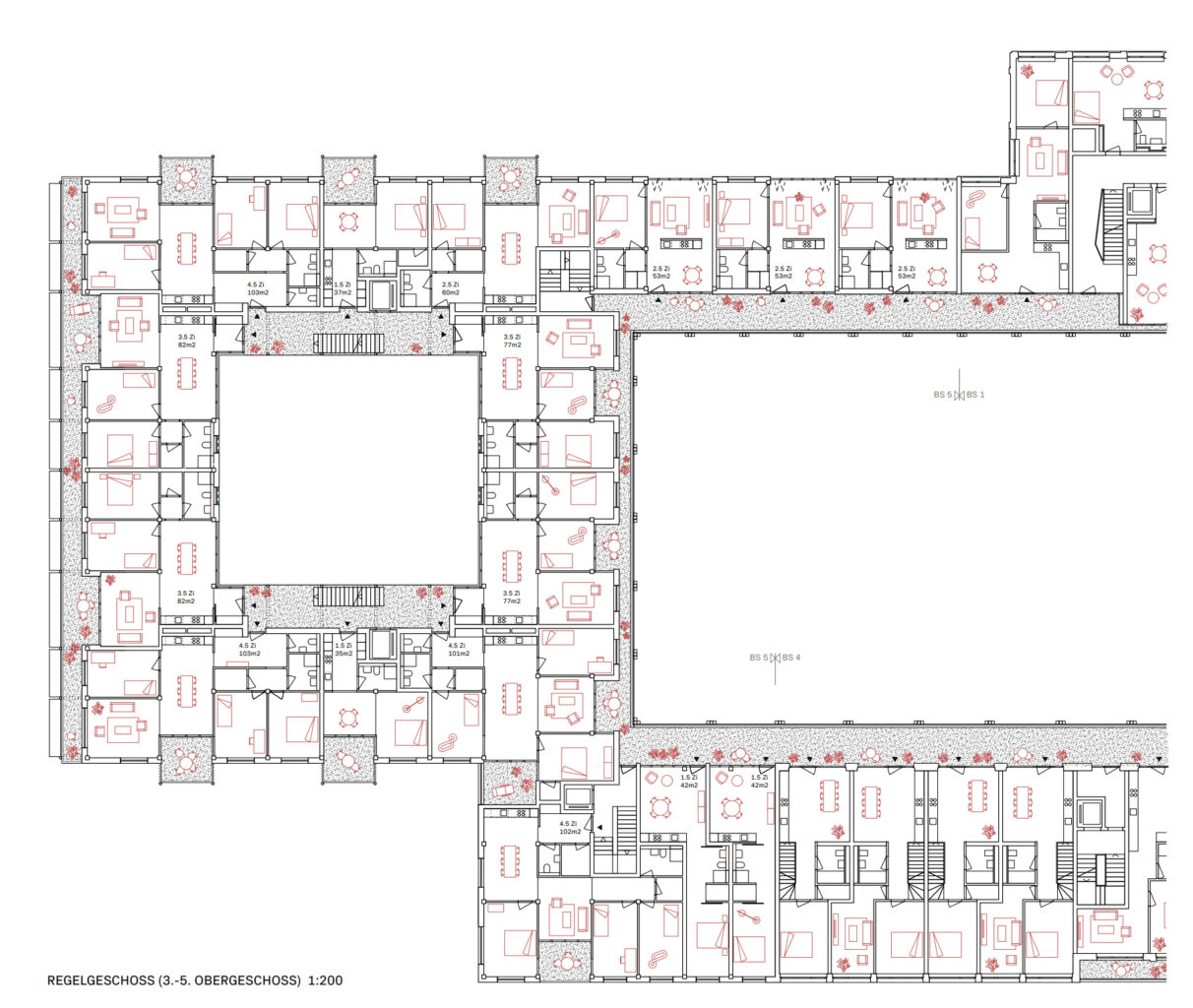
Der genossenschaftliche Wohnungsbau in Basel lebt. Und wie. Das grösste Projekt befindet sich derzeit auf dem Westfeld. Die Baugenossenschaft "wohnen & mehr" realisiert dort ein genossenschaftliches Grossprojekt, das den Aufbruch der Genossenschaften symbolisiert und in Bezug auf Themen wie Quartierentwicklung, Städtebau, Nachhaltigkeit und Nutzungsmix beispielhafte Lösungen sucht. Soeben fand der Studienauftrag für die zweite Bauetappe statt. Es sind eindrückliche Dimensionen: Auf der über 35'000 Quadratmeter grossen Parzelle entstehen rund 530 Genossenschaftswohnungen. In der ersten Bauetappe werden auf dem für die Neubauten vorgesehenen Arealteil bis 2023 rund 315 Wohnungen realisiert (Teilprojekt 1), weitere 130 Wohnungen entstehen im umgenutzten Spitalgebäude (Teilprojekt 2). In der zweiten Bauetappe werden ab 2024 nochmals 70-80 Wohnungen gebaut (Teilprojekt 3). Das Teilprojekt beinhaltet einen Kopfbau als Abschluss des Blockrands zur Hegenheimerstrasse, ein viertes pavillonartiges Gebäude zwischen dem alten Spital und den Neubauten sowie eine Erweiterung der Autoeinstellhalle der ersten Bauetappe. Hinzu kommen in allen Teilprojekten Flächen für Quartiernutzungen, Dienstleistungen, Kleingewerbe und Parkierung. Um die überzeugendste Lösung für die zweite Bauetappe zu finden, lud "wohnen&mehr" im Herbst 2021 fünf Architektenteams zu einem Studienauftrag ein. Die Jury lobte, "dass sich alle Teams sehr intensiv, mit je eigenen Lösungsansätzen und auf ausgesprochen hohem qualitativem Niveau mit der gestellten Aufgabe auseinandergesetzt haben." Wir werfen einen Blick auf alle fünf Beiträge. Info: Die nachfolgenden Projektbeschriebe stammen aus dem Bericht des Studienauftrags.  

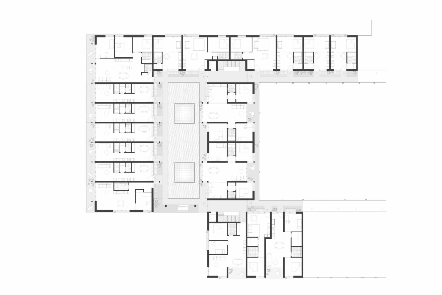
Weyell Zipse Architekten Siegerprojekt 🏆

© Weyell Zipse

Die Verfasser präsentieren den neuen Baustein in einer Doppelrolle: zum einen als Auftakt zum Westfeld, zum andern als Abschluss des bestehenden grossen Wohnhofs. Durch die vollflächige Überbauung des Erdgeschosses gelingt es ihnen, den kleineren Hof der zweiten Bauetappe vom grosszügigen, öffentlichen Wohnhof zu differenzieren. Letzterer wird räumlich gefasst und mit den beiden zusätzlichen Eingangshallen im Kopfbau als gemeinschaftlicher Zugangshof zu den Wohnungen gestärkt. Indem der neue, kleine Innenhof im Obergeschoss zu liegen kommt, wird seine Höhe reduziert und der private Charakter akzentuiert.

© Weyell Zipse

© Weyell Zipse

Das Sockelgeschoss nimmt öffentliche Nutzungen wie die Kinderbetreuung und kleine Gewerbeflächen am Forum auf. Durch eine geschickte Anordnung entsteht eine nachhaltige Flexibilität in Bezug auf die Nutzung der Flächen. So kann die Spielhalle tagsüber für die Kinderbetreuung genutzt werden, am Abend und an den Wochenenden über einen separaten Zugang durch die Bewohnerinnen und Bewohner des Westfelds. Gleichzeitig ermöglicht die flexible Struktur längerfristig auch eine Nutzungsänderung. Die Erschliessung der Wohnungen erfolgt vom allgemeinen Wohnhof aus über zwei Treppenhäuser und Laubengänge in den Obergeschossen. Diese bilden eine selbstverständliche Fortsetzung des bereits in der ersten Etappe etablierten Erschliessungssystems. Gleichzeitig erschliessen die beiden Treppenanlagen über ein geschicktes Wegesystem – den Nachteilen des Laubenganges entgegenwirkend – sämtliche Wohnungen im Kopfbau.

© Weyell Zipse

© Weyell Zipse

Durch die Anordnung der Wohnungen werden die notwendigen Erschliessungsbereiche auf ein Minimum reduziert. Durch die fehlenden Laubengänge im Bereich der Maisonettewohnungen kann deren Belichtung optimiert werden. Die zwischen den hofseitigen Fassaden gewonnene Distanz lässt trotz der räumlichen Nähe eine gewisse Privatheit der dahinter liegenden Räume entstehen. Gleichzeitig vermitteln die beiden übereinander gestapelten Maisonette-Typologien das Bild von aneinander gereihten Reihenhäusern, was im Kontext des vorhandenen städtischen Raums und des genossenschaftlichen Wohnungsbaus allenfalls etwas fremd erscheinen mag. Eine über alle Obergeschosse reichende Öffnung des kleinen Hofs zum Grünstreifen entlang der Ensisheimerstrasse verleiht diesem eine wohltuende Grosszügigkeit, ermöglicht eine gute Belichtung der Wohnungen und sorgt für eine ausreichende Belüftung dieses gemeinschaftlichen Aussenraums. Der einseitig offene Hof findet mit der durchlaufenden Schicht der Laubengänge und Terrassen an der Fassade einen filigranen, räumlichen Abschluss. Die vorgeschlagene Nutzbarkeit dieser Erschliessungsbereiche muss aufgrund der feuerpolizeilichen Bestimmungen in einer weiteren Bearbeitung überprüft werden. Ebenso soll die von innen gewünschte Transparenz – in Abstimmung mit der äusseren Erscheinung des kraftvollen Schlusssteins der Bebauung – weiter gestärkt werden. Die Vielfalt der unterschiedlichen Wohnungen und Typologien ergänzt das vorhandene Angebot auf dem Areal sehr gut. Die kleinen Studiowohnungen über dem Durchgang zum Quartierplatz vermitteln zwischen den Bausteinen 1 und 5, während mit den Geschosswohnungen zur Ensisheimerstrasse hin ein selbstverständlicher Anschluss an den Baustein 4 gewährleistet wird. Im Weiteren sind neben den 13 Maisonettewohnungen Geschosswohnungen unterschiedlicher Grösse sowie Atelierwohnungen vorgesehen. Mit dem Öffnen des Hofs wird auch für die zwischen den beiden Höfen gelegenen Wohnungen eine überzeugende Wohnqualität geschaffen. Die Wohnungen am Dachgarten im ersten Obergeschoss sollten jedoch unter Berücksichtigung ihrer besonderen Lage und der vorhandenen Einsehbarkeit noch weiterentwickelt werden.

© Weyell Zipse

© Weyell Zipse

Mit ihrem eigenständigen Ansatz ist es den Verfassern gelungen, die schwierige Ausgangslage des vorgegebenen Kopfbaus im Zusammenhang mit dem genossenschaftlichen Wohnungsbau in einen überzeugenden Entwurf zu überführen. Das neue Volumen schliesst den bestehenden Wohnhof in selbstverständlicher Weise ab und bildet mit dem höher gelegenen Dachgarten einen komplementären Hofraum, der sich mit einer überraschenden Geste zum Stadtraum öffnet. Sowohl die öffentlichen Nutzungen im Sockelgeschoss wie auch die Wohnungen weisen eine hohe Qualität auf. Der schlanke Velopavillon vermittelt an städtebaulich sensibler Lage geschickt zwischen den unterschiedlichen Gebäudekörpern. Noch zu verbessern ist der Fassadenausdruck des Kopfbaus. Insgesamt überzeugt der Projektvorschlag durch hohe Effizienz und Wirtschaftlichkeit.  

BGM Architekten

© BGM Architekten

Die Projektverfasser konzipieren den neuen Baustein der zweiten Bauetappe komplementär zu den bestehenden Bausteinen. Der Wohnhof im Baustein 5 wird vom grossen Hof der übrigen Bausteine bewusst unterschieden. Darin wird die Chance gesehen, im letzten Baustein das Westfeld in seiner ganzen Vielfalt zu reflektieren und die Gesamtbebauung um einen Akzent reicher zu machen. Im Mittelpunkt des Projektvorschlags steht der gemeinsam gelebte Nachbarschaftsgedanke, der die Kernidee des genossenschaftlichen Wohnens an einem gemeinsam gestalteten und getragenen Wohnort sein soll. Im Erdgeschoss ist am Übergang vom grossen zum kleinen Hof ein Treffpunkt angelegt, der die Nachbarschaft stärken soll. Der gedeckte Durchgang mit der Treppenanlage und der darin integrierten Rampe soll zum Verweilen und Spielen einladen. Um den kleinen Wohnhof sind gemeinschaftlich genutzte Funktionen wie Waschküchen und Trockenräume angeordnet, welche dadurch zu Begegnungsorten der Bewohnerinnen und Bewohner werden. Stadtseitig liegen im Erdgeschoss flexibel einteilbare Gewerbeflächen, die sowohl die im Programm geforderte Kinderbetreuung als auch Laden-, Dienstleistungs- oder Büronutzungen aufnehmen können. Diese aktivieren den Stadtraum am Zugang zur Bebauung und verankern den neuen Baustein selbstverständlich im Umfeld.  

© BGM Architekten

© BGM Architekten

Sowohl der Gesamtgrundriss wie auch die Schnittlösung wirken aufgeräumt und klar. Der Gedanke der gelebten Nachbarschaft ist grundsätzlich interessant. Im vorliegendem Projekt wird er jedoch überstrapaziert, weshalb dem Baustein 5 eine allzu grosse Sonderstellung im Gesamtkontext zuteil wird. Der mit einer prominenten Treppen- beziehungsweise Rampenanlage artikulierte Übergang vom grossen, längs gerichteten Wohnhof zum schachtartigen, stark vertikal orientierten Hof im Baustein 5 verstärkt diesen Eindruck. Die Absicht der Projektverfasser, die beiden Höfe auf Erdgeschossniveau zusammenzubinden, gelingt hier nicht im gewünschten Masse. In den Obergeschossen bildet eine durchgehende Laubengangtypologie das zentrale Element der gelebten Nachbarschaft. Den Laubengang sehen die Projektverfasser nicht nur als Erschliessung, sondern ebenso als Treffpunkt, erweiterten Aussenraum und «Vorgarten» der Wohnung.

© BGM Architekten

© BGM Architekten

Die Typologie der Wohnungen soll vom Mehrwert des Laubengangs profitieren und dessen Nachteile reduzieren. Entlang der Erschliessung sind deshalb vorwiegend störungsunempfindliche Räume angeordnet. Im Alltag dürfte die durch die durchgängige Laubengangtypologie forcierte Gemeinschaft eher beengend als bereichernd wirken. Insbesondere die räumliche Enge des Hofes, die durch die überbreiten Laubengänge entsteht, und die allseitig gleiche Bespielung mit «Vorgärten» führen zu einer ständigen, gegenseitigen Exponierung. Der allseitig geschlossene Hof dürfte auch hinsichtlich interner Lärmentwicklung nicht ganz unproblematisch sein. Positiv zu erwähnen ist, dass die Nachtauskühlung im Sommer durch die grosse Öffnung im Erdgeschoss begünstigt wird. Die Grundrisse der Wohnungen überzeugen durch das durchgehende Leitmotiv der flexiblen Wohnhalle. Das Motiv findet sich bei unterschiedlichen Wohnungsgrössen und in verschiedenen Lagen. Der Gedanke, dass die durchgesteckte Wohnhalle als Bindeglied zwischen Stadt- und Hofseite funktioniert, ist reizvoll. Gleichzeitig schlagen die Projektverfasser optional eine Segmentierung der Halle mittels Raumteiler vor. Was als gleichsam korridorlose Wohnung und als individuelle Aneigenbarkeit durch die Mieter positiv gewertet kann, kann aufgrund der Überlagerung von Zirkulations- und Aufenthaltsbereichen im Alltag auch nachteilig sein und die Wohnhalle ihrer Grosszügigkeit berauben. Als sehr gelungen wird der Vorschlag gewertet, an der Schnittstelle der beiden Höfe einen Typologiewechsel vorzunehmen. Die Maisonette-Typologie ist hier eine geschickte Antwort auf die spezifische Lage der Wohnungen ohne Bezug zum Stadtraum. Die teilweise doppelgeschossigen Raumzonen schaffen unter Einbezug der dritten Dimension eine wohltuende Weite.

© BGM Architekten

Der vorliegende Beitrag basiert auf einem starken Grundkonzept. Er ist in vielen Teilen äusserst sorgfältig und profund ausgearbeitet und besticht durch eine hohe Selbstverständlichkeit und Prägnanz. Die Verfasser suchen nach klaren, eindeutigen Antworten auf eine überaus komplexe Fragestellung – was den Entwurf in einigen Aspekten etwas schematisch erscheinen lässt. Dies zeigt sich beispielsweise in der kleinen Anzahl an unterschiedlichen Wohntypologien. Die über den engen Hof sehr eng miteinander «verwobene» Hausgemeinschaft vermag einen bestimmten Mietertypus anzuziehen, deckt sich aber nicht mit dem angepeilten Ziel, eine vielfältige, gemischte Bewohnerschaft anzusprechen. Begegnung und Austausch können so zur strapazierten Pflichterfüllung werden.  

Felippi Wyssen Architekten

© Felippi Wyssen Architekten

Der Kopfbau orientiert sich in der Setzung, der Volumetrie und der Fassadengestaltung am städtebaulichen Regelwerk für das Westfeld. Die Weiterentwicklung des Projektvorschlags – vom komprimierten Konglomerat bei der Zwischenpräsentation zum selbstbewussten, zentral erschlossenen Kopfbau bei der Schlusspräsentation – wird vom Beurteilungsgremium positiv gewürdigt. Der vorgeschlagene Kopfbau überzeugt städtebaulich-architektonisch durch eine elegante, feingliedrige Präsenz. Die horizontale Bänderung und die umlaufende Balkonschicht schaffen eine formensprachliche Verwandtschaft mit dem alten, umgenutzten Felix Platter-Spital. Eine selbstverständliche, farblich nuancierte Nachbarschaft entsteht. Die Fassadenmaterialisierung mit Betonsockel und hinterlüfteten Platten in den Obergeschossen orientiert sich an den Bauten aus der ersten Bauetappe. Im Sockelgeschoss sind mehrheitlich Gewerbenutzungen untergebracht. Die Verfasser reagieren auf den Geländeanstieg durch eine Geschossstaffelung: mit zum Teil zweistöckigen Bereichen für die Kinderbetreuung, Wohnungen im Erdgeschoss und einem darunterliegenden, leicht aus dem Terrain ragenden Kellergeschoss. Das Sockelgeschoss ist nach dem Zwiebelschalen-Prinzip konzipiert: So orientieren sich die aussenliegenden Bereiche zur Öffentlichkeit beziehungsweise zum Forum hin, während die innenliegenden, abgesenkten Bereiche Wohnerschliessungs- und Bewohnerfunktionen aufnehmen. Die Programmierung der «äusseren Zwiebelschale» wirft für das Beurteilungsgremium Fragen auf, so etwa die Organisation der Kinderbetreuung über mehrere Etagen oder die Platzierung von Wohn- und Lagernutzungen im Hoch- bzw. Tiefparterre.

© Felippi Wyssen Architekten

© Felippi Wyssen Architekten

Alle Wohnungen werden über den Innenhof erschlossen, den die Verfasser als Patio verstehen. Dieser liegt entgegen dem Terrainverlauf abgesenkt auf ähnlichem Niveau wie der grosse Wohnhof. Ein doppelgeschossiges Portal verbindet die beiden Höfe. Diese Öffnung begünstigt durch den Kamineffekt eine genügende Durchlüftung und Nachtauskühlung. Zur räumlichen Gliederung werden einstöckige Vorbauten vorgeschlagen, darüber Beleuchtungsgirlanden und vertikale Begrünungselemente. Diese Gliederungsmassnahmen bewirken ein Spiel mit der Massstäblichkeit und reduzieren die gefühlte Höhe des Lichthofes. Als Nutzung der Vorbauten sind Waschsalons und Trocknungsräume vorgesehen (wobei auch andere Nutzungen denkbar sind). Die seitlich «eingekerbten» offenen Treppenhäuser tragen dazu bei, den Patio grösser wirken zu lassen. Ob der Patio tatsächlich die suggerierte Aufenthaltsqualität hat und ob die Waschhäuser als prominent in Szene gesetzter sozialer Treffpunkt funktionieren, wurde vom Beurteilungsgremium kritisch beurteilt. Einhellig positiv wurde bewertet, dem Patio nicht zu viele Funktionen einzuschreiben, sondern ihn sorgfältig-zurückhaltend als Erschliessungs- und Belichtungsraum zu inszenieren.

© Felippi Wyssen Architekten

Der Hof ist zunächst einfach Hof. Dies funktioniert auch darum gut, weil er nicht überstrapaziert wird mit zu vielen Begegnungsangeboten oder einer Wegführung, welche allzu direkte Einblicke in die Privatsphäre erlauben würde. Diese entspannte Haltung führt zu einem gut vorstellbaren, wenngleich noch etwas «glatten» Hofbild. In den zwei Gebäudeflügeln an den Anschlüssen zur ersten Bauetappe sind zwei weitere Erschliessungskerne vorgesehen – was die Erschliessungseffizienz etwas mindert. Auch bei den Grundrissen wurde ein geschickter Umgang mit der Thematik von Nähe und Distanz gefunden. So wurden Puffer- und Filterräume geschaffen, die den Rückzug ins Private ermöglichen. Die Vielzahl effizient geschnittener, zweiseitig belichteter Wohnungen – von der Geschosswohnung bis zur Maisonettewohnung, vom Durchwohnen bis zum Wohnen an der Laube – schafft ein attraktives Angebot für das genossenschaftliche Wohnen.

© Felippi Wyssen Architekten

Den Verfassern ist es gelungen, die in der Zwischenpräsentation geäusserte Kritik in einen stringenten, gereiften, wirtschaftlichen Entwurf umzumünzen. Mit der feinen Klinge wurden die Wohnungsgrundrisse und die Fassaden entwickelt – mit dem Resultat eines zurückhaltend-eleganten und gleichzeitig selbstbewusst-präsenten Auftaktgebäudes an der Hegenheimerstrasse. Die Erschliessung der Wohnungen wird auf dem Niveau des grossen Wohnhofs über einen abgesenkten Patio als Begegnungs- und Verteilerraum gelöst und ist qualitätsvoll umgesetzt. Dennoch blieben beim Beurteilungsgremium Zweifel, ob der Patio akustisch, klimatisch und von der Nutzung her «lebbar» sei. Auch führt die Öffnung zwischen den Höfen zu einer gewissen Schwächung in Bezug auf die Fassung des grossen Wohnhofs mit seinen definierten Durchgängen zum Stadtraum beziehungsweise zum Quartierplatz.  

Marco Merz Marion Clauss

© Marco Merz Marion Clauss

Der von den Verfassern entwickelte Baustein mit dem von der Stadtebene losgelösten Gartenhof bildet eine in sich abgeschlossene Einheit. Dies stärkt seine Stellung als Kopfbau. Mit der vollständigen Überbauung des Innenhofes im Erdgeschoss und der treppenartigen Öffnung der darüberliegenden Geschosse unterscheidet sich der Charakter des neuen Innenhofs auffällig stark vom bestehenden grossen Wohnhof. Der grosse Hof wird durch diese Geste räumlich geschlossen und dadurch klar gefasst. Indem die gesamte Erdgeschossfläche des Kopfbaus überbaut wird, bietet sie ein gutes Potential für die noch nicht abschliessend bestimmte Erdgeschossnutzung und trägt zur Wirtschaftlichkeit des Projektes bei. Die «Dichte des Zusammenlebens» am kleinen Innenhof ist nochmals höher und wird von den Verfassern durch die Wahl der Erschliessung und Gestaltung der Wohnungen als spezifische Qualität interpretiert. Es entsteht der Eindruck eines kollektiven Wohnmodells mit experimentellen Ansätzen. Die Erschliessung der Wohnungen über den grossen Hof entspricht dem Konzept des Regelwerks der übrigen Bausteine und verhilft zu einer einfachen Adressierung. Die beiden Treppenhäuser sind sinnvoll in den Kreuzungspunkten der Lauben verortet, die Erschliessung mit zwei Treppen und zwei Liften ist sehr ökonomisch. Die beiden Eingangshallen mit den räumlich geschlossenen Treppen dürften aufgrund der Bedeutung allerdings etwas grosszügiger sein. Die Austritte in den Obergeschossen führen zu den Laubengang-Anbindungen der benachbarten Bausteine. Hier fehlt es an Sichtbezügen in den Innenhof des Kopfgebäudes – womit die Orientierung und der Zugang erschwert werden.

© Marco Merz Marion Clauss

© Marco Merz Marion Clauss

Durch die Abstufung zu den darüberliegenden Geschossen wirkt der Laubengang offen, der Blick zum Himmel ist vom ersten Obergeschoss an für alle Wohnungen gegeben. Der Gartenhof ist atmosphärisch reizvoll und animiert zu gemeinsamen Aktivitäten der Bewohnerinnen und Bewohner. Die Möglichkeit, die Stahlkonstruktion zu beranken und Topfpflanzen aufzustellen, führt zu einer wohnlichen Ausstrahlung. Der Wohnungsmix ist sehr vielfältig. Mit verschiedenen Wohntypologien reagieren die Verfasser auf die unterschiedlichen Situationen. Die konsequente Reaktion auf die unterschiedlichen Ausrichtungen und die räumliche Situation führen zu einer hohen (aus Sicht des Beurteilungsgremiums zu hohen) Diversität.

© Marco Merz Marion Clauss

Die Laubenwohnungen werden durch eingezogene Windfänge vom Hof abgeschirmt. Die wintergartenähnlichen Pufferzonen bilden einen eigenständigen Typus und vermitteln, vielseitig nutz- und bespielbar, zwischen der halböffentlichen und der privaten Sphäre. Allerdings verfügt der dahinter liegende Wohnraum dadurch über wenig Tageslicht und ist durch die vielen Türen nur beschränkt möblierbar. Fraglich ist auch, ob die Loggia als Zwischenklima einen gleichen Nutzwert hat wie die beheizte Wohnfläche. Attraktiv erscheinen die Familienwohnungen an den Ecklagen zur Hegenheimerstrasse. Ein Co-Housing für studentisches Wohnen über zwei Geschosse zwischen den beiden Höfen reagiert auf die besondere Lage. Das Raumangebot – mit zwei Küchen, aber nur einem Wohn-Essraum und relativ wenigen Bädern – erscheint noch nicht optimal. Im Erdgeschoss gegen den Grünraum sind zweigeschossige Atelierwohnungen im Selbstausbau vorgesehen. Ihr Zugang erfolgt vom oberen Geschoss aus dem Gartenhof. Die Grundrisse sind sehr schmal und tief geschnitten, was zu wenig belichteten Bereichen führt. Die zusätzliche Abstufung zum Grünraum reduziert die Nutzbarkeit im Erdgeschoss. Der Eingang der Kinderbetreuung ist ideal am Zugang zum Westfeld von der Hegenheimerstrasse gelegen. Die Orte für das Ankommen und Umziehen sind knapp bemessen, ein Abstellraum für Kinderwagen fehlt. Die Spielhalle mit dem davor gelagerten Aussenbereich richtet sich zur Strassenseite.

© Nightnurse Images

Die städtebauliche Konzeption mit der klaren Fassung des grossen Wohnhofs und der Ausformulierung eines introvertierten Kopfbaus gegen den erhöhten Innenhof erscheint stringent, ebenso die Lage der Hauseingänge und die Ausformulierung der Veloparkierung. Hinsichtlich der Wohnqualität und der langfristigen Vermietbarkeit wirft das Projekt jedoch Fragen auf. Die aufgezeigte aktive Nutzung der Hoffläche führt in dem geschlossenen Innenhof wahrscheinlich zu einer Überforderung der Nachbarschaft. Bedenken bestehen hinsichtlich der Lärmsituation und fehlenden Rückzugsmöglichkeiten sowie der Gebrauchstauglichkeit gewisser Wohnungen. Die gewählte Holzbauweise hat ihre nachweislichen Vorzüge. Allerdings resultiert in Kombination mit den Abtreppungen und den verglasten Loggien eine aufwändige Konstruktion – was sich wirtschaftlich negativ auswirkt. Insgesamt handelt es sich beim Projekt des Teams Marco Merz Marion Clauss um einen erfrischenden, eigenständigen, vielseitigen, gemeinschaftsorientierten Beitrag zum genossenschaftlichen Bauen und Wohnen.  

Nord Architekten

© Nord Architekten

Der von Nord Architekten konzipierte Baustein beeindruckt durch ein breites Themenspektrum und die erstaunliche Bearbeitungstiefe. Die wesentlichen Vorgaben aus dem städtebaulichen Konzept wurden als Ausgangslage für den Entwurf berücksichtigt und weiterentwickelt. Mit einer konsequenten Architektursprache gelingt es den Verfassern, den letzten Baustein in die Gesamtüberbauung zu integrieren und dem Kopfbau die notwendige Präsenz als städtebaulicher Abschluss an der Hegenheimerstrasse zu verleihen. Die Projektverfasser haben sich entschieden, das Niveau des bestehenden grossen Wohnhofs bis in den Innenhof des Kopfbaus weiterzuführen. Dabei wird deutlich, dass die Abhängigkeiten zwischen der begrenzten Grundfläche und der siebengeschossigen Gebäudehöhe zu einem kritischen räumlichen Verhältnis führt. Durch eine leichte Verschiebung der Fassadenflucht an der Schnittstelle zwischen den beiden Höfen und vier offene Treppenhäuser wird die beengende Wirkung des neuen, kleinen Hofs entspannt. Der Hofraum erhält mit der volumetrischen Anpassung eine quadratische Grundform und bildet das eigentliche Herzstück des Entwurfs. Der Innenhof wird als Ort der Begegnung zelebriert. Diese Absicht wird durch die in den Hofraum ragenden, dreiecksförmigen Balkonnischen verdeutlicht. Die Intensität, welche das Projekt für den eher knapp bemessenen Innenhof vorsieht, führt in der Einschätzung des Beurteilungsgremiums zu einer sozialen und formalen Dichte, welche für die Bewohnbarkeit des Gebäudes als kritisch eingestuft wird. Die in allen Wohneinheiten auf der hofabgewandten Gebäudeseite angeordneten privateren Zimmer und zusätzlichen Balkone vermögen diese kritische Einschätzung nicht aufzuheben.

© Nord Architekten

© Nord Architekten

Die Erschliessung basiert auf vier vollwertig mit Liften ausgestatteten Treppenhauskernen. Dadurch können grosse Teile der Laubengänge in den Obergeschossen von der Erschliessungsund Fluchtwegfunktion entlastet werden. Sie sind ohne Raumabschlüsse geplant, sodass visuelle Bezüge in und aus dem Innenhof bis in die Umgebung des städtischen Quartiers ermöglicht werden. Die Anordnung der Treppenkerne lässt es zu, dass das Gebäude wie auch der Innenhof von allen vier Seiten betreten werden können. Architektonisch und funktional differenziert ausgearbeitet, markiert der Treppenkern am Übergang zum grossen Wohnhof den Hauptzugang in das Gebäude. Trotz erkennbarer Vorteile wirft die mehrfache Anordnung von Gebäudezugängen bezüglich der Adressierung und der sozialen Kontrolle bei der Beurteilung des Projektes wesentliche Fragen auf. Auch ist fraglich, ob die derzeit offenen Kerne aus feuerpolizeilichen Gründen nicht noch verglast werden müssten. Da das Projekt grundlegend auf dieser Erschliessungstypologie aufbaut, wäre eine Reduktion der kostenintensiven Vertikalerschliessungen aus Sicht des Beurteilungsgremiums nicht ohne Weiteres mit den konzeptionellen Absichten des Projektes zu vereinen.

© Nord Architekten

© Nord Architekten

Im Erdgeschoss nehmen überhohe Studiowohnungen mit einer Splitlevel-Typologie geschickt den abfallenden Terrainverlauf auf. Die ebenfalls im Erdgeschoss angeordnete Kinderbetreuung, welche zur Grünraumseite orientiert liegt, vermag hochwertige Bezüge zu den Aussenräumen herzustellen. Durch ihre lose räumliche Nutzungsanordnung sind gewisse betriebliche Abläufe etwas eingeschränkt – was allerdings in der Zwischenpräsentation als mögliche Konzession beurteilt wurde. Gewisse Anforderungen, beispielsweise an die Fläche des Innenspielbereichs oder das Verpflegungskonzept, wären in einer Weiterbearbeitung noch aufzunehmen gewesen. In den Obergeschossen finden die Vertikalerschliessungen ihre räumliche Fortsetzung auf den Laubengängen. Mit der Positionierung der Treppen können somit jeweils drei Wohneinheiten pro Geschoss erschlossen werden. Die Wohnungen in den Obergeschossen lassen ein pragmatisches Grundrissprinzip erkennen, bei welchem die Wohn- und Essräume dem belebten Innenhof zugewandt sind und die privateren Zimmer der äusseren Fassadenabwicklung folgen. Die Grundrisstypologie, welche auf dem stringent entworfenen Holzbausystem basiert, wird in den Obergeschossen geschickt für einen flexiblen Wohnungsspiegel genutzt. Die Wohnungsgrössen können über die Anzahl der Zimmer auf der hofabgewandten Fassadenseite verändert werden.

© Nord Architekten

Das stringente, systematische Denken, welches dem Entwurf zugrunde liegt, erhält im Projektvorschlag von Nord Architekten eine hohe Präsenz. Mit viel Feingefühl werden Erfahrungswerte und Visionen für das Westfeld in ein gemeinschaftsorientiertes, nachhaltiges Wohnprojekt «eingegossen ». Die zuweilen etwas dogmatisch anmutende Entwurfsstrategie führt in der Beurteilung zu einem Divergieren: zwischen einer positiv konnotierten Strenge einerseits und einem eng gesetzten Entwurfskorsett andererseits. Die Stärke des Projektes wird dadurch gleichzeitig als das kritische Moment für die Weiterentwicklung beurteilt. Somit kann der Beitrag – trotz der subtilen, kontextuellen Herangehensweise und der hohen architektonischen Qualität – letztlich nicht vollends überzeugen.