Wettbewerbe 12.02.24

Siegerprojekt nach Überarbeitung von Solanellas Van Noten Meister

Pilotprojekt Schlingerweg - Erste Schritte in Richtung Netto Null 2040

Das Kreuzchen für das Ja zum Klimaschutz war mit Leichtigkeit gesetzt. Basel ist sich einig, wir müssen als Gesellschaft etwas bewegen. Welche Auswirkungen dies für unsere Planungs- und Baubranche hat und wie die Zielerreichung «Netto Null» konkret aussehen kann, lässt der vorliegende Wettbewerb erahnen.

Ambitionierte Ausgangslage Die Stimmbevölkerung des Kantons Basel-Stadt hat ein hohes Tempo vorgegeben. Sie unterbietet mit dem kürzlich angenommenen Gegenvorschlag zur Klimaschutzinitiative das «Netto Null» Ziel des Pariser Klimagipfels um dreizehn Jahre. Der Stadtkanton will bereits 2037 den Ausstoss an Treibhausgasemissionen in allen Sektoren auf «Netto Null» senken. Sowohl der Kanton als Bauherr, die Jury, aber auch die Teilnehmenden betreten dabei Neuland, was gemäss dem Kantonsbaumeister Beat Aeberhard, Innovationskraft, Toleranz und Offenheit aller Beteiligten erfordere. Das zu planende Mehrfamilienhaus für kinderreiche Familien mit 5 bis 7 Wohnungen und einem Doppelkindergarten am Schliengerweg nahe zum Horburgpark, bietet einen überschaubaren Rahmen dafür. Die kalkulierbare Komplexität der Aufgabenstellung eignet sich daher grundsätzlich als Lernfeld für «Netto Null».

Lancierung ECO Tool - kein Untergeschoss möglich Zur Bilanzierung der Nachhaltigkeit wurde den Teilnehmenden ein Tool mitgeliefert. Das Eco-Tool wurde in Zusammenarbeit von ZPF Ingenieure mit Immobilien Basel-Stadt entwickelt wird laufend ergänzt und verbessert – zum Zeitpunkt des Wettbewerbs steckte es noch in den Kinderschuhen und war erst als rudimentäre Exceltabelle verfügbar. In der Zwischenzeit wurde das Tool online lanciert und steht allen Planenden gratis zur Verfügung. Es zeigt, dass durch das Verwenden von Re-Use Elementen in Kombination mit einer Photovoltaikanlage tatsächlich eine schnelle Amortisation der grauen Energie möglich wird. Gleichzeitig veranschaulicht der Wettbewerb, dass für das Erreichen der Klimaziele zwingend auf ein Untergeschoss verzichtet werden muss.

Bereinigungsstufe nötig Der Kanton verhalf sich mit einer Bereinigungsstufe von zwei Teams zu mehr Sicherheit und nutzte die Überarbeitung um gleichzeitig Mängel auszumerzen. Das Siegerprojekt hat zwar architektonisch überzeugt, aber vor der Bereinigungsstufe sowohl die Ökobilanz als auch die baurechtlichen Vorgaben nicht erfüllt. Ein Teilnehmer fragt deshalb etwas erbost: "Was denn nun wichtiger sei, «Netto Null» oder ein Bild von Re-Use?" Weiter meint er: "Dazu passt, dass der Vorprüfungsbericht nicht öffentlich ist und nur summarisch im Jurybericht reflektiert wird. Gerade all die Berechnungen sind aber für die gesellschaftsrelevanten Themen des Wettbewerbs von grösster Wichtigkeit. Es geht ja darum, dass wir klimaneutral werden und nicht um neue Bilder, die die alten ersetzen.“ Er stellt dabei die Freiheiten der Jury in der Definition, der Beurteilung und Gewichtung der Kriterien bei der SIA Norm 142 in Frage und meint sie sei eine ‚Carte blanche‘ und damit ziemlich unbefriedigend für die Teilnehmenden. Architekturbasel ist jedoch der Meinung, dass die Jury zugunsten des besten architektonischen Gesamtprojektes genau diese Freiheit der Gewichtung haben muss und begrüsst daher die Bereinigungsstufe im Wissen, dass sie für alle Beteiligten mühsam ist.

Zu grosser Aufwand? Gleichzeitig wurde auch der Aufwand des Wettbewerbs kontrovers diskutiert. Viele der 46 teilnehmenden Büros haben enorme Aufwände betrieben, um die Klimaziele zu erreichen. Die Büros mussten jene Bauteile, die nicht aus dem Bauteilkatalog der Stadt waren, reservieren und gewährleisten, dass diese verfügbar sind. Kaum je hat es einen offenen Wettbewerb gegeben, bei dem so genau konstruiert und so exakte Vorstellungen der Bauteile und deren Fügung aufgezeigt wurden – was bei einem Wettbewerb der kein «Netto Null Ziel» verfolgt auch nicht phasengerecht wäre. Dies in jener Tiefe zu leisten, ist für die Büros äusserst zeitaufwändig. Es gilt daher zu diskutieren, ob die Anforderung «Netto Null» in einem offenen Verfahren sinnvoll ist oder wie ein Verfahren aussehen könnte, die dieser Bearbeitungstiefe Rechnung trägt. Gleichzeitig bleibt unsere Forderung, nach mehr offenen Wettbewerben natürlich bestehen.

Text: Christina Leibundgut, Architektur Basel Die nachfolgenden Beschriebe der einzelnen Projekte stammen aus dem Jurybericht:  

🏆

1. Rang - nach Überarbeitung - L’ECLISSE

Solanellas Van Noten Meister, Zürich

   

Modellbild © Solanellas Van Noten Meister

Die Verfassenden schlagen für das neue Haus eine städtebaulich selbstverständliche simple Setzung am Schliengerweg vor. Der dreigeschossige rechteckige Baukörper mit einem ruhigen Attikageschoss sowie aufgesetztem Satteldach fügt sich gut in das heterogene Umfeld des ehemaligen Gewerbequartiers mit verschiedenen Massstäben und Bebauungstypologien ein. Das einfach geschnittene Volumen wird mit unterschiedlichem Öffnungsverhalten und mit einer differenzierten Materialisierung in der Vertikale gegliedert.

Die wiederverwendeten Bauteile sowie die PV-Anlage bestimmen den architektonischen Ausdruck © Solanellas Van Noten Meister

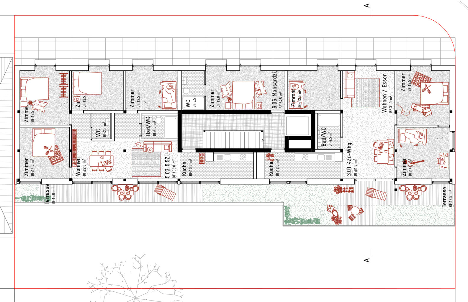
Erdgeschoss © Solanellas Van Noten Meister

1. + 2. Obergeschoss © Solanellas Van Noten Meister

3. Obergeschoss © Solanellas Van Noten Meister

Es ist den Verfassenden bei der Weiterbearbeitung gelungen, die teilweise Unterkellerung zu vermeiden und die Fundation mittels Re-Use-Bauteilen zu bewerkstelligen. Dies wird sehr begrüsst und gewährleistet die Einhaltung der geforderten Amortisation der Erstellungsenergie in- nerhalb von zehn Jahren. Das dadurch für die Aufnahme der Nebenräume notwendig gewordene Steildach ist städtebaulich möglich, als problematisch wird der für die Vertikalerschliessung notwendige Einschnitt auf der Strassenfassade erachtet. In diesem Bereich ist der Wechsel auf eine innenliegende Treppe zu prüfen.

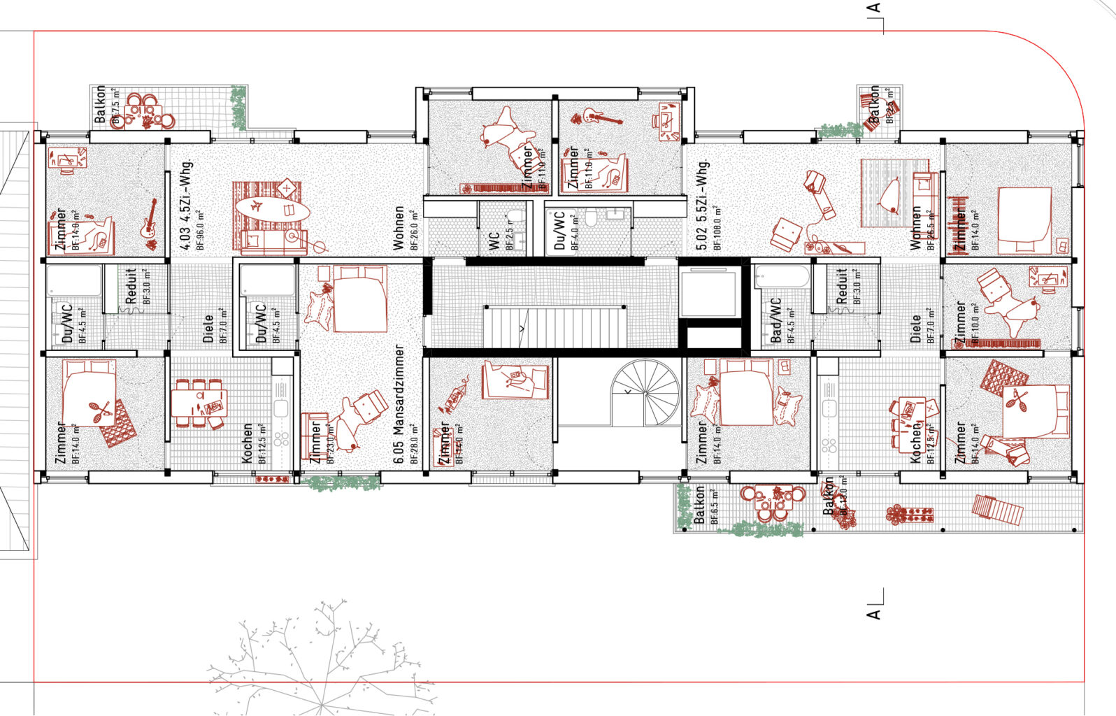
Dachgeschoss © Solanellas Van Noten Meister

Querschnitt © Solanellas Van Noten Meister

Wettbewerb vor der Überarbeitung © Solanellas Van Noten Meister

Das etwas zu unspezifische Erscheinungsbild wurde in der Überarbeitung sehr stark in Richtung eines aus (wiederverwendeten) Einzelteilen zusammengesetzten Hauses weiterentwickelt. Dies wird grundsätzlich begrüsst – allerdings ist es den Verfassenden nicht ganz gelungen, aus diesen Einzelteilen ein integrierendes Ganzes zu ent- wickeln. Das Haus wirkt nun in verschiedenen Bereichen etwas zu sehr bricoliert; insbesondere die aus den über- dimensionierten Trägern des Lysbüchel-Parkings zusam- mengesetzten kleinen Balkone im Westen und der südliche Dachabschluss mit einem expressiven Solarpaneel ver- bleiben massstabslos und fremd. Begrüsst wird, dass sich das Gebäude auch zum Rheinweilerweg hin ausrichtet.
Über einen offenen Durchgang werden die Wohnungen gut adressiert und es wird eine Durchlässigkeit auf Erdge- schossebene hergestellt. Die Treppe selbst funktioniert als Ort der Begegnung und ermöglicht Ausblicke in die Nach- barschaft. Auch die beiden Kindergärten werden zweiseitig über zwei geschlossene Durchgänge vom Schliengerweg zum Hof durchlässig erschlossen. Beide Bereiche sind räumlich gut organisiert und versprechen eine attraktive Nutzung.

Poetische Modellbilder veranschaulichen die Inszenierung der wiederverwendeten Parkhausrippendecken © Solanellas Van Noten Meister

Sehr geschätzt werden die gut strukturierten und flexibel bespielbaren Wohnungsgrundrisse. Diskutiert wurde hier die zentrale Anordnung der Küche in der nördlichen Wohnung, die für die Möblierung der Wohnungen einschränkend wirkt. Glaubwürdig wird dafür die Flexibilität durch unterschiedliche Anordnungsmöglichkeiten der Kü- che aufgezeigt. Die Wohnungen sind für eine Vielzahl von Wohnkonstellationen gut geeignet und weisen einen hohen Nutzwert auf. So funktioniert in diesem leistungsfähigen System auch die aufgrund der neuen Anordnung des Balkons notwendige Spiegelung der nördlichen Wohnung in der Überarbeitung gut. Die vorgegebenen Wohnungsgrössen werden eingehalten. Weniger überzeugend ist die Grundrisskonstellation der Attikawohnungen. Hier nehmen die zentral angeordneten Bäder viel Raum ein, sodass der Wohnraum schwierig zu möblieren scheint.

Überraschend neu und kräftig ist die innenräumliche Stimmung, die durch die Wiederverwendung der Tragstruktur des Parkhauses auf dem Lysbüchelareal evoziert wird. Die äusserst intelligente und präzise Fügung verschiedener Elemente des Bauteilkatalogs schafft eine einzigartige Wohnatmosphäre. Die sehr urbanen und gleichzeitig wohnlichen Lebensmöglichkeiten werden in kleinen Mo- dellbildern überzeugend dargestellt.

Das Projekt fasziniert durch die Fülle vieler präziser, funktionaler und konstruktiver Überlegungen und deren dichte und überzeugende Darstellung in Text, Plänen, Schemen und Modellen, die ein ökologisch, soziologisch und architektonisch nachhaltiges Haus erwarten lassen.

 

2. Rang - nach Überarbeitung - STROOO

Lorenz Architekten, Basel

Modellbild

    Im heterogenen Umfeld des Horburgquartiers fügt sich der Neubau städtebaulich gut in die Umgebung ein; mehrere Fassadenbegrünungselemente strukturieren den Baukör- per, ebenso das zurückgesetzte Attikageschoss mit seinen Vor- und Rücksprüngen. Die Fassadenbegrünung reicht über alle Geschosse; sie dient sowohl als natürlicher Sonnenschutz wie auch als grünes vertikales Element im Strassenbild und leistet somit einen Beitrag zum örtlichen Mikroklima. Die Kleinteiligkeit der Fassade sowie die aufwendige Kubatur der ersten Abgabe wurden in der Überarbeitung gekonnt reduziert und die gewünschte Rau- oder Robustheit erzielt. Die Fassade vermittelt weiterhin das Bild des gehobenen Wohnungsbaus und wird nicht auf den ersten Blick mit günstigem Wohnraum assoziiert. Dieser Umstand wird in der Jury kontrovers diskutiert. Einigkeit besteht hin- gegen darin, dass der Baukörper an Klarheit gewonnen hat.

Zu wenig Reuse im Ausdruck für ein Pilotprojekt © Lorenz Architekten

Markant sind die Ziegelmauern des Bestandes im Erdgeschoss, die sich mit Selbstverständlichkeit in den Neubau einfügen. Durch den Einbezug der Bestandsgebäude werden Synergien zum Nachbargebäude genutzt. Die mineralische Materialisierung der Erdgeschossfassade wird über einen Kalkputz in den Obergeschossen weitergeführt, als Teil der elementierten Strohballendämmung der Fassade.

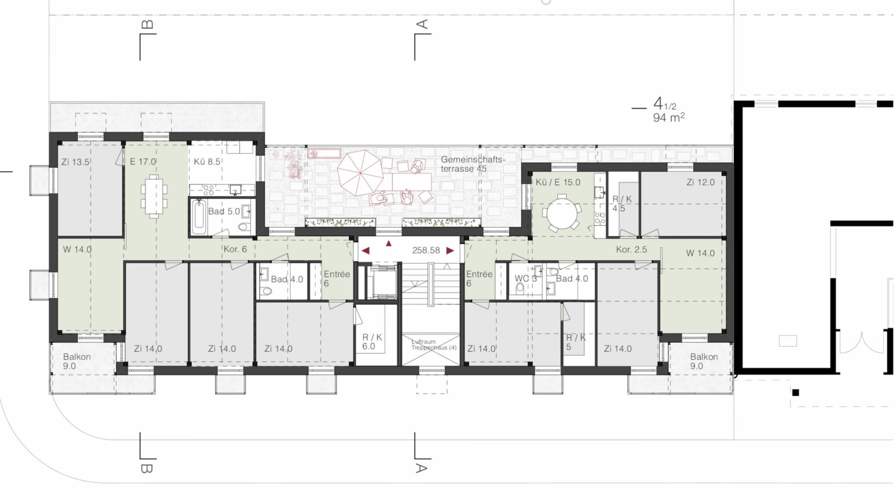
Erdgeschoss © Lorenz Architekten

Das Gebäude ist überwiegend aus wiederverwendeten Materialien des Bauteilkatalogs oder aus anderen Quellen erstellt, ebenso aus Materialien, die nach Ende der Nutzung kompostierbar sind. Der kreative und gekonnte Einsatz der vorhandenen Materialien führt zu einem spezifischen Charakter im architektonischen Ausdruck – ohne in Beliebigkeit und Zufälligkeit zu enden. Die Materialisierung der Tragstruktur, des Fassadenpakets mit Lehm, Stroh und Kalk, sowie das Energie- und Haustechnikkonzept sind stringent und schlüssig durchgearbeitet. Der thermische Raumkomfort wird als hoch eingeschätzt. Die Autorenschaft zeigt ein umfassendes Verständnis für die Aufgabenstellung und bietet durchdachte Lösungen an. Daher wird die grosse Innovationskraft des Projekts gewürdigt.

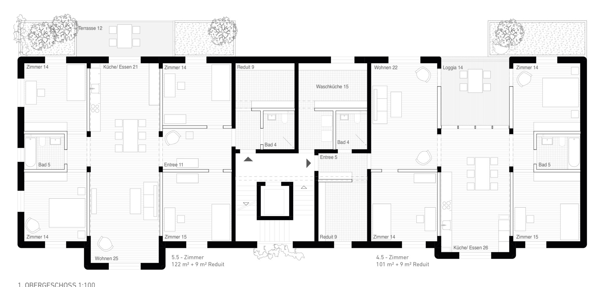
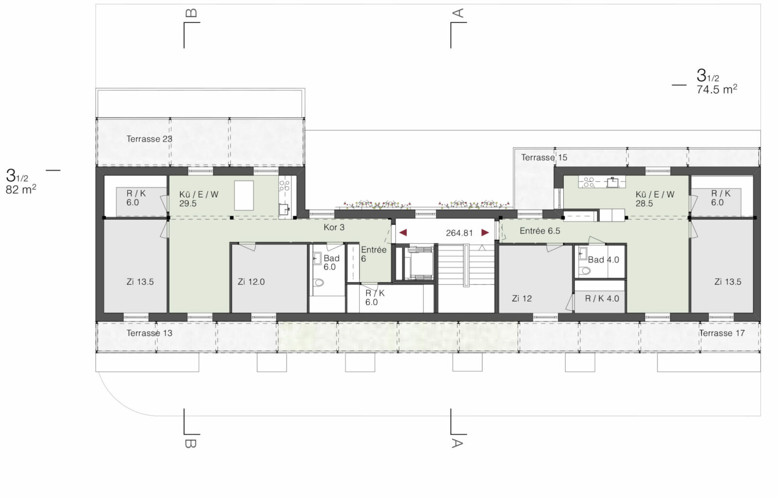
1. Obergeschoss © Lorenz Architekten

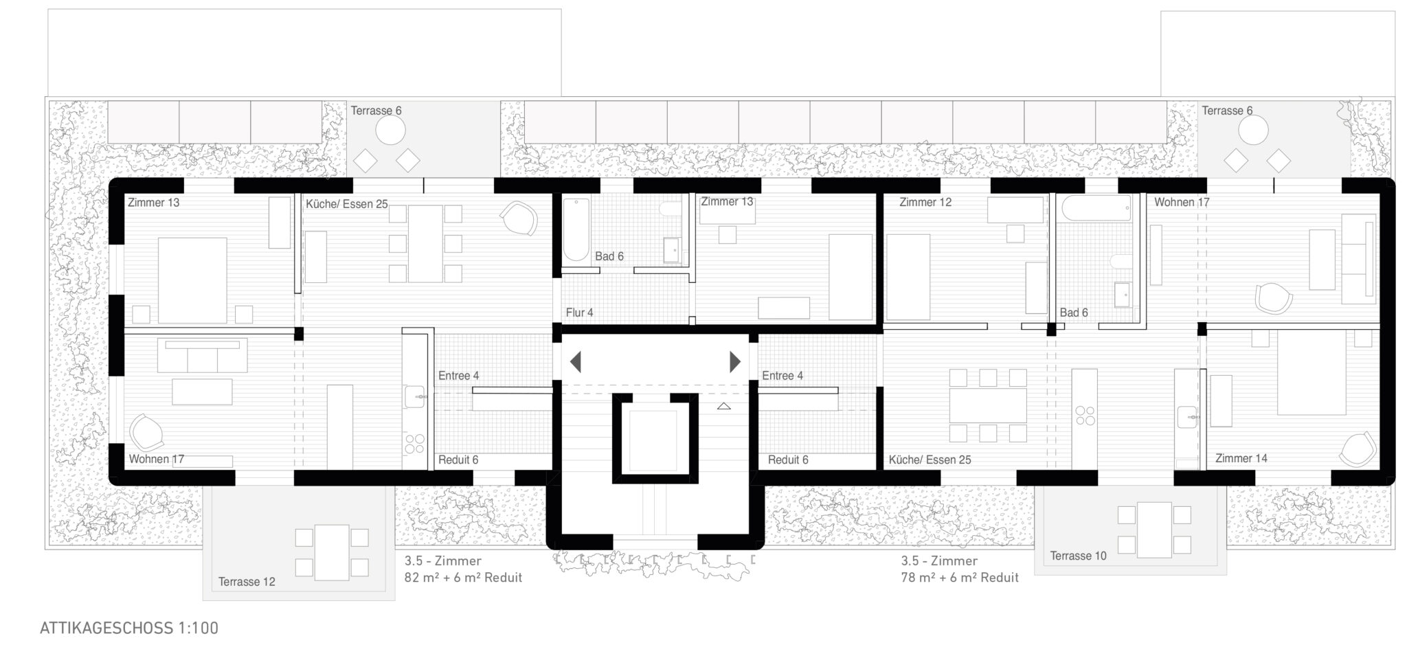
Attikageschoss © Lorenz Architekten

Es werden neu sechs Wohnungen mit drei variierenden Wohnungsgrössen für unterschiedliche Nutzerkonstellationen angeboten. Die Nutzungsvarianten inklusive einem guten Steigzonenkonzept sind überlegt und überzeugend. Die Wohnungsgrundrisse zeigen allerdings Defizite in Bezug auf die funktionalen Abläufe und die räumliche Gliederung. Das offene Treppenhaus wurde gegenüber dem Ursprungsprojekt verschoben und geschlossen, wodurch nun Einbussen als Kommunikations- und Begegnungsort entstehen.Das Raumprogramm der Wohnungen wurde erfüllt, jedoch sind die Wohnungen des Vierpersonenhaushalts weiterhin zu gross dimensioniert. Begrüsst wird der Verzicht auf den Keller, der durch ausreichend grosse Reduits gut kompensiert wird. Insgesamt lässt die Grundrissqualität der Wohnungen weiterhin zu wünschen übrig. Insbesondere die dunkle Eingangssituation zu den Wohnungen und Kinder- gärten im Erdgeschoss und der knapp dimensionierte Eingangsbereich in die grossen Wohnungen ist Gegenstand kontroverser Diskussionen.

Grosszügiger Loggiaraum als prägendes Element der Wohnungen © Lorenz Architekten

Das Raumprogramm der Kindergärten wurde erfüllt und der gedeckte Zugang wird positiv bewertet. Allerdings zeigen sich auch im Kindergarten Defizite in der Grundrissorganisation. Die Anordnung der zentralen Zugänge über die knapp bemessene Eingangshalle, in welcher sich auch noch die Velos befinden, wird von der Jury nicht verstanden. Die Kombination aus einer Strohballenständerwand und den Re-Use-Betonelementen, welche teilweise gedreht an- geordnet sind, ist innovativ. Dadurch wird die Aufbauhöhe reduziert und die Strohdämmung kann, u.a. auch im Dachbereich, in den Re-Use-Betonrippenelementen angeordnet werden. Faszinierend an diesem Konzept ist, dass das Ge- bäude selbst wieder verwertet oder Teile davon kompos- tiert werden können.

Innovative Konstruktionsweise mit umgekehrten Rippendecken und Fassade aus Strohelementen © Lorenz Architekten

Das Projekt widmet sich dem Thema Wiederverwendung mit grosser Konsequenz und Innovationskraft. So wird die Idee der kompostierbaren Elemente sehr mutig und überzeugend umgesetzt. Es leistet einen konsequenten und überzeugenden Beitrag zur Aufgabenstellung. Der Einsatz von biogenen und wiederverwendeten Materialien führt zu einem spezifischen Charakter im architektonischen Ausdruck. Es gelingt den Planenden, die bestehenden und neuen Bauteile zu einem überzeugenden Neuen zusammenzufügen. Der kreative, aber auch gekonnte Umgang mit den unterschiedlichen Materialien wird in der Anwendung glaubhaft bewiesen. Die Arbeit strahlt eine hohe Innovationskraft aus und legt eine konsequente konstruktive Haltung an den Tag. Die Eigenständigkeit der Arbeit und die Konsequenz sind überzeugend, auch wenn Defizite in der Funktionalität und den Qualitäten der Grundrisse bestehen. Die Arbeit zeichnet sich durch die gesamtheitliche Betrachtung der Aufgaben- stellung aus und erzielt eine hervorragende energetische Amortisation. Das von der Ausloberin gesetzte Ziel «Netto Null bis 2040» wird in wenigen Jahren erreicht.

3. Rang - CABANE

schnell&co architekturlabor, Zürich

 

Modellbild © schnell&co architekturlabor

Die Verfassenden komplettieren die Gebäudezeile am Schliengerweg mit einem auffälligen, industriell anmutenden Gebäude, welches mit seinen zahlreichen Vor- und Rücksprüngen, Erkern und Balkonen beinahe als gewachsene Struktur gelesen wird. Mittels Attikageschoss und diversen Versätzen wird auf die teilweise enge Nachbarschaftssituation reagiert. Die Fassade zum Rheinweilerweg wird, abgesehen von zwei untergeordneten Öffnungen, geschlossen ausgebildet, während die Strassenfassade zum Schliengerweg und die Hoffassade von grossen, gesprossten Fensterflächen geprägt sind. Es kommt eine breite Aus- wahl von Materialien aus dem Bauteilkatalog zum Einsatz, welche mittels heller Farbgebung zu einem Ganzen zusammengefasst werden.

Aussenbild Cabane © schnell&co architekturlabor

Querschnitt © schnell&co architekturlabor

Das verhältnismässig komplexe Volumen mit seinen zahlreichen Vor- und Rücksprüngen folgt auf den ersten Blick der Logik der Re-Use-Thematik. Bei genauerer Betrachtung zeigt sich aber leider, dass es einem hohen Gestaltungswillen entspringt und mit aufwendigen Details und Statik erkauft werden muss. Insofern wirkt das kleine Gebäude überinstrumentiert und wird dadurch letztlich auch städtebaulich schwer lesbar. Die Wahl zahlreicher Materialien aus dem Bauteilkatalog hingegen ist vorbildlich, der Einsatz der Farbe als zusammenfassendes Element schlüssig.

Strukturmodell © schnell&co architekturlabor

Die Wohnungen und die beiden Kindergärten werden von unterschiedlichen Standorten her dezentral erschlossen. Durch die zentrale Erschliessung der Wohnungen mit einem mittig angeordneten Durchgangsraum gelangt man vom Schliengerweg in den Innenhof, was die Doppelnutzung des Gartens durch die Bewohnenden selbstverständlich erscheinen lässt und die Durchlässigkeit des Gebäudes erhöht.

Grundriss 1. Obergeschoss © schnell&co

In den Obergeschossen befinden sich sechs Familienwohnungen. Die beiden Wohnungen im ersten Obergeschoss sind als Geschosswohnungen ausgebildet, die vier Wohnungen im zweiten und dritten Obergeschoss als Maisonettewohnungen.

Grundriss 2. Obergeschoss - Der Mehrwert der Maisonett-Anordung erschliesst sich nicht, die Wohnungen wären als Geschosswohnungen grosszügiger in Erscheinung getreten © schnell&co architekturlabor

Innenbild Maisonette © schnell&co architekturlabor

Die Adressierung der beiden Kindergärten und der Wohnungen erscheint sehr durchdacht und selbstverständlich. Die Grundrissdisposition des Erdgeschosses wird insgesamt sehr positiv bewertet, insbesondere die Durchlässigkeit zum Garten hin. Die Wohnungsgrundrisse wirken verspielt, man wähnt sich auch hier in einer Umbausituation. Begrüsst wird, dass alle Nassräume an der Fassade angeordnet werden. Die teilweise mitten im Raum stehenden Stützen mögen räumlich interessant sein, stellen aber hinsichtlich Möblier- und Nutzbarkeit eine Hypothek dar. Die vier Maisonettewohnungen bieten interessante Raumfolgen, werden jedoch dem Anspruch von günstigem Wohnungsbau nicht gerecht.

Modellbild des Küchenraums © schnell&co architekturlabor

Die Funktionsweise des Tragwerks ist gut nachvollziehbar. Der auskragende Teil der Decken ist elegant gelöst, dennoch verliert das Tragwerk, auch bei Verwendung von Re- Use-Stahlträgern, an Effizienz. Die Räume werden von Re- Use-Rippendeckenelementen überspannt.

Fassadenansicht © schnell&co architekturlabor

Der Fassadenaufbau ist interessant. Der vorgeschlagene Aufbau der Brüstungen wird vermutlich so nicht funktionieren und müsste überarbeitet werden. Der Deckenaufbau ist effizient und die Funktionsweise ebenso wie die Trennbarkeit der Schichten gut nachvollziehbar. Der Dachaufbau ist aufgrund der erforderlichen Flachdachabdichtung aus EPDM oder Bitumen und wegen der daraus folgenden An- forderungen an die Dämmung nicht besonders nachhaltig.

Konstruktion © schnell&co architekturlabor

CABANE komplettiert die Gebäudezeile am Schliengerweg mit einer aufwendigen, allseitig unterschiedlich reagierenden Gebäudestruktur. Während die erdgeschossige Gliederung und Erschliessung als vorbildlich wahrgenommen werden, erscheinen die Grundrisse der Wohnungen aufwendig und in ihrer Nutzbarkeit teilweise eingeschränkt. Die Ausei- nandersetzung mit Themen wie der Demontierbarkeit und der Hitzeresilienz des Gebäudes sowie mit Betriebsthemen ist klar erkennbar. Die Re-Use-Thematik ist intensiv in die Projektierung eingeflossen. Die Lust an der Wiederverwendung von Bauteilen ist im gesamten Entwurf spürbar. Insgesamt wirkt der Vorschlag aber etwas überinstrumentiert. Die Zielvorgaben der Bauherrschaft hinsichtlich rechneri- scher Amortisation der grauen Energie werden gut erreicht.  

4. Rang - JOKER

ARGE Sedano Architecture + Maker Architecten, Basel

Modellbild Joker

Aus Gründen der Nachhaltigkeit und der Ressourceneffizienz schlägt das Projekt JOKER einen sehr kompakten, rationalen Baukörper vor, der mit seiner industriellen Anmutung auf die Heterogenität des Quartiers reagiert und einen Brückenschlag zwischen Wohnbebauung und an- grenzendem Gewerbe schafft. Die Ausbildung einer räumlichen Fuge, im Erdgeschoss mit Velo- und Geräteräumen, im ersten und zweiten Obergeschoss mit Balkonen programmiert, die sich zwischen neuem Baukörper und der im Norden liegenden Kapelle St. Theresia aufspannt, zeugt von einem respektvollen Umgang mit dem Bestand. Auch wenn dadurch möglichen zukünftigen Entwicklungen Rechnung getragen wird, ist die Qualität der Nordbalkone zu hinterfragen. Der Verzicht auf ein Untergeschoss unter- streicht den konsequent nachhaltigen Ansatz der Verfassenden.

Aussenbild © ARGE Sedano Architecture + Maker Architecten

Die Fassaden sind durch eine Vielzahl von wiederverwen- deten Elementen (Fenster, farbige Trapezbleche, Holzverschalungen der Balkone) sowie PV-Elemente oberhalb der Fenster gestaltet. Die Südfassade zum Rheinweilerweg, die durch eine hohe, aber ausgewogene Transparenz einen starken Bezug zur Nachbarschaft schafft, wirkt einladend und wird als positiv bewertet. Die als Bandfassaden aus- gebildeten Längsseiten, die durch eine gewisse Flexibilität auf die ungewisse Verfügbarkeit der Bauteile reagieren können, vermögen aufgrund der wenig gegliederten Gebäudekubatur und der Vielzahl an unterschiedlichen Mate- rialitäten nicht in gleichem Masse zu überzeugen.

Die Erschliessung der beiden Kindergärten erfolgt über den Schliengerweg bzw. den Rheinweilerweg. Die Gruppenräume binden beide Kindergärten in natürlicher Weise an den begrünten Hof an. Die Wohnungen erhalten eine Adresse am Schliengerweg. Über die «Fuge» wird den Bewohnenden auch ausserhalb der Kindergartenzeiten Zu- gang zum Garten ermöglicht.

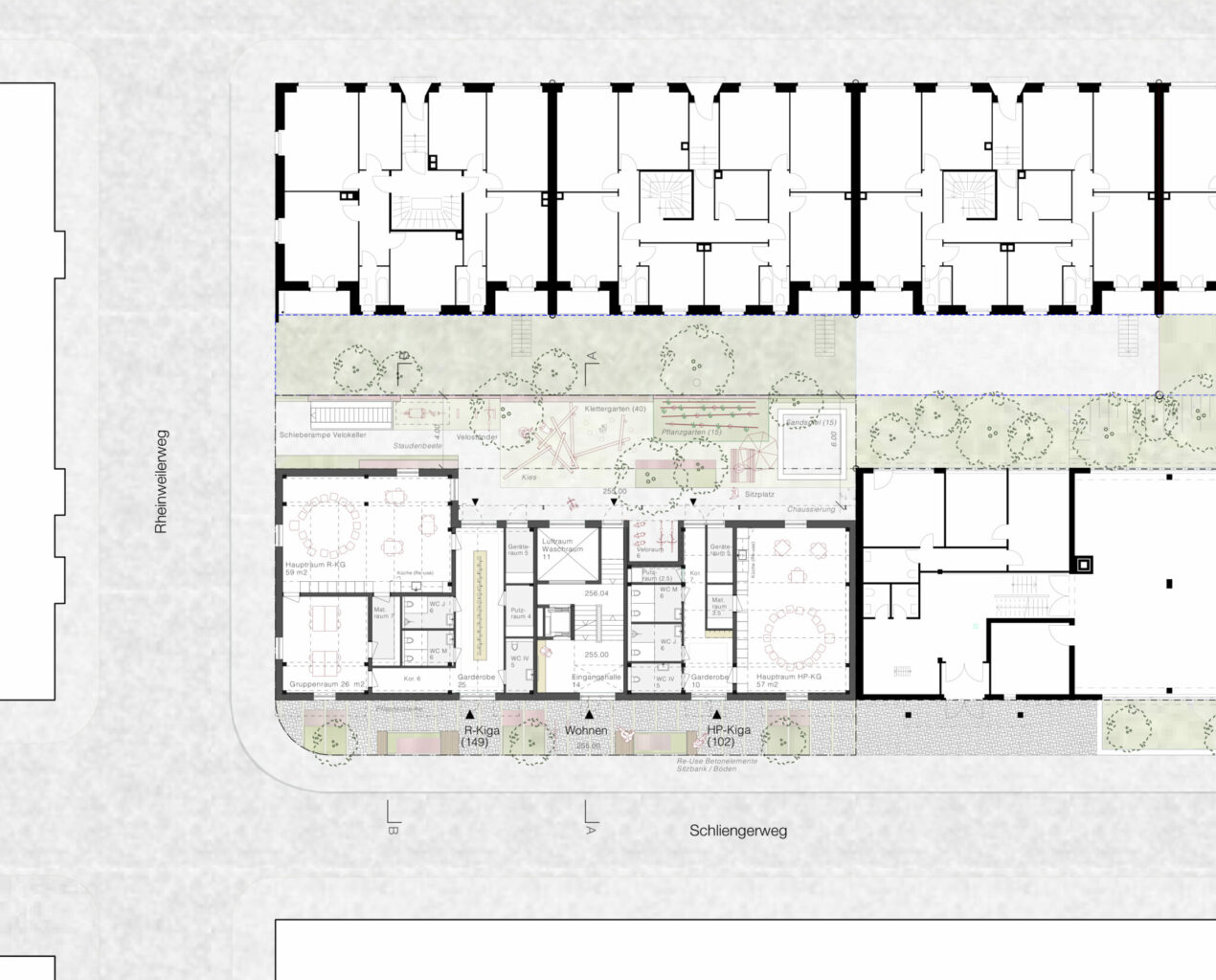
Grundriss Erdgeschoss © ARGE Sedano Architecture + Maker Architecten

In den oberen Geschossen befinden sich jeweils zwei grosse Wohnungen, die über flexible Raumzonen und unterschiedliche Grundrisskonfigurationen verfügen. Sie ermöglichen überdies auch einfach zukünftige Nutzungsänderungen. Ein JOKER-Zimmer, das sich hinter dem Erschliessungskern befindet, lässt sich flexibel den Wohnungen zuschalten. Auch wenn das hohe Mass an Adaptionsfähigkeit im Sinne der verlängerten Nutzungsdauer von Gebäuden ausdrücklich begrüsst wird, so erfüllen die Wohnungsgrundrisse nicht die Anforderungen der Bauherrschaft in Bezug auf den geforderten Wohnungsmix bzw. die Flächeneffizienz. Der zentrale WC-Block, der die Wohnungen zoniert, wirkt etwas überdimensioniert, die sehr grosszügigen Wohnungen werfen Fragen in Bezug auf das Schaffen von bezahlbarem Wohnraum auf. Gleiches gilt für die sehr grosszügig gestalteten Balkone.

Grundriss 1. Obergeschoss © ARGE Sedano Architecture + Maker Architecten

Grundriss Dachgeschoss © ARGE Sedano Architecture + Maker Architecten

Innenbild © ARGE Sedano Architecture + Maker Architecten

Das Tragwerk ist klar und effizient und weist einen hohen Re-Use-Anteil auf. Die Räume werden mit den Re-Use-Rip- pendeckenelementen überspannt, welche auf Stahlträgern lagern. Die Abtragung der vertikalen Lasten erfolgt über die Stützen im Fassadenbereich. Die horizontale Ausstei- fung wird über den Treppenhausbereich gewährleistet.

Konstruktion und Ausdruck © ARGE Sedano Architecture + Maker Architecten

Der hinterlüftete Aufbau der Dachkonstruktion ist inno- vativ. Die Re-Use-Rippendecken sollten nicht direkt bewittert werden. Ein möglicher Umgang, um dieses Problem zu lösen, wäre die Bedeckung der ganzen Dachfläche durch die vorgeschlagene Solaranlage als wasserführende Schicht.

JOKER propagiert einen nachhaltigen Ansatz, der auf wichtige Themen wie Suffizienz, Re-Use von Bauteilen, Reduktion von nicht erneuerbaren Primärrohstoffen, Flexibilität oder auch Systemtrennung fokussiert, die im Detail allerdings nicht immer konsequent umgesetzt werden. Das kompakte Gebäudevolumen, der Verzicht auf ein Untergeschoss sowie die konsequente Verwendung von Re-Use- Bauteilen wird ausdrücklich begrüsst, die Ausformulierung und die architektonische Gestalt überzeugen leider am Ende nicht. Die Grundrisse verfolgen gute Ansätze, hätten jedoch stärker auf die im Raumprogramm geforderten An- forderungen reagieren dürfen.

 

5. Rang - LIZZY

Studio Rosa, Wasel Wolf + Architekten, Basel

Modellbild LIZZY

Das Planerteam reagiert mit einer einfachen Volumetrie und zurückhaltender Formensprache auf das heterogene Umfeld des Wohnquartiers. Während das Gebäude zum Schliengerweg als dreigeschossiges Mehrfamilienhaus mit Giebel in Erscheinung tritt, wird der Baukörper hofseitig zurückgestuft, was im Dachgeschoss die Ausbildung einer durchgehenden und attraktiven Attikaterrasse ermöglicht. Die Fassade zum Schliengerweg wird symmetrisch ausgebildet, die grossflächigen Wohnungsfenster werden südlich und nördlich zu zwei Gruppen zusammengefasst, während mittig eine zentrale Achse eingeführt wird, in welcher sich die opaken Verglasungen der Abstellräume und der erdgeschossige Eingang zu den Veloabstellräumen befinden. Die Verfassenden verfolgen den Ansatz, die unterschiedlichen Re-Use-Bauteile an der Fassade mittels des gezielten Einsatzes von Farbe zu einem Ganzen zusammenzufassen.

Aussenbild © Studio Rosa, Wasel Wolf + Architekten

 Das einfache Gebäudevolumen mit den vorgehängten Balkonen am Schliengerweg ist effizient und erscheint der Aufgabenstellung angemessen. Die einfache Idee des Zusam- menfassens unterschiedlicher Materialien mittels Farbe wird von der Jury als interessant angesehen. Die Fassade des Gebäudes wirkt leicht und fügt sich in die Umgebung ein. Die Symmetrie der Hauptfassade mit ihren mittig angeordneten Abstell- und Veloräumen hingegen erscheint nicht ganz schlüssig. Bedauert wird ferner, dass das Gebäude, abgesehen von zwei runden Badezimmeröffnungen, nicht auf den Rheinweilerweg reagiert. Das Gebäudeprofil mit dem angehängten Eingangsvolumen des Kindergartens und dem hofseitigen Attikarücksprung wirkt an dieser Stelle etwas beliebig.
Das Gebäude beinhaltet sechs 3.5- bis 5.5-Zimmer-Wohnungen sowie die beiden Kindergärten im Erdgeschoss. Durch die geschickte Anordnung der Nebenräume kann vollständig auf den Bau eines Untergeschosses verzichtet werden. Der Hauptzugang für die Wohnungen erfolgt gebäudemittig ab dem Schliengerweg – etwas versteckt neben einem Veloabstellplatz. Die Wohnungsgrundrisse gliedern sich in jeweils zwei gleich grosse Tag- und Nachtbereiche. Der dem Eingang angegliederte Wohn- und Essbereich wird wiederum durch eine mittig liegende Kernzone in zwei Teile unterteilt. Die an den Tagbereich angegliederten Schlafzimmer werden durch einen unbelichteten Korridor erschlossen. Die Kindergärten im Erdgeschoss werden jeweils separat erschlossen, im Süden durch einen dem Vo- lumen vorgesetzten Garderoben- und Eingangsbereich und am Schliengerweg über die Vorgartenzone.

Grundriss Erdgeschoss © Studio Rosa, Wasel Wolf + Architekten

Die Wohnungsgrundrisse wirken insgesamt schlüssig und gut organisiert. Die angegliederten Abstellräume bieten einen grossen Mehrwert. Der Verzicht auf das Unterge- schoss wird sehr begrüsst; kritisiert wird hingegen, dass sich die Wohnungen im Norden und Süden, trotz unter- schiedlicher Ausgangslage, nicht voneinander unterschei- den. Die dunkle Korridorsituation der Schlafräume hätte mindestens zum Rheinweilerweg mittels Öffnungen deutlich aufgewertet werden können. Die Kindergartengrund- risse sind funktional und weisen durch die Zweiseitigkeit hohe Qualitäten auf.

Grundriss OG © Studio Rosa, Wasel Wolf + Architekten

Grundriss Dachgeschoss © Studio Rosa, Wasel Wolf + Architekten

Innenbild © Studio Rosa, Wasel Wolf + Architekten

Dachwohnungen © Studio Rosa, Wasel Wolf + Architekten

 

Querschnitt © Studio Rosa, Wasel Wolf + Architekten

Das Tragwerk ist klar strukturiert und sehr effizient. Das Projekt zeichnet sich durch eine konsequente Zirkularität aus. Das Gebäude hat nicht nur einen hohen Re-Use- Anteil, sondern es lässt sich auch wieder zerlegen und die Bauteile lassen sich zerstörungsfrei weiterverwenden.

Konstruktion © Studio Rosa, Wasel Wolf + Architekten

Die Räume werden mit Re-Use-Rippendeckenelementen überspannt, welche auf BSH-Wänden lagern. Dieser Ansatz ist sehr interessant, da die BSH-Wände gleichzeitig für den vertikalen Lastabtrag und den Schall- und Brandschutz genutzt werden können.

Reuse Konzept © Studio Rosa, Wasel Wolf + Architekten

LIZZY fügt sich mit einem einfachen Baukörper gut ins heterogene Umfeld ein. Die sauber organisierten Wohnungs- und Kindergartengrundrisse wirken durchdacht und der konsequente Verzicht auf die Ausbildung eines Untergeschosses wird begrüsst. Die Auseinandersetzung mit dem Thema Re-Use ist schlüssig und engagiert. Die grosse Fläche an PV-Modulen ermöglicht es, die graue Energie des Gebäudes rechnerisch innert 6.5 Jahren zu amortisieren. Leider wirken die Fassadengestaltung und die Längsfassade entlang des Rheinweilerwegs insgesamt etwas beliebig, was dem Gebäude etwas Unspezifisches verleiht.

 

6. Rang - POLYOMINO

Buchner Bründler, Basel

 

Modellbild POLYMINO

Ein einfaches Volumen führt die Bebauung am Schliengerweg fort und formt an der Kreuzung zum Rheinweilerweg mit einem Gerüst aus Photovoltaikmodulen und einer offenen Dachhalle einen zeichenhaften Abschluss. Der Baukörper fügt sich in seiner simplen Setzung ohne Vor- und Rücksprünge gut in die Bebauungsstruktur des Quartiers ein, der Massstabssprung zur angrenzenden Kirche wirkt aber etwas unvermittelt. Die Erscheinung des Baukörpers ist durch verschiedene Themen von Nachhaltigkeit ge- prägt: eine vegetative Fassadenbegrünung, Photovoltaik- module als hinterlüftete Fassadenverkleidung und die als Dacheindeckung wiederverwendeten Betonelemente des Parkhauses auf dem Lysbüchelareal vermitteln ein sehr spezifisches Bild. Der starke Auftritt wirkt am Ort aller- dings etwas gar eigenständig und vermag den Dialog mit den umgebenden Bauten nicht richtig aufzunehmen. Der Vorgarten und die Hoffläche sind unter den Aspekten von Hitzeresilienz und Schwammstadt schön und gebrauchs- tauglich organisiert. Aus diesen Gesichtspunkten und aus Sicht des Vermeidens von grauer Energie ist auch der Verzicht auf ein Untergeschoss überzeugend.

Schwebendes Rippendeckendach © Buchner Bründler

Das Gebäude ist mit einem mittigen Treppenhaus zweispännig organisiert. Dieses erlaubt eine klare Adressierung zur Strasse und einen zusätzlichen Zugang zum Hof. Der Eingang, der unter der Treppe hindurch erfolgt, erscheint etwas gezwängt. Im Erdgeschoss sind die beiden Kindergärten zweckmässig mit jeweils einem eigenen Zugang von der Strasse und einem Ausgang zum Hof angeordnet.

Grundriss Erdgeschoss © Buchner Bründler

Kindergartenraum © Buchner Bründler

Die Wohnungen sind zugunsten einer guten Durchlüftung, einer einfachen Medienerschliessung und der Integration des «Kellerabteils» optimiert. Darunter leidet die Funktionalität der Wohnungen etwas: die Eingangsdielen wirken recht beengt, das Badezimmer ist nur durch den Wohnraum und an der Küche vorbei zugänglich und alle Schlafzimmer sind unmittelbar zum Wohn- und Essbereich angeordnet. In der Dachwohnung wird dieser Eindruck durch einen längeren Gang, kleine Zimmer und fehlende Fenster zur Strassenseite noch verstärkt.

Grundriss 2. Obergeschoss © Buchner Bründler

Grundriss 1. OG © Buchner Bründler

Die räumliche Qualität der ikonografischen gemeinschaftlichen Dachterrasse mit einer Erschliessung an der Waschküche vorbei sowie der an Bauten des japanischen Architekten Shinohara erinnernde architektonische Ausdruck wurde im Beurteilungsgremium kontrovers diskutiert.

Grundriss Dachgeschoss © Buchner Bründler

Querschnitt © Buchner Bründler

Das Tragwerk ist klar strukturiert, sehr effizient und weist einen sehr hohen Re-Use-Anteil auf. Die Räume werden mit den Re-Use-Rippendeckenelementen überspannt, welche auf Stahlträgern lagern. Die Abtragung der vertikalen Lasten erfolgt über die Stützen im Fassadenbereich. Die ho- rizontale Aussteifung wird über den Treppenhausbereich gewährleistet.

Recycling und Reuse-Konzept © Buchner Bründler

Die konstruktiven Überlegungen folgen überzeugend den Prinzipien einer einfachen und direkten Lastabtragung, einer robusten Materialisierung und der Integration von wiederverwendeten Bauteilen. Zu diskutieren gibt die Ein- deckung des Daches mit den wiederverwendeten Spann- betonelementen des Lysbüchel-Parkings. Sowohl die Art der Abdichtung als auch die Form der Lastabtragung bleiben etwas unklar und stellen die starke Zeichenhaftigkeit etwas infrage.

Konstruktion © Buchner Bründler

POLYOMINO überzeugt sowohl durch die Integration von Bauteilen des Kataloges als auch durch die Überlegungen zur Nachhaltigkeit zusätzlicher Bauteile. Zusammen mit einem durchdachten Low-Tech-Haustechnikkonzept, dem Verzicht auf eine Unterkellerung und der Integration einer Fassadenbegrünung stellt der Vorschlag einen stringenten Beitrag auf vielen Ebenen dar. Weniger überzeugend sind die Qualität der Wohnungen und die atmosphärische Integ- ration des neuen Hauses ins Quartier. 
   

7. Rang - BRICOLAGE

Zumstein Architekten, Zürich

 
     

Modellbild Bricolage

Das Projekt BRICOLAGE reagiert mit einer grossen Geste und einer eher aufwendigen Formensprache auf das heterogene Umfeld des Wohnquartiers. Das dreigeschossige Mehrfamilienhaus tritt mit drei unterschiedlich materialisierten Schichten in Erscheinung: der Sockel mineralisch aus Terrablocks, Alu-Fassaden in den beiden oberen Ge- schossen sowie ein aufgesetztes Dachgeschoss. Die Fassade zum Schliengerweg ist symmetrisch ausgebildet, der Baukörper entwickelt sich hofseitig ab dem ersten Ober- geschoss U-förmig und springt hofseitig im Dachgeschoss zurück. Die Wohnungen werden um den gemeinsamen Hof angeordnet und reagieren so auf die enge Nachbar- schaftssituation.

Aussenbild © Zumstein Architekten

Der engagierte Einsatz wiederverwendbarer Materialien wird begrüsst – ebenso der Einsatz von Holz und Lehm. Die durchaus gewollte Heterogenität in der Materialisierung wird durch die Vor- und Rücksprünge in der Gebäude- kubatur verstärkt. Es gelingt den Autoren leider nicht, den Baukörper zu einem Ganzen zusammenzufassen.

Grundriss Erdgeschoss © Zumstein Architekten

Die Wohnungen werden zentral, die beiden Kindergärten dezentral vom Schliengerweg und vom Hof her erschlossen. Durch einen mittig angeordneten Durchgang gelangt man vom Schliengerweg in den Innenhof, was die Doppel- nutzung des Gartens durch die Bewohnenden selbstverständlich erscheinen lässt.

Hofbild © Zumstein Architekten

In den Obergeschossen befinden sich sechs Familienwoh- nungen, die alle als Geschosswohnungen ausgebildet sind. Dem Austausch unter den Bewohnenden stehen neben dem Hof unterschiedliche Räume zur Verfügung: Zentral im Erdgeschoss und zum Hof hin orientiert befindet sich der Waschraum, der so zu einem Ort der Kommunikation wird. Im ersten und zweiten Obergeschoss sind hofseitig Gemeinschaftsterrassen vorgesehen, denen sich jeweils die Küchen dieser Wohnungen zuwenden.

Grundriss 1. Obergeschoss © Zumstein Architekten

Grundriss Dachgeschoss © Zumstein Architekten

Die Adressierung und Erreichbarkeit der beiden Kindergärten und der Wohnungen wirken durchdacht. Die Grundrissdisposition des Kindergartens scheint jedoch überprüfungswürdig, auch wird die Orientierung der Kindergärten zum Garten hin vermisst.

Querschnitt © Zumstein Architekten

Auch wenn alle Wohnungen beidseitig ausgerichtet sind, weisen die Wohnungsgrundrisse schlauchartige Korridore auf, die eine gewisse Grosszügigkeit vermissen lassen. Die Vorgaben zu den Raumgrössen werden sehr gut einge- halten. Jede Wohnung verfügt über mehrere Balkone, die Attikawohnungen sogar über beidseitige Dachterrassen. Fraglich bleibt, ob die Vor- und Rücksprünge im Gebäude und die Vielzahl an Balkonen und Terrassen dem Anspruch von günstigem Wohnungsbau gerecht werden.

Konstruktion © Zumstein Architekten

Das Tragwerk ist klar strukturiert und effizient und weist einen hohen Re-Use-Anteil auf. Die Räume werden mit den Re-Use-Rippendeckenelementen überspannt, welche auf Stahlträgern lagern. Die vertikalen Lasten werden über Stahlstützen abgetragen. Die horizontale Aussteifung funktioniert über ein Stahlfachwerk. Das vorhandene Un- tergeschoss wirkt sich negativ auf die Nachhaltigkeit aus. BRICOLAGE komplettiert die Gebäudezeile am Schliengerweg mit einer aufwendigen, allseitig unterschiedlich reagierenden Gebäudestruktur. Die Heterogenität in der Materialisierung wird durch die Vor- und Rücksprünge in der Gebäudekubatur verstärkt. Auch wenn der Wille zum Einsatz von Re-Use-Bauteilen und weiteren ressourcenschonenden Materialien als vorbildlich gelten darf und die sozial- räumlichen Überlegungen anerkannt sind, werden jedoch Qualitäten in den Wohnungsgrundrissen vermisst. Dagegen hat Anerkennung gefunden, dass die Zielvorgaben der Bauherrschaft hinsichtlich rechnerischer Amortisation der grauen Energie in nur sechs Jahren erreicht werden.
 

8. Rang - TOO LOW FOR ZERO

kollektive architekt, Basel

 
   

Modellbild too low for Zero

Das Projekt TOO LOW FOR ZERO macht einen politischen Aufschlag und formuliert eine Haltung, die sich gegen die aktuelle Diskussion der Kreislaufwirtschaft in Bezug auf die Nutzung der urbanen Mine mit einem Plädoyer für den Erhalt von Bestandsgebäuden positioniert. Entsprechend wird der Fokus des Projektes auf die kreislaufgerechte Konstruktion auf Basis von CO2-armen, biobasierten Baustoffen sowie nicht eingebaute «Überfluss-Materialien» gelegt. Das Potenzial von aus dem Rückbau gewonnenen Bauteilen und der damit verbundenen Formulierung einer veränderten Architektursprache wird leider nicht verfolgt.

Sicht vom Rheinweilerweg © kollektive architekt

Der Entwurf sieht einen linearen, relativ kompakten Baukörper vor, der sich über Balkone und einen Erker zum Schliengerweg sowie über Balkone, eine Terrasse und einen Rücksprung im Dachgeschoss zum Hof hin abstuft. Neben der horizontalen Holzfassade prägt ein markantes, leider etwas überdimensioniert wirkendes, schräges Indach-PV-Element, das den oberen Wohnungen als Sonnenschutz dient sowie ein Habitat für Mauersegler und Fledermäuse kreiert, die architektonische Gestalt, die am Ende nicht überzeugt. Die Begründung für die horizontale Ausrichtung der Wetterschale wirkt etwas kurz gedacht, da die vermeintliche Ressourceneffizienz mit einer kürzeren Lebensdauer und höheren Instandhaltungskosten verbunden ist.

Konzeptschema © kollektive architekt

Die Erschliessung der beiden Kindergärten erfolgt rück- wärtig über einen begrünten, differenziert gestalteten Hof. Die Wohnungen werden über ein sehr kompaktes, innenlie- gendes Treppenhaus erschlossen, welches strassenseitig angeordnet ist. Die Grundrissgestaltung der Kindergärten überzeugt vor allem durch den mittig angeordneten, zuschaltbaren Gruppenraum, der die Flexibilität beider Nutzungen erhöht und das Thema des Teilens auf einfache Weise erlebbar macht. Die Grundrisse lassen jedoch eine spielerische Leichtigkeit vermissen; die Position der Stützen in den grossen Gruppenräumen hätte noch weiter optimiert werden können, um eine uneingeschränkte Nutzbarkeit zu ermöglichen.

Grundriss Erdgeschoss © kollektive architekt

Bei den Wohnungen wird Wert auf eine zweiseitige Belichtung und Belüftung gelegt, was ausdrücklich begrüsst wird, auch wenn dieses Ideal aufgrund der Erschliessung nicht für alle Wohnungen erreicht wird. Die Ausformulie- rung der finalen Grundrisse wirkt jedoch etwas kompliziert und wirft Fragen in Bezug auf einen effizient geplanten Schall- und Brandschutz auf. Die Mansardenzimmer waren nicht im Raumprogramm gefordert und verstärken den Eindruck, dass die Grundrisse wenig ausgereift sind.

Grundriss 1. Obergeschoss © kollektive architekt

Grundriss 2. Obergeschoss © kollektive architekt

Grundriss 1. Dachgeschoss © kollektive architekt

Grundriss 2. Dachgeschoss © kollektive architekt

Vor dem Hintergrund der klaren programmatischen Haltung wirkt das zwar reduzierte Kellergeschoss, das neben einem Technikraum die Mieterkeller beherbergt, wenig konsequent, da hier auf einfache Weise CO2 hätte vermieden werden können.

Innenbild © kollektive architekt

Die Funktionsweise des Tragwerks ist gut nachvollziehbar. Es weist einen geringen Re-Use-Anteil auf, dennoch ist das Tragwerk aufgrund der geringen Deckenspannweiten effizient. Nicht nachvollziehbar ist, wie die erforderliche Tragsicherheit mit einer Mehrschichtplatte von 8 cm im Brandfall gewährleistet wird.

Konstruktion © kollektive architekt

Das Projekt TOO LOW FOR ZERO propagiert einen zur Auslobung konträren Ansatz, der bei der Jury durchaus auf Interesse gestossen ist. Die Nutzung von ökologischen Materialien wird als sehr positiv bewertet. Leider führen die Entscheidungen nicht zu der gewünschten Amortisa- tion in Bezug auf die graue Energie, da die Potenziale von Re-Use-Bauteilen nicht ausgeschöpft wurden. Der Entwurf verfolgt gute Ansätze, die jedoch am Ende weder in der gewünschten architektonischen Qualität in Bezug auf die Grundrissqualität der Wohnungen noch in Bezug auf die Ausgestaltung des Baukörpers überzeugen. Der vollständige Jurybericht kann hier heruntergeladen werden.