Basler Grundrisse
15.06.19
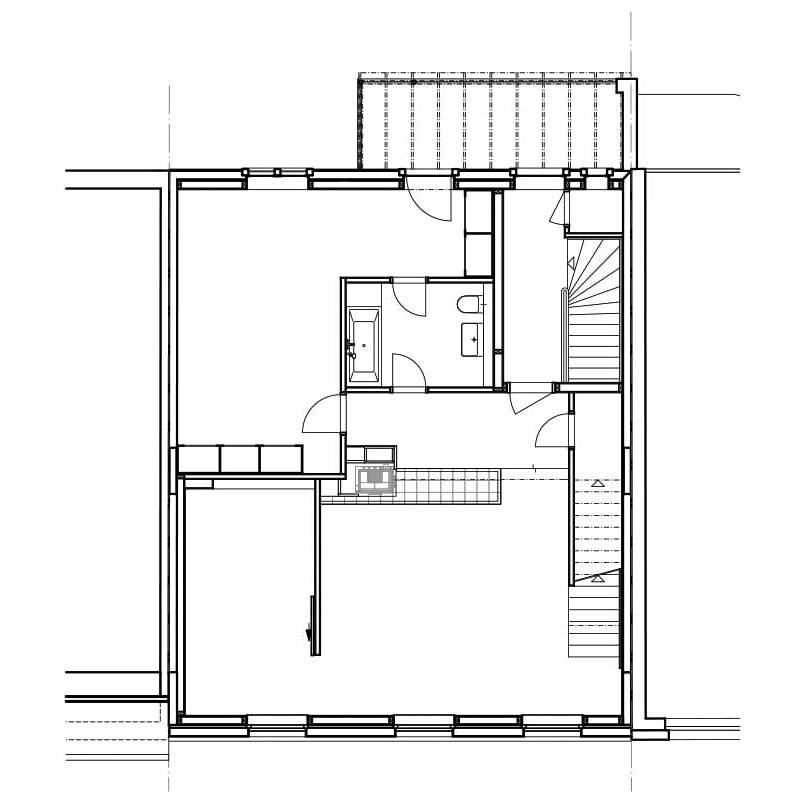
Umbau und Aufstockung Birmannsgasse 47 von sab architekten, 2016
Umbau und Aufstockung Birmannsgasse 47 von sab architekten, 2016
Name: Umbau und Aufstockung Birmannsgasse
Architekten: sab architekten
Adresse: Birmannsgasse 47, 4055 Basel
Baujahr: 2016
Funktion: Wohnen