Politik 02.04.26

Unlauterer Angriff auf den Architekturwettbewerb in Gelterkinden

Am 26. April stimmt die Gemeinde Gelterkinden nach einem Referendum über den Projektierungskredit für das Projekt «Campus Loggia» ab. Gegner des Vorhabens unterlaufen den politischen Prozess mit einem unfairen Manöver: Sie haben ein schematisches Gegenprojekt erarbeitet, das beweisen soll, dass der benötigte Schulraum auch kostengünstiger erstellt werden kann. Dieses Vorgehen darf auf keinen Fall Schule machen.

Die Loggia an der Nordecke gibt dem Projekt den Namen. Die Loggia bindet das Gebäude an den Ort und verknüpft es mit der Umgebung. Sie bietet verschiedene Durchwegungen und kann als überdachter Spielbereich oder Freiluftklassenzimmer genutzt werden. © Atelier Amot

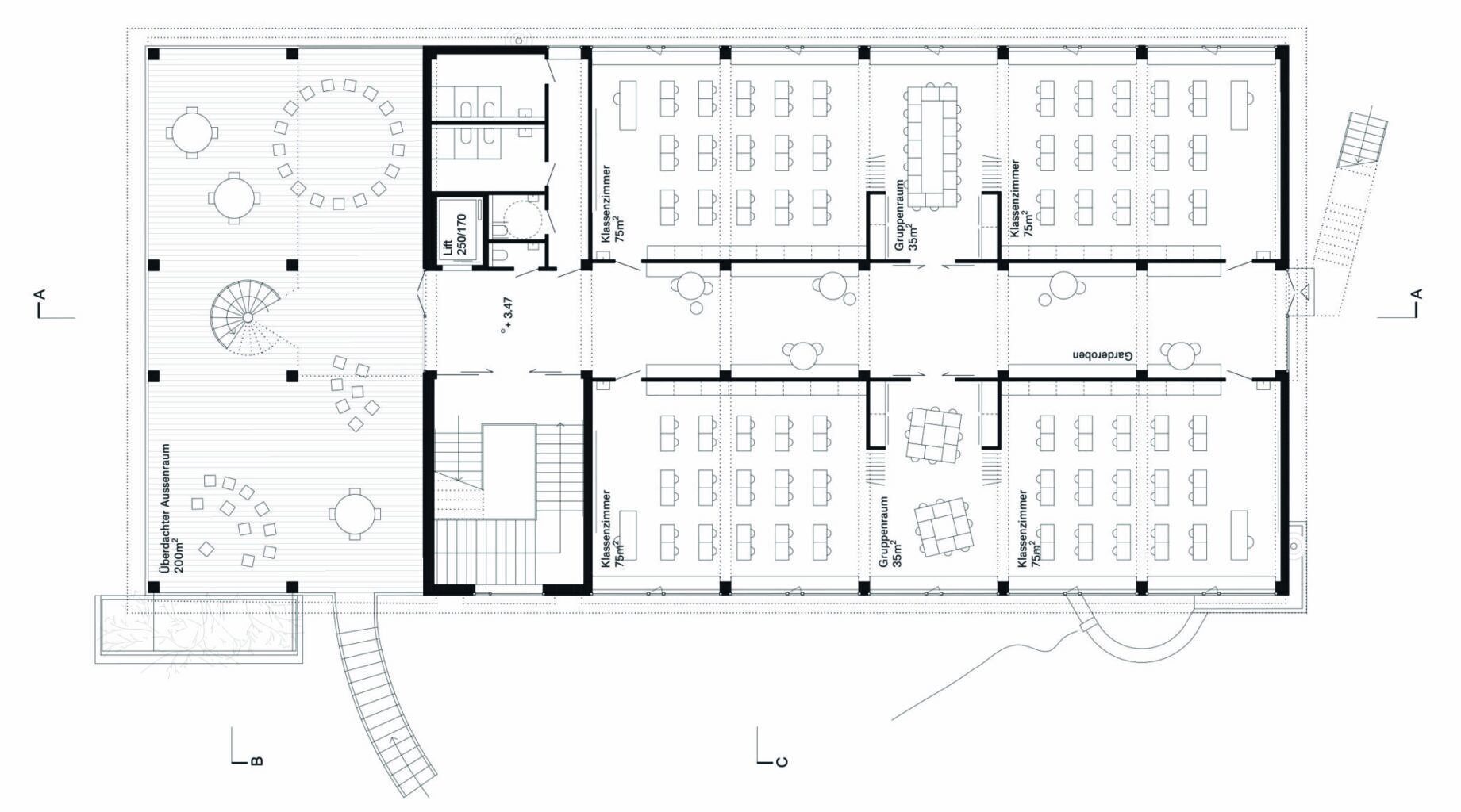
Funktionale, durchdachte Grundrisse des überarbeiteten Siegerprojektes © Atelier Amot

Das Projekt «Campus Loggia» wurde 2023 als Siegerprojekt in einem offenen, einstufigen Verfahren nach SIA 142 erkoren. Eine namhafte, gut besetzte Fachjury hat das Projekt einstimmig zur Weiterbearbeitung empfohlen. Beurteilungskriterien waren Quartierverträglichkeit, architektonisches Gesamtkonzept, Identität und Ausstrahlung, Landschaftsarchitektur, Funktionalität sowie Wirtschaftlichkeit, Nachhaltigkeit und Unterhalt. Unter Berücksichtigung all dieser Faktoren und nach vertiefter Kostenprüfung konnte sich das Projekt «Campus Loggia» gegen 24 andere Beiträge durchsetzen. Es wäre den Projektverfassenden von «Ratio» damals offengestanden, sich unter gleichen Rahmenbedingungen der Konkurrenz zu stellen.

Klassenzimmer im Campus Loggia mit Falttrennwand zu den Gruppenräumen. © Atelier Amot

Oblichtbänder sowie Verglasungen zu den Klassenzimmern und grosse Fenster am Ende des Korridors bringen Licht in die mittige Erschliessungszone die Platz für die Garderoben und Aufenthalt bietet. © Atelier Amot

Sitzbänke entlang der Fenster mit Stauraum, Austellmarkisen, durchdachte Konstruktion mit liebevoller Detailgestaltung, © Atelier Amot

In der Würdigung von «Campus Loggia» ist zu lesen: «Bezugnehmend auf den zentralen Zwischenraum und auf die ankommenden Schüler ausgerichtet, sichert der markante, offene Nordabschluss des Gebäudes die örtliche Verankerung des Neubaus im Schulareal.» Das vorgeschlagene Projekt zeichnet sich gleichzeitig durch eine hohe Zweckmässigkeit aus. Die durchgehenden Öffnungen im Korridorbereich sorgen trotz Kompaktheit für Grosszügigkeit. Die gedeckte Loggia wertete das Preisgericht zu Recht als einen Ort mit hoher Aufenthaltsqualität und als wirksames Bindeglied zwischen dem Neubau und dem Areal. Falls der Schulraumbedarf effektiv kleiner sein sollte, ist das Projekt «Campus Loggia» zu überarbeiten. «Dass im Verlaufe der Entwicklung eines Projekts neue Erkenntnisse über Anforderungen, Schülerzahlen oder Kosten usw. einfliessen, ist üblich. Dies darf nicht der Grund sein, einem Siegerprojekt die Weiterbearbeitung zu verwehren», so die damalige Fachjury in einer Stellungnahme.

Gegenprojekt RATIO - Vorgehen höchst problematisch

Anders als behauptet, fügt sich dieser Bau weder gut in das bestehende Ensemble ein, noch verfügt er über eine hochwertige Fassaden- und Landschaftsgestaltung. © Arbeitsgruppe „Ratio“

Das nun von der Gegenseite präsentierte Projekt «Ratio» ist auf diversen Ebenen höchst problematisch. Zum einen wurden grosse Teile des Projekts «Campus Loggia» übernommen; inwiefern dies urheberrechtlich ein Verstoss ist, wäre zu klären. Gleichzeitig ist das Gegenprojekt keine echte Alternative, da die Gemeinde den Auftrag ohne unzulässige Stückelung nicht direkt vergeben kann. Die Aussage im Projektbeschrieb – «Sollte das Projekt Ratio zur Ausführung gewählt werden» – ist aus dieser Sicht skandalös. Mit dem vorliegenden Projekt wird der Abstimmungskampf unlauter beeinflusst. Andreas Galli, der den Juryvorsitz innehatte, nimmt dazu Stellung und erklärt: «In Gelterkinden wird aktuell der korrekte Prozess und das ordentliche, öffentliche Beschaffungswesen mit einem Alternativprojekt unterlaufen. Dies ist schweizweit einmalig und darf nicht Schule machen.»
Rationale, schematische Grundrisse - das Fachauge stösst sich an der fehlenden Sorgfalt, zum Beispiel bei den WC-Kabienen im Fensterlicht © Arbeitsgruppe „Ratio“

Rationale, schematische Grundrisse - das Fachauge stösst sich an der fehlenden Sorgfalt, zum Beispiel bei den WC-Kabienen im Fensterlicht © Arbeitsgruppe „Ratio“

Ohne die visualisierten Kinder in der Umgebung könnte dieses Haus auch in der Gewerbezone stehen. © Arbeitsgruppe „Ratio“

Dunkler Korridor ohne Bezüge zu den Klassenräumen © Arbeitsgruppe „Ratio“

Dunkler Korridor ohne Bezüge zu den Klassenräumen © Arbeitsgruppe „Ratio“

Der schematische Fassadenschnitt, ohne architektonische Gestaltung mit hohen Brüstungen und ins Fensterlicht ragenden Rafflamellen veranschaulicht die Qualitätseinbusse vom Gegenvorschlag © Arbeitsgruppe „Ratio“

Architektonisch fehlt dem Projekt «Ratio» die Einbettung und Gliederung – genau jene Verortung, die dem Siegerprojekt gelingt. Der architektonische Ausdruck ist beliebig; das Projekt könnte so in jeder Gewerbezone stehen. Schulhausarchitektur ist wichtig, denn sie ist öffentlich und im besten Fall für mehrere Generationen gebaut. Die Gemeinde Gelterkinden hat eine baukulturelle Verantwortung, der sie mit dem vorliegenden Wettbewerbsverfahren gerecht wurde. Die Umgehung der architektonischen Qualitätssicherung darf keine Option sein. Auch nicht in Gelterkinden.

Text: Christina Leibundgut / Architektur Basel


Aufgabenstellung, Jurybericht und Wettbewerbspläne des Siegerprojektes:https://competitions.espazium.ch/de/wettbewerbe/decisi/primarschulhaus-hofmatt-gelterkinden

Projektbeschrieb Ratio:https://luxusschulbau-nein.ch/wp-content/uploads/2026/03/0_RATIO-Projektbeschrieb.pdf