Wettbewerbe 23.02.23

Einbau der Rezeption für die Musikschule im 1. Obergeschoss © Buol & Zünd Architekten

Studienauftrag zur Umnutzung des Mittenzas – Eine Ermessensfrage

1970 war das Gemeindezentrum in Muttenz für die einen die angemessene architektonische Antwort für das Bauen im historischen Ortskern, für die andern ein zu bildhafter Entwurf. Der aktuelle Studienauftrag zeigt, wie das Mittenza für die Musikschule als neuer Hauptnutzer umgebaut und neu belebt werden soll.  Der Hotel- und Saalbau des Gemeindezentrums Mittenza, erbaut 1965 bis 1970 von den beiden Architekten Rolf Keller und Fritz Schwarz, steht seit längerem leer. Nachdem der Versuch der Gemeinde Muttenz, diesen Teil der Anlage, an einen Baurechtsnehmer abzugeben wegen fehlendem Interesse scheiterte, soll es nun umgenutzt und wiederbelebt werden. Die an verschiedenen Standorten verteilte Musikschule soll im Mittenza vereint und das Kongresszentrum zu einem ‹ Haus der Vereine › transformiert werden. Glücklicherweise lehnte die Gemeindeversammlung den Antrag zur Prüfung des Abrisses im letzten Jahr deutlich ab. Die Bevölkerung identifiziert sich mit der Anlage, die der Gemeinde 1983 den Wakkerpreis für seinen Umgang mit dem historischen Dorfkern einbrachte. Das Mittenza ist heute sanierungsbedürftig – wie stark, ist wie die Wettbewerbsbeiträge zeigen, eine Ermessensfrage. 

Gemeindezentrum Muttenz, Grundriss Erdgeschoss © werk, bauen + wohnen 002 1971

Kontroverse zum Bauen im historischen Dorfkern Die Gemeinde Muttenz entwickelte sich zwischen 1950 und 1970 vom kleinen Bauerndorf zu einer beinahe urbanen Industrie- und Vorortsiedlung von Basel mit rund 17 000 Einwohnern. Um das Gemeinschaftsleben im Dorf zu fördern, entschloss sie sich damals dem Ruf der Bevölkerung nach einem Saalbau nachzukommen und mitten im historischen Dorfkern ein neues Zentrum zu schaffen. Vorab liess die Gemeinde sich für die Ortsplanung von Hans Marti beraten, der dann auch den Juryvorsitz des Wettbewerbs einnahm. In ihrem siegreichen Beitrag griffen die Architekten Rolf Keller und Fritz Schwarz mit einem Ensemble von drei Gebäudegruppen, die einen Hof zonieren architektonische Elemente auf, die den historischen Ortskern prägen. Wesentlich ist dabei die Volumengliederung der Körper, die Gestaltung der Dachlandschaft, die Platzierung der Fenster innerhalb der Wand sowie die Materialität und Farbigkeit. Im Ausdruck neu waren jedoch die Öffnungen der Giebelmauern unter dem Dach. Im Inneren erinnert das Mittenza stark an die skandinavische Moderne.

Gemeindezentrum Muttenz, Rolf Keller Architekten © werk, bauen + wohnen 002 1971

 

Gemeindezentrum Muttenz, Platzgestaltung © werk, bauen + wohnen 002 1971

Inwiefern das Projekt seinerzeit polarisierte, zeigt ein Blick in die schweizerische Architekturdebatte jener Zeit. In einem kontrovers geführten Gespräch in der Zeitschrift ‹ werk › diskutierten 24 Gesprächsteilnehmer aus unterschiedlichen Disziplinen und gingen der Frage nach, wie sich das Neue in einer solch historischen Umgebung abzeichnen darf. Die damaligen ETH-Assistenten, Martin Steinmann, Bruno Reichlin und Fabio Reinhart eröffneten das Gespräch als Vertreter des Strukturalismus. Sie sahen grosse Wiedersprüche zwischen dem alt gewachsenen und der neuen Dorfarchitektur, die für sie rein formal statt städtebaulich begründet war und bemängelten, dass der Bau versuche die Bruchstellen zu verdecken und überspielen. Peter Zumthor und Alfred Wyss reagierten auf das Gespräch und gaben daraufhin in einem Leserbrief ihre Haltung zum Städtebau wieder: « Heute ist die öffentliche Zone zu einer zweiten Raumschicht ausgeweitet: ein tiefer Eingriff in die Dorfstruktur, den der Versuch einer formalen Einfügung der Baukörper nicht heilen kann; der Platz am Hauptgelenk bei der Kirche ist verloren. Der neue Raum ist kein Ersatz – er ist im wesentlichen Durchgang und wir vermuten und hoffen für die Zukunft – Kaffeeterrasse. » Mit dem Wegfall des Pächters und der fehlenden Frequenz auf dem Hof blieb nun sogar der Kaffeterrassen-Betrieb aus, daher ist die Initiative der Gemeinde, das Mittenza mit neuem Leben zu füllen äusserst begrüssenswert.

Gemeindezentrum Muttenz, Innenbilder © werk, bauen + wohnen 002 1971

Unterschiedliche Eingriffstiefen Mit zwei Entwurfsentscheidungen können Buol & Zünd den selektiven Wettbewerb gewinnen. Zum einen legen sie den Eingang der Musikschule ins schwierig zu bespielende, üppige Foyer des Saals und aktivieren somit den verlassenen Innenhof als auch das Foyer. Zudem schaffen sie eine geschickte Verteilung des Raumprogramms, das zu wenig Eingriffen und zu einer klaren Trennung der Funktionen führt – mit dem Motto, oben leise, unten laut.  Vergleicht man das Siegerprojekt mit den anderen Beiträgen, so fällt ins Auge mit wie wenig rot-gelben Teilen auf den Plänen es auskommt. Dies ist nicht nur der geschickten Verteilung zu verdanken, sondern zeigt eine grundlegend andere Lesart des Bestands. Es stellt sich dabei die Frage, ist dies wirklich bloss eine Ermessensfrage? Die Beiträge der Büros Back Simonsen und Beer Merz zeigen eine akribische Analyse und viel Freude in der Auseinandersetzung mit der Substanz. Während beide diese im denkmalpflegerischen Sinne aufzufrischen versuchen und gleichzeitig um alle aktuellen Normen und Auflagen bemüht sind, zeigt sich der Beitrag von Buol & Zünd da etwas flapsig und verweist in vielen Punkten einfach auf den Bestandsschutz. Zudem versuchen die anderen Teilnehmer mit verschiedenen Intentionen die bestehende Anlage zu beleben: Es finden sich beispielsweise neue Restaurantkonzepte, Verbesserungsvorschläge für die Erschliessung, Aufwertungen in der Aussenraumgestaltung oder neue Schaufenster zum Dorf. Ist dies alles gar nicht von Nöten? 

Foyer © Buol & Zünd Architekten

Programmierung Foyer & Empfang Musikschule © Buol & Zünd Architekten

Weiterverwenden Reichen die spärlichen Massnahmen des Siegerprojekts, um das Haus wiederzubeleben? Im Bereich der grossen Säle, die in einem guten baulichen Zustand sind, ist die Haltung des Siegerteams durchaus sinnstiftend. Ob Küche, Restaurant und die Untergeschosse nicht doch etwas mehr Eingriffe vertragen könnten wird sich zeigen. So einfach, wie im Wettbewerb dargestellt, dürfte es nicht werden. Die ressourcenschonende Herangehensweise ist heute sicher richtig, so ist beispielsweise die Aufarbeitung der Einbaumöbel in den ehemaligen Hotelzimmern erfreulich. Stellt man sich dazu die vorgeschlagenen Spannteppiche im benutzten Zustand vor, zeigt sich aber exemplarisch die schmale Gratwanderung des Beitrags. Die Jury wählt nicht das leuchtende, frische Projekt, sondern das Re-Use-Konzept, das hoffentlich trotz den wenigen Eingriffen durch den Einzug der Musikschule neues Leben in das Zentrum von Muttenz bringt und dafür Ressourcen schont. 

Unterrichtsraum Klassisch © Buol & Zünd Architekten

Angesichts der finanziellen Situation der Gemeinde Muttenz ist gut nachvollziehbar, dass man mit Freude zur Kenntnis genommen hat, wie viel Wert das Siegerteam in der vorhandenen Substanz sieht. Mit der Denkstatt Sàrl, die bereits die Basler Markthalle und das Gundeldingerfeld einer neuen Nutzung zugeführt hat erhält Buol & Zünd von der Gemeinde zudem einen erfahrenen Partner zur Seite gestellt, welcher das Mittenza zusammen mit der Bevölkerung inhaltlich gestalten soll. Wir dürfen gespannt darauf sein, wie sich das Projekt entwickelt und wie stark die Eingriffstiefe zum Ende sein wird. Text: Christina Leibundgut / Architektur Basel
Wir werfen einen Blick auf alle Wettbewerbsbeiträge. Die nachfolgenden Projektbeschriebe stammen aus dem Jurybericht:

1. Rang Buol & Zünd Architekten, Basel einstimmige Empfehlung zur Weiterbearbeitung, CHF 25 000.– Entschädigung

Ausgangspunkt des Entwurfes ist eine sorgfältige Analyse des Kontextes und der ursprünglichen städtebaulichen Idee von Rolf Keller und Fritz Schwarz: die Gruppierung der Gebäude um eine Reihe von Höfen, die Verlagerung der Zugänge in die Tiefe der Parzelle und die damit zusam- menhängenden innenräumlichen Qualitäten: Die eindrückliche Wegführung als «Promenade Architecturale», und die Orientierung der wichtigen Innenräume auf jeweils zugeordnete Höfe.

Städtebauliche Entwicklung © Buol & Zünd Architekten

Der Haupteingang zur Musikschule erfolgt über den heutigen Saalzugang, der Dorfplatz wird somit als Teil der Erschliessung miteinbezogen, in der inneren Organisation des Gebäudes werden nur kleine Anpassungen vorgenommen. Die Nutzung der schönen Halle mit Rampe als Foyer zur Musikschule wird von der Jury grundsätzlich begrüsst. Die vorgeschlagene, mit einer Glaswand eingehauste Empfangssituation auf der Galerie wird den bestehenden räumlichen Qualitäten nicht gerecht, die weitere Erschliessung vom Empfang über das auch nach Süden geöffnete, bestehende Treppenhaus ist eng. Erst wenn man die weiteren Erschliessungs- und Durchwegungsmöglichkeiten des Bestandsgebäudes miteinbezieht, relativiert sich die Situation. Die Architektur der Mittenza bietet für den Zugang zu vielen Räumlichkeiten mindestens zwei Wegeführungen. Diese, auf den ersten Blick labyrinthisch scheinende Eigenschaft, ist Teil der räumlichen Qualität des Bestands und kann auch für die innere Erschliessung der Musikschule aktiviert werden. So sollte beispielsweise untersucht werden, ob neben dem Haupteingang zur Musikschule vom Hof aus, auch der Zugang von der Hauptstrasse zur Verwaltung weiterhin genutzt werden kann.  

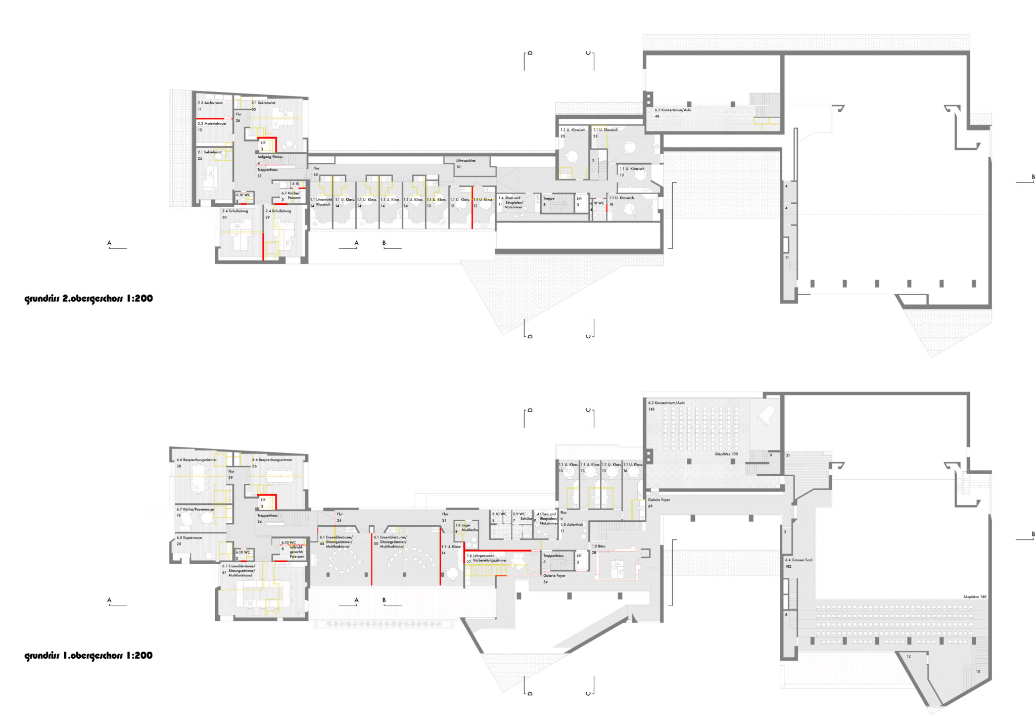
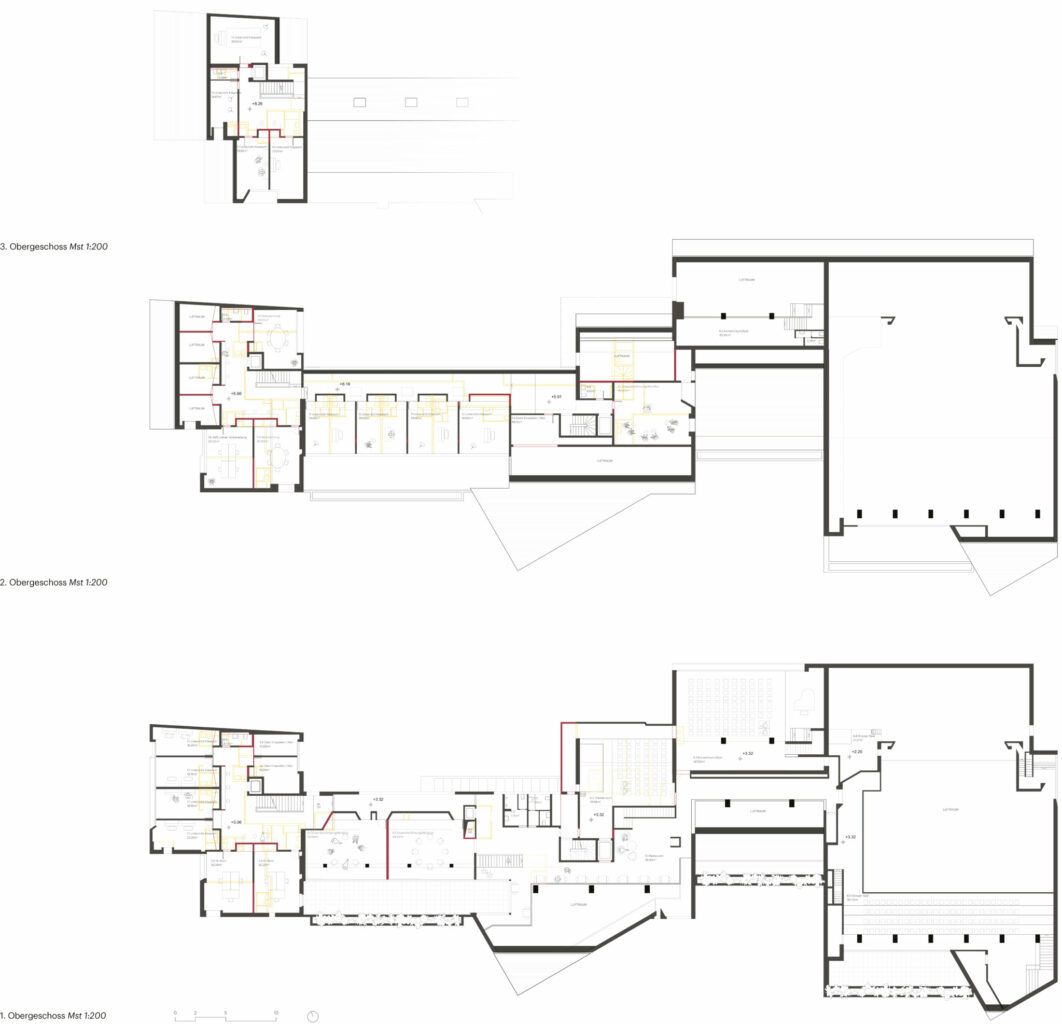
Grundriss Erdgeschoss © Buol & Zünd Architekten

Grundriss Obergeschosse © Buol & Zünd Architekten

Ensembleräume © Buol & Zünd Architekten

Gesamthaft zeichnet sich das Projekt aus durch einen sorgfältigen Umgang mit dem Bestand, Sensibilität im Umgang mit der Architektur der späten 60er Jahre und Ideenreichtum bei Neuinterpretation und Fortschreibung von Stilmerkmalen. In welchen Bereichen tatsächlich Spannteppich vor- gesehen werden soll, wäre sicherlich bei der Weiterbearbeitung zu prüfen. Die klare Trennung der Funktionen in die drei Gebäudeabschnitte, Verwaltung, Musikschule und Veranstaltungen verspricht eine gute betriebliche Organisation mit möglichst geringen gegenseitigen Störungen. Das Nutzungskonzept respektiert die strukturellen Gegebenheiten des Gebäudes, vermeidet schwerwiegende Eingriffe in die Gebäudestruktur und nutzt somit den Bestand in kluger Weise. Die Eingriffe erfolgen massvoll und wirtschaftlich. Die architektonischen Qualitäten des Mittenza Komplexes werden für die Musikschule genutzt und gleichzeitig für kommende Generationen und andere Nutzungsszenarien erhalten.  

Ohne Rang,  Back Simonsen, Basel CHF 25 000.– Entschädigung

Die sorgfältige und umfangreiche Bearbeitung der Aufgabe zeugen von grossem Engagement und Freude an der Ausarbeitung des Vorschlags. Der Vorschlag beinhaltet nur wenige Veränderungen des äusseren Erscheinungsbilds und vergleichsweise moderate Eingriffe in die Tragstruktur – mit Ausnahme des Kopfbaus.

Aufgewerteter Zugang seitens Friedhofweg © Back Simonsen

Cafebar mit Kiosk © Back Simonsen

Die Vermischung der Funktionsbereiche im Kopfbau und die Verteilung von Musikräumen im gesamten Gebäudeensemble könnten im Betrieb unübersichtlich werden. Die geringe Raumhöhe im Kopfbau schränkt die Nutzung als Musikräume wesentlich ein, eine stringentere Zonierung der Funktionen mit Beachtung der räumlichen Gegebenheiten wäre deshalb vorteilhaft gewesen. Das Thema Akustik der neuen Musikräume wird ernst genommen und Prinzipienschnitte zu den wichtigsten Räumen erarbeitet. Dennoch, die schlauchförmigen Raumproportionen der Übungsräume «Klassisch» und die niedrigen Raumhöhen in der Aula im 1. OG können nicht überzeugen. Positiv werden sowohl der im Erdgeschoss angeordnete Empfang der Mu- sikschule wie die Lage und Ausgestaltung des multifunktionalen Musik- raumes beim abgesenkten Innenhof im Untergeschoss bewertet.

Übungsraum Klassisch © Back Simonsen

Sorgfältige Detailstudie © Back Simonsen

Grundriss Erdgeschoss © Back Simonsen

Grundriss Obergeschoss © Back Simonsen

Das vorgeschlagene Konzept von aufgereihten Buffets im Restaurant ist für die voraussichtlich geringe Frequenz im Mittenza ungeeignet. Der Personalaufwand wird entsprechend gross und entspricht nicht den Grundlagen für einen kommerziell selbsttragenden Betrieb, insbesondere nicht an dieser Lage des Mittenza, die nicht mit städtischen Situationen verglichen werden kann. Der östliche Teil des Gastraumes ohne Tageslicht wird als wenig attraktiv gewertet. Der strassenseitige Teil des Restaurants ist vom übrigen Betrieb abtrennbar und bietet dadurch Flexibilität im Betrieb.

Restaurant als verbindendes Element © Back Simonsen

2. Obergeschoss © Back Simonsen

Der Einbau einer neuen Treppenanlage mit Lift im Herzen der Anlage erweist sich als kluge Massnahme; die Fluchtwegsituation und die Erschliessung der Obergeschosse werden qualitativ verbessert. Die präzisere Ausgestaltung müsste aber in einem nächsten Planungsschritt optimiert werden, da nicht alle Geschosse erschlossen werden. Die geschätzten Baukosten liegen im Mittelfeld der Vergleichsprojekte und knapp innerhalb der Vorgabe.

Ohne Rang, Beer Merz Architekt:innen, Basel CHF 25 000.– Entschädigung

Der behutsame Umgang mit dem denkmalgeschützten Mittenzagebäude und der Wille das Haus wieder sichtbarer und einladender zu machen, wird sehr geschätzt. Die Adressierung und Art der Zugänge bleiben in Ihrer Hierarchie erhalten, der Hoteleingang wird neu als Haupteingang zur Musikschule genutzt. Den Kiosk als Schaufenster der Musikschule umzudeuten ist interessant. Der versenkbare Fenstertyp scheint eher etwas forciert, insbesondere da ein flexibleres Öffnungsverhalten im Hinblick auf das Musizieren zur lärmigen Strasse hin mehr Szenarien ermöglichen würde. Geschickt kann die heutige Rezeption als Raum für den Empfang der Musikschule dienen.

Aktivierung Haupteingang © Beer Merz Architekt:innen

Grundriss Erdgeschoss © Beer Merz Architekt:innen

Das Restaurant mit der möglichen Raumtrennung bietet eine flexible Raumstruktur, die für eine kommerzielle Gastronomie gut funktioniert, insbesondere mit der konventionellen Küchenanordnung, die auch den Cateringbetrieb für den Saal bieten kann. Das Kopieren des Bandfenster- typs unterhalb des Daches in den muralen Bereich des Restaurants ist in dieser Form nicht nachvollziehbar, da die statischen Bedingungen sehr verschieden sind. Die vorgeschlagene Raumstimmung im Restaurantbereich wirkt noch etwas zaghaft und uninspiriert.

Neues grosses Fenster für das Buffet © Beer Merz Architekt:innen

Raumbeziehungen im Erdgeschoss © Beer Merz Architekt:innen

Ansicht und Schnitt © Beer Merz Architekt:innen

Neugestaltung Platz © Beer Merz Architekt:innen

Querschnitt © Beer Merz Architekt:innen

Die "Abtrennbar" © Beer Merz Architekt:innen

  Die Nutzungsmischung von Übungs- und Büroräumen im Kopfbau wird kritisch beurteilt. Eine funktionale Entflechtung ist die einzige Lösung, um den akustischen Anforderungen gerecht zu werden. Die angedachte Raum-in-Raum Lösung für die Übungsräume funktioniert nur bedingt, da die Bodenflächen nicht ertüchtigt werden. Das Belassen der Hotelzimmerstruktur bringt zwangsläufig suboptimale Proportionen für die Musikräume mit sich, was aber zwischen Denkmalspflege und Funktionalität abgewogen werden muss. Die Anordnung der Übungsräume im Untergeschoss zum sogenannten Jazzhof erfordern zusätzliche akustische Massnahmen an der Fassade. Der Abtausch von Theaterraum und Übungsräumen könnte das Problem lindern und die Belichtungssituation verbessern, da der Theaterraum nicht immer in Gebrauch ist. Bezüglich Wirtschaftlichkeit liegt der Projektvorschlag im Mittelfeld der Vergleichsprojekte.

Grundrisse Obergeschosse © Beer Merz Architekt:innen

 

Ohne Rang, Harry Gugger Studio, Basel CHF 25 000.– Entschädigung

Eine sorgfältige Analyse, ein starker Gestaltungswille das Gebäude neuzeitlicher zu gestalten und ein unerwarteter Vorschlag zur Nutzung des Erdgeschosses zeichnen diesen Vorschlag aus. Der Vorschlag das Restaurant in das heutige Foyer zu verlegen suggeriert den erhofften Befreiungsschlag zur Unterbringung des umfangreichen Raumprogramms. Aber leider ist der Preis hierfür sehr hoch.Die Verfasser haben die Kritik der ersten Stufe in Teilen aufgenommen und den Grad der Eingriffe etwas reduziert. Dennoch, die Eingriffstiefe der vorgeschlagenen baulichen Massnahmen in gesamten Gebäudekomplex sind aus denkmalpflegerischer Sicht zu gross und werden den denk- malpflegerischen Zielen nicht gerecht. Die Eingriffe sind zum grossen Teil das Resultat der Uminterpretation von räumlichen Situationen, die von den Verfassern und der Jury unterschiedlich gewertet werden.

Baumbestandene Terrasse am Café © Harry Gugger Studio

Grundriss Erdgeschoss © Harry Gugger Studio

Die Projektverfasser verändern die Zugangssituation in den Gebäudekomplex. Der Zugang zur Musikschule von der Strasse ist schlüssig und grosszügig gestaltet. Die Haupterschliessung über den zentralen Platz in das Foyer und in das Restaurant von der Arkade weicht einer individuel- len Erschliessung des Restaurants und der Säle vom vorderen und hinte- ren Hof. Die Zugangssituation zu den Sälen wird komplett neugestaltet und führt in Verbindung mit einem neuen Vordach zu grossen Eingriffen an der Struktur und im Erscheinungsbild. Ergänzt wird diese Massnahme mit dem Zurücksetzen der Aussenwand des Saals um damit einen gedeckten Aussenraum zu schaffen. Der Zugewinn dieses Bereiches wird mit einer weiteren Veränderung des Erscheinungsbilds erkauft und kann nicht überzeugen. Die Umnutzung des Restaurants in die kleinteiligeren Räume der Musik- schule wären lediglich für die Musikschule ein grosser Gewinn. Das vorgeschlagene Restaurant im Bereich des heutigen Foyers und der Galerie hat nur wenig Tageslicht, ist auf zwei Ebenen betrieblich ressourcenintensiv und kann keine grösseren Gruppen beherbergen. Ein kommerzieller Betrieb wäre kaum denkbar. Der Einbau eines grossen Fensters in der platzgewandten Wand wirkt in der äusseren Erscheinung wenig harmonisch.

Neuer Eingang zum Saalfoyer © Harry Gugger Studio

Der Verlust der Restaurantnutzung und der damit einhergehenden Umdeutung der Arkaden können aus architektonischer und denkmalpflegerischer Sicht nicht überzeugen. In Verbindung mit der Umgestaltung des Hofs – Aufschüttung und Bepflanzung, Abtrennung der Arkaden mit Pflanzen- trögen – entsteht eine stark veränderte Situation. Die Zonierung und Höhenmodulation mit Stufen ergeben anstelle des ebenen Platzes ein Weg- system mit teilweise erhöhten Aufenthaltsbereichen. Die Uminterpretation des Platzes, von welchem auch die Eingänge der angrenzenden Gebäude des Ensembles erschlossen werden, ist nicht nachvollziehbar. Erschwerend kommt hinzu, dass eine Aufschüttung statische Verstärkungen des Dachs der darunterliegenden Einstellhalle bedingen.  

Grundriss Obergeschosse © Harry Gugger Studio

Modellstudie Vorraum 1. Obergeschoss © Harry Gugger Studio

Detail Unterrichtsräume © Harry Gugger Studio

 

Ohne Rang, Office Haratori, Zürich und Office Winhov, Amsterdam CHF 25 000.– Entschädigung

Die Verfasser konzentrieren die Erschliesssung aller Nutzungen auf den Eingang an der Hauptstrasse. Die bestehende Raumfolge von Arkade, Zugang, Empfangsraum mit Rampe, Foyer und Saal wird durch eine innere, gerade durchlaufende Erschliessung ergänzt. Mit diesem Eingriff scheint zwar auf den ersten Blick die Erschliessung übersichtlicher, es gehen jedoch entscheidende Wesensmerkmale der geschützten Architektur verloren. So wird beispielsweise die Arkade des Restaurants aufgehoben und dem Innenraum zu- geschlagen, der Eingangsraum mit Rampe verliert seine Bedeutung und soll nur noch bei Saalveranstaltungen als Zugang von aussen genutzt werden. Im Kopfbau und im Mittelteil wird die bestehende Gebäude- struktur mit neuen Raumzuschnitten teilwiese markant überschrieben.

Plattform der Musikschule © Office Haratori, Office Winhow, Bureau Mia

Plattform Musikschule © Office Haratori, Office Winhow, Bureau Mia

Aus betrieblicher Sicht bezweifelt die Jury, dass die gerade durchlaufende, innere Achse als Begegnungsraum mit offenem Gastrobereich an diesem Standort belebt werden kann. Selbst an innerstädtischen Lagen sind gemischt genutzte Erdgeschosszonen in dieser Grössenordnung nur schwer zu bewirtschaften. Mit dem Besuch beim Künstler Gianfredo Camesi zeigen die Verfasser ihr Interesse an der Synthese von Kunst, Typografie und Architektur und Innenraumgestaltung. Der Vorschlag einer Toolbox mit Materialien ist grundsätzlich begrüssenswert. Allerdings wird die gewählte Architektur- sprache im Erdgeschoss dem Bestand nicht gerecht. Materialisierung und Ausdruck überschreiben den Bestand fast vollständig.

Grundriss Erdgeschoss © Office Haratori, Office Winhow, Bureau Mia

Materialisierung Übungsraum © Office Haratori, Office Winhow, Bureau Mia

Grundrisse Obergeschosse © Office Haratori, Office Winhow, Bureau Mia

Gesamthaft handelt es sich um sorgfältig durchgearbeitetes Projekt, das zur Entscheidungsfindung wesentlich beigetragen hat. Die konsequente Ausrichtung auf einen Eingang hat die Diskussionen der Jury befruchtet und die Vor- und die Nachteile dieser Massnahmen aufgezeigt. Die Be- dürfnisse der Musikschule wurden sorgfältig umgesetzt und in das Gesamtkonzept integriert. Mit der Neuordnung der Erschliessung und den markanten Eingriffen in die Gebäudestruktur ist jedoch ein hoher baulicher Aufwand verbunden, wertvolle Wesensmerkmale des Bestandsgebäudes gehen verloren.
Jury / Fachpreisrichterin und Fachpreisrichter – Pascale Guignard, Architektin, Zürich (Vorsitz) – Jan Krarup, Architekt, Basel – Daniel Wentzlaff, Architekt, Basel Jury / Sachpreisrichterin und Sachpreisrichter – Franziska Stadelmann, Gemeinde- präsidentin, Muttenz – Thomi Jourdan, Gemeinderat, Muttenz – Christoph Heitz, Bauverwalter, Muttenz Mitglieder mit beratender Stimme – Walter Niederberger, Kantonale Denkmalpflege, Liestal – Salomé Hug, Bauingenieurin, Basel – Markus Spinnler, Akustiker, Muttenz – Samuel Bornand, Schulleiter, Allgemeine Musikschule Muttenz – Raphael Wyniger, Gastronom und Hotelier, Basel – Rolf Eigenmann, Bauökonom, Muttenz