Aktuelles 21.06.22

Blick in den Innenhof © Weyell Zipse

Weyell Zipse gewinnen Wohnbau auf dem Westfeld

Weyell Zipse Architekten entschieden den Projektwettbewerb für die 2. Bauetappe auf dem Westfeld für sich. Ab 2024 werden dort weitere Wohnraum und Flächen für Quartiernutzungen, Dienstleistungen und Kleingewerbe gebaut. Mit der letzten Realisierungsphase wird das Westfeld im 2026 fertiggestellt sein.

Modell des Städtebaus

Auf dem Westfeld im Basler Iselin-Quartier entsteht ein neues Stück Stadt mit 530 Wohnungen und Flächen für Quartiernutzungen und Kleingewerbe. Arealentwicklerin und Bauherrin ist die Baugenossenschaft wohnen&mehr. Seit dem Spatenstich im September 2020 befindet sich das schweizweit grösste Genossenschaftsprojekt in der Realisierungsphase. Mitte Juni konnte mit der Fertigstellung aller Rohbauten der 1. Bauetappe das Richtfest gefeiert werden. Die Vermietung der Wohnungen im umgenutzten Felix-Platter-Spital und der ersten Neubauwohnungen startet am 1. Juli 2022. Vermietungsstart der weiteren Neubauwohnungen ist ab Januar 2023 vorgesehen.

Aussenfassade © Weyell Zipse

In der 2. Bauetappe entstehen ab 2024 nochmals 70-80 Wohnungen und Flächen für Quartiernutzungen, Dienstleistungen, Kleingewerbe sowie Parkierung. Das Projekt besteht aus einem sechsgeschossigen Gebäude als Abschluss des Blockrands, einem Velopavillon zwischen dem «Schiff» (altes Felix Platter-Spital) und den Neubauten sowie einer Erweiterung der Autoeinstellhalle im Untergeschoss. Hier für lud wohnen&mehr im Herbst 2021 fünf Architekturteams zu einem Studienauftrag ein. An den Start gingen neben Weyell Zipse, Nord, BGM, Felippi Wyssen und Clauss Merz. Ein gutes Teilnehmerfeld. Die fünf Teams sollten aufzeigen, wie unter Einhaltung der städtebaulichen Vorgaben hochwertiger – und gleichzeitig preisgünstiger – genossenschaftlicher Wohnraum, Quartier-/Gewerbenutzungen im Erdgeschoss und ein grosszügiges Veloparking realisiert werden kann.

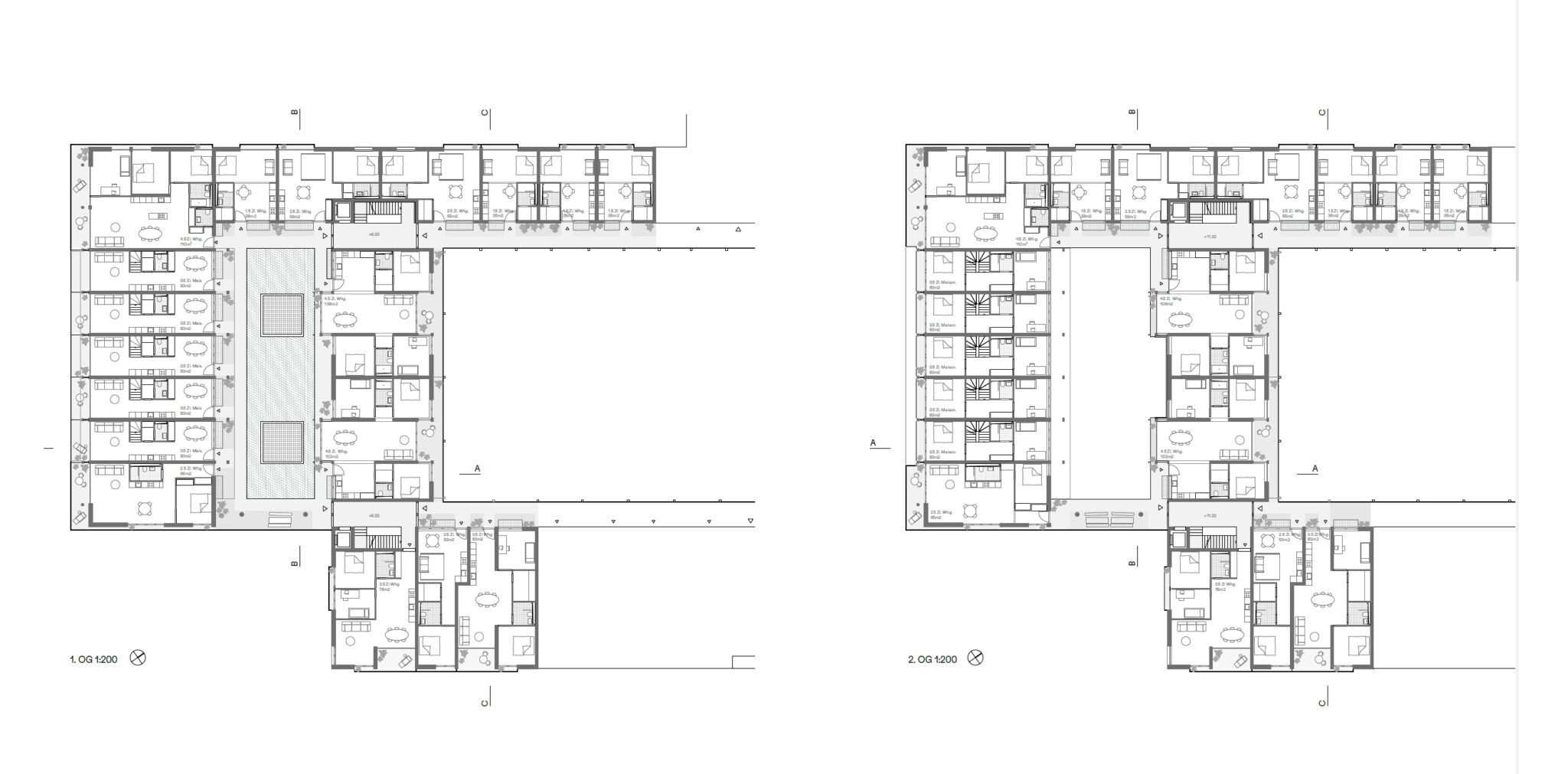
Grundriss Obergeschosse © Weyell Zipse

Der Projektvorschlag der Weyell Zipse Architekten überzeugte durch seinen eigenständigen Ansatz, die schwierige Ausgangslage in einen überzeugenden Entwurf zu überführen. Der Kopfbau an der Hegenheimerstrasse bildet künftig das neue «Eingangsgebäude» zum Westfeld. Während das Erdgeschoss ganzflächig von Quartier- und Gewerbenutzungen belegt ist, gruppieren sich in den Obergeschossen die Wohnungen um einen kleinen Wohnhof. Dieser öffnet sich grosszügig zur Grünpromenade hin. Die Öffnung sorgt für eine ausreichende Belichtung und Belüftung und verleiht dem Gebäude sein besonderes, architektonisches Gepräge. Die Vielfalt der unterschiedlichen Wohnungen und Typologien ergänzt das vorhandene Angebot auf dem Westfeld sehr gut. Der Pavillon mit den erforderlichen Veloabstellplätzen ist als leichte, filigrane Konstruktion konzipiert. Insgesamt überzeugte der Projektvorschlag die Jury auch durch eine hohe Effizienz und Wirtschaftlichkeit. Wir gratulieren Weyell Zipse Quelle: Medienmitteilung Wohnen und Mehr

Ausstellung Studienauftrag Bis zum 30. Juni können alle Projekte inklusive Siegerprojekt eingesehen werden. Interessierte melden sich auf der Geschäftsstelle im Westfeld 2.

Öffnungszeiten Ausstellung: Montag bis Mittwoch 08.30 bis 12.00 / 13.30 bis 15.00 / Donnerstag 08.30 bis 19.00