Wettbewerbe 03.02.20
Wartebereich für Besucher*innen © Notaton

Wartebereich für Besucher*innen © Notaton

«Effizienter räumlicher Entwurf zugunsten von Aussenraum» – Das Siegerprojekt der Erweiterung des Kantonsgerichts Liestal

Das Büro Notaton aus Chur gewinnt den Wettbewerb für Erweiterung und den Umbau des Kantonsgerichts in Liestal. Das Projekt «SIRO» überzeugt hauptsächlich durch eine platzsparende städtebauliche Setzung, die im dicht bebauten Bahnhofsviertel von Liestal viel Freiraumqualität verspricht. Der vertikal organisierte Anbau schafft zudem kurze Wege und erstaunliche räumliche Eindrücke.

Situation: Ein abgedrehtes Quadrat trifft auf den Bestand © Notaton

Situation: Ein abgedrehtes Quadrat trifft auf den Bestand © Notaton

Standort soll bestehen bleiben
Seit 1919 nutzt das Kantonsgericht die Räumlichkeiten im repräsentativen Bau gegenüber des Kulturhauses Palazzo beim Bahnhof Liestal. Das kommunal geschützte Gebäude stammt aus dem Jahr 1854 und wurde ursprünglich als Schulhaus gebaut. Die gerichtliche Nutzung verlangte über die Jahre einige Umbauten und Eingriffe. Die vielleicht augenfälligste Übung dürfte das auf Stützen stehende nordseitige Provisorium sein. Im Rahmen einer Gesamtbetrachtung entschied man sich, das Gericht weiterhin beim Bahnhof zu belassen. Vorstudien, unter anderem in Zusammenarbeit mit der Denkmalpflege, kamen zum Schluss, dass das Gebäude für eine sinnvolle Weiternutzung nordseitig erweitert werden soll. Die repräsentative Südfassade zum Bahnhof soll im Gegenzug eine architektonische Entspannung erfahren, zu gross waren die abermaligen Eingriffe und Veränderungen. Hauptbestandteil der Erweiterung sind neue zeitgemässe Gerichtssäle. In Bezug auf den Gerichtsbetrieb wichtig sind daher eine funktionierende Trennung von Publikumsverkehr und interner Erschliessung.

Bestandesbau © Simon Heiniger / Architektur Basel

Bestandesbau © Simon Heiniger / Architektur Basel

Das nordseitige Provisorium hat auch schon bessere Tage gesehen © Simon Heiniger / Architektur Basel

Das nordseitige Provisorium hat auch schon bessere Tage gesehen © Simon Heiniger / Architektur Basel

37 Projektvorschläge
Der anonyme einstufige Wettbewerb wurde offen ausgeschrieben. Die 37 eingereichten Projekte wurden in mehreren Beurteilungsphasen ausgefiltert. Die Fachpreis-Jury bestand aus dem vorsitzenden Kantonsarchitekten Marco Frigerio und weiteren Architekt*innen aus der ganzen Schweiz, sowie verschiedenen Sachpreisrichtern, unter anderem Isaac Reber, derzeitiger Regierungspräsident. Auf technischer Ebene wurde die Jury durch nicht stimmberechtigte Experten*innen für beispielsweise Denkmalpflege, Baukosten, Brandschutz oder Verkehr unterstützt. 6 Projekte wurden rangiert. Gewonnen hat der Beitrag «SIRO» vom Churer Büro Notaton.

Erdgeschoss mit Erschliessung © Notaton

Erdgeschoss mit Erschliessung © Notaton

Effizientes Raumwunder
Die Verfassenden Irene und Aldo Duelli schlagen eine quadratische nordseitige Erweiterung vor. Sie ist zum Bestand hin um 45° abgedreht. Die neuen Gerichtssäle sind vertikal angeordnet. Die Erschliessung erfolgt über raumhaltige Rotunden. Sinngemäss wurde die interne Treppenanlage in der Überschneidung von Alt- und Neubau platziert; mit einem nordseitigen Eingang für Mitarbeitende. Der öffentliche Eingang erfolgt über die südliche Hauptfassade und führt zur Treppenanlage an der Nordostfassade. So zurückhaltend der Umgang mit dem Bestand anmutet, so komplex wirkt der Anbau. Zentraler Bestandteil des Sockelgeschosses und der ersten beiden Stockwerke ist der Gerichtssaal. Diesen umschliesst jeweils eine nach innen geschlossene Raumschicht gegen Nordwesten und die Publikumserschliessung gegen Nordosten. Der Clou liegt dabei im Konzept der Belichtung. Über den Nebenräumen und der Erschliessung gelangt natürliches Licht zweiseitig über horizontale Oblichter in die Säle. Im Wartebereich vor dem Saal bieten grosse Verglasungen einen Ausblick über den Orisbach in Richtung Altstadt.

Gerichtssaal mit Oblicht © Notaton

Gerichtssaal mit Oblicht © Notaton

Wartebereich für Besucher*innen © Notaton

Wartebereich für Besucher*innen © Notaton

Die Jury meint: «Aus dem Raum entwickelt»
Die Jury lobt insbesondere die Effizienz der Raumanordnung und die damit einhergehende Platzersparnis im Aussenraum. Im ohnehin schon dicht bebauten Bahnhofsquartier stellt der resultierende Freiraum zwischen dem erweiterten Gerichtsgebäude und dem Lüdin-Areal im Norden eine begrüssenswerte Qualität dar und ergänzt: «Die Verfassenden entwickelten das Projekt aus dem Raum heraus, bemerkbar wird dies bei der Ausgestaltung der Gerichtssäle im Zusammenspiel mit den dahinterliegenden Raumschichten oder dem Publikumswartebereich (…)». Gleichzeitig bemängelt das Gremium die grossen Eingriffe im Übergang zum Bestand, die nötig sind, um die beiden Gebäudeformen und Typologien zu vereinen.

Grundriss OG3 Büros (+9.39m) © Notaton

Grundriss OG3 Büros (+9.39m) © Notaton

Grundriss OGB Splitlevel (+4.67m) © Notaton

Grundriss OGB Splitlevel (+4.67m) © Notaton

Grundriss OG1 Oblicht (+3.30m) © Notaton

Grundriss OG1 Oblicht (+3.30m) © Notaton

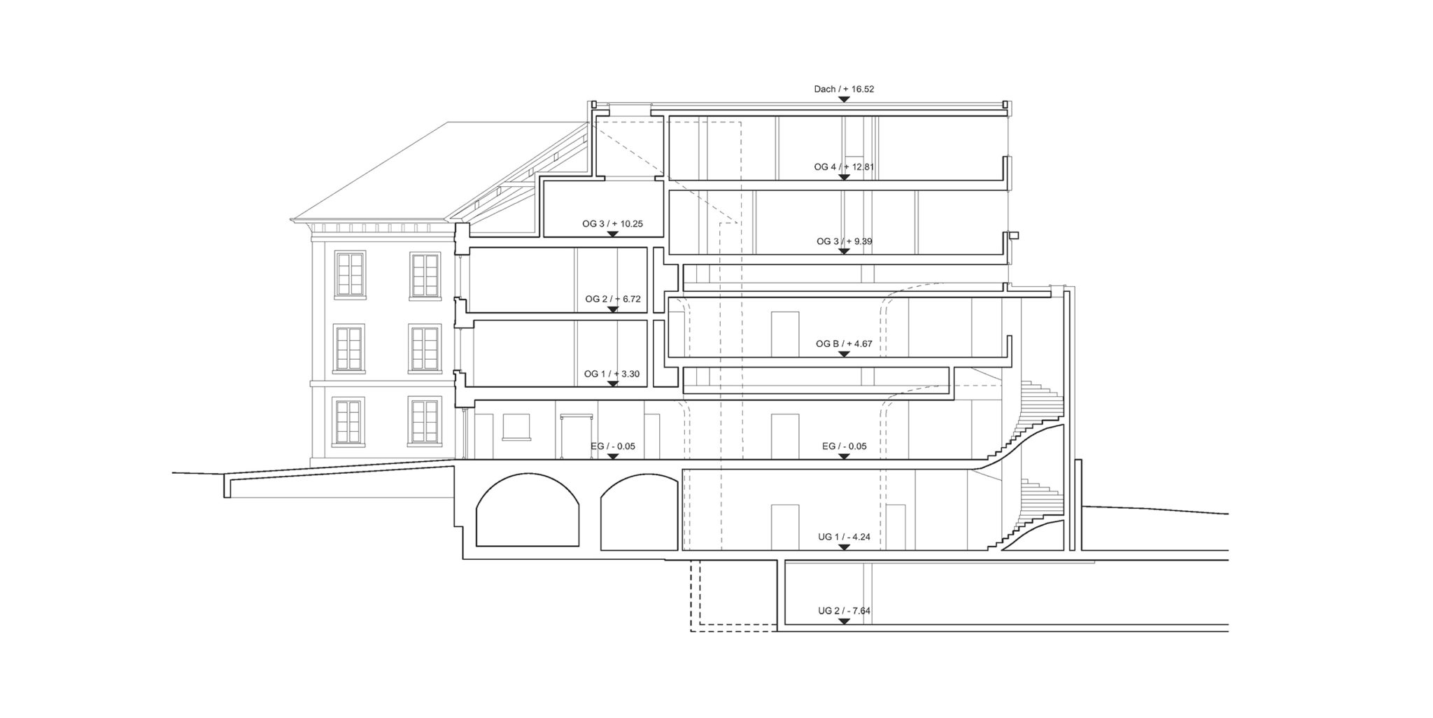
Schnitt Nord-Süd entlang der Erschliessung © Notaton

Schnitt Nord-Süd entlang der Erschliessung © Notaton

Schnitt Nord-Süd entlang der Gerichtssäle © Notaton

Schnitt Nord-Süd entlang der Gerichtssäle © Notaton

Nordwestfassade, Sicht von Bahnhofsstrasse © Notaton

Nordwestfassade, Sicht von Bahnhofsstrasse © Notaton

Nordostfassade, Sicht von Orisbach © Notaton

Nordostfassade, Sicht von Orisbach © Notaton

Wir meinen: sehr gelungen, aber!
Die räumlichen Anstrengungen der vertikalen Stapelung als Ergebnis einer möglichst flächeneffizienten Anordnung des Raumprogramms zeigen sich in einem sehr glaubhaften, aber nicht minder komplexen Vorschlag. Der Zugang für Besucher*innen wird räumlich inszeniert. Die vertikale Publikumserschliessung geht einher mit dem sich ebenso an runden Formen orientierenden Vorraum mit Aussicht zum Städtli. Die abgerundeten «Lichtkanäle» als Decke des Vorraums bilden schliesslich das Gegenstück und schliessen die Gerichtssäle formell ab.

Volumentrisch überragt der Anbau den Bestand. Das darf er, hat er schliesslich nicht den Anspruch, Bestehendes weiterzuführen. Aufgrund seiner kleinen Grundfläche stellt er keine Konkurrenz dar, was die eigene Wirkung aber nicht mindert. Laut Konstruktionsschnitt soll die Fassade mit einem dreischichtigen Kalkputz verputzt werden. Der einfache Fassadenaufbau dürfte nach dem komplexen Rohbau ein finanzieller Segen sein, doch ist eine Kompaktfassade mit Aussendämmung hier wirklich angebracht? Ein betonierter Sockel löst vielleicht das Problem der physischen Belastbarkeit im Erdgeschoss, doch sind Polystyrol-Aussendämmungen nicht eben klimafreundlich, insbesondere, nachdem zwecks Modellierungen im Innenraum schon sehr viel energiezerrender Beton verbaut wird. Ein optisch gleichwertiger, jedoch hinterlüfteter Fassadenaufbau wäre nachhaltiger und weniger anfällig auf Bauschäden. Generell vermissen wir im Ausdruck der Fassade die Liebe zum Detail, wie sie uns im Innenraum in abgeklärter Einfachheit förmlich entgegenspringt. Leider gibt es keine Aussenvisualisierung.

Anbau oder Neubau? © Hochbauamt Basel-Landschaft / Thomas Hess

Anbau oder Neubau? © Hochbauamt Basel-Landschaft / Thomas Hess

Dass sich Notaton mit räumlichen Fragen auskennt, hat das Büro beim Haus am Hang – ebenfalls in Liestal – bereits bewiesen. Es ist zu hoffen, dass eine Vereinfachung des Übergangs vom Bestand zum Anbau – wie durch das Preisgericht gefordert – nicht zum Verlust eben dieses Raumeindrucks führt. Die architektonische Aufteilung in Neu und Alt ist zu begrüssen; nicht mehr vom Gleichen, sondern interessantes Neues, scheint hier ein richtiger Weg.

Eine Beurteilung der weiteren rangierten Projekte gibt es an dieser Stelle am kommenden Freitag!

Text & Kritik: Simon Heiniger / Architektur Basel


Quellen:
- Fotos Bestand: © Simon Heiniger / Architektur Basel
- Modellfotografie: Hochbauamt Basel-Landschaft, Thomas Hess
- Planmaterial / Visualisierungen: Bau- und Umweltschutzdirektion des Kantons Basel-Landschaft, Hochbauamt, (Januar 2020), «Jurybericht Erweiterung und Umbau Kantonsgericht Basel-Landschaft, Liestal» (Das Urheberrecht der Abbildungen, Pläne und Visualisierungen liegt bei den Projektverfassenden)